CHAIN FREE - Station Road, Puckeridge, Herts

£510,000

4 Bedroom Semi-Detached House for sale in Puckeridge

1 4 2

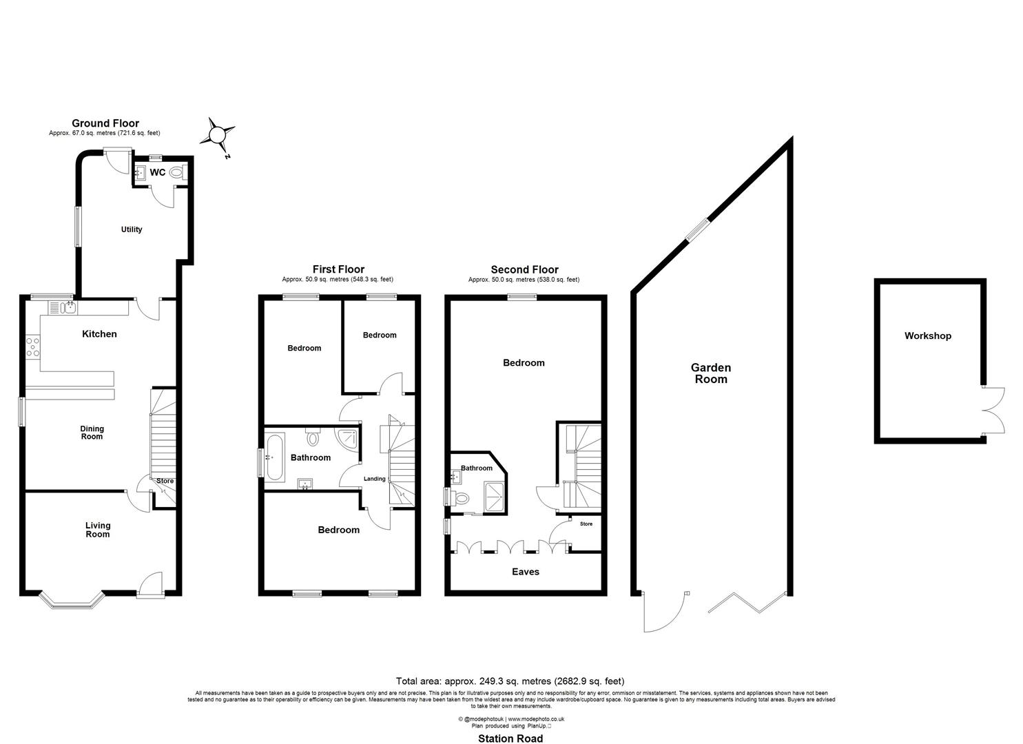
Oliver Minton Village & Rural Homes are delighted to offer this CHAIN-FREE four bedroom semi-detached family home. Within close walking distance of Roger De Clare First School & Nursery, Ralph Sadleir Middle School, the local health centre and the community centre and playing fields, the accommodation comprises: Living room, spacious open-plan kitchen/dining area, large utility room/study, downstairs cloakroom, 3 first floor bedrooms, family bathroom plus a spacious second floor attic bedroom with en-suite which could be used as a great guest suite or 'den' for a lucky teenage son or daughter! There is a long rear garden with large store/workshop, a large studio/games room and off-street parking for 2 cars to the front.


Living Room
5.12 x 3.33 (16'9" x 10'11")


Front door. Double-glazed bay window to front. Wood effect flooring. Radiator. Door to:


Spacious Kitchen/Dining Room
6.58 x 5.13 (21'7" x 16'9")


A fantastic family/entertaining room. Fitted with a range of matching wall and base units with work tops over. Inset one and a half bowl sink and drainer with mixer tap. Gas oven and hob with extractor canopy over. Tiled flooring. Vertical radiator. uPVC double-glazed window to rear. Inset ceiling lights. Stairs to first floor.


Utility Room / Study
4.76 x 3.33 (15'7" x 10'11")


Double-glazed window to side. Worktops with built-in base storage units. Space and plumbing for washing machine and tumble dryer. Radiator. Inset ceiling lights. Doors to rear garden and to cloakroom.


Downstairs Cloakroom


Contemporary white suite comprising WC, wall hung sink with storage drawer below. 'Worcester' combination gas fired boiler. Frosted double-glazed window to rear.


First Floor Landing


Doors to bedrooms and family bathroom. Stairs to second floor.


Bedroom One
5.21 x 3.34 (17'1" x 10'11")


Double-glazed windows to front. Inset ceiling lights. Radiator.


Bedroom Three
4.29 x 2.44 (14'0" x 8'0")


Double-glazed window to rear. Radiator. Inset ceiling lights.


Bedroom Four
3.06 x 2.57 (10'0" x 8'5")


Double-glazed window to rear. Radiator. Inset ceiling lights.


Family Bathroom
3.41 x 2.19 (11'2" x 7'2")


Frosted double-glazed window to side. Free-standing bath tub with shower attachment. Separate shower cubicle. Contemporary white suite comprising WC, sink with storage drawers below. Heated towel rail.


Second Floor


Double-glazed velux style window. Storage cupboard above stairs.


Bedroom Two / Guest Suite
8.63 x 4.45 (28'3" x 14'7")


Large bedroom with sloping roof eaves and part wooden flooring. Double-glazed window. Eaves storage. Radiator.


En-Suite Shower Room


Double-glazed window to side. Contemporary white suite comprising WC, sink with storage drawer. Heated towel rail. Tiled flooring and walls. Shower cubicle.


Outside


Driveway


Parking for 2 cars.


Long Rear Garden


A mainly paved garden with side access gate.


Large detached storage building/workshop.


Impressive Games Room / Studio
12.80m x 5.18m (42' x 17'0)


Currently used as a studio / games room. uPVC doors to rear garden.


Agents Notes


Mains gas, electricity, water and drainage are connected.


Broadband & mobile phone coverage can be checked at https://checker.ofcom.org.uk/

Important Information

  • This is a Freehold property.
  • This Council Tax band for this property is: D

Property Ref: 751_1258819

Share:

Similar Properties

Brockholds Farm Cottages, Old Hall Green, Nr Ware

3 Bedroom End of Terrace House | Guide Price £500,000

In this wonderful quiet, prime semi-rural location between the hamlet of Levens Green and Puckeridge village, Oliver Min...

CHAIN FREE - Patient End Barns, Furneux Pelham, Buntingford

2 Bedroom Barn Conversion | £500,000

Oliver Minton Village & Rural Homes are delighted to offer this superbly appointed single storey character conversion, s...

Malting Lane, Braughing, Herts

3 Bedroom End of Terrace House | Offers in region of £500,000

Oliver Minton Village & Rural Homes are delighted to offer this charming end terrace character cottage in the heart of B...

CHAIN FREE 4 bedroom with large garden - Green Lane, Braughing

4 Bedroom Semi-Detached House | Guide Price £525,000

Oliver Minton Village & Rural Homes are delighted to offer this CHAIN FREE excellent, extended, older style 4 bedroom se...

NEW HOME - Halls Close, Braughing, Herts

2 Bedroom Semi-Detached House | Guide Price £535,000

BRAND NEW LUXURY HOME - LAST 2 BEDROOM UNIT REMAINING - A superb 2 bedroom, semi-detached property by highly respected d...

CHAIN FREE 4 Bed DETACHED House - Clements Close, Puckeridge

4 Bedroom Detached House | £550,000

Oliver Minton Village & Rural Homes are pleased to offer this CHAIN FREE 4 bedroom DETACHED HOUSE on this popular villag...

Oliver Minton Estate Agents (Puckeridge)

28 High St, Puckeridge, Hertfordshire, SG11 1RN

01920 822999

How much is your home worth?

Use our short form to request a valuation of your property.

Request a Valuation

Mortgage Calculator

Amount Borrowed: £
Total Amount Repayable: £
Total Monthly Payment: £
©2025 The Guild of Property Professionals. All rights reserved. Terms and Conditions | Privacy Policy | Cookie Policy | Complaints Policy | Members Login
The Guild of Property Professionals Trading Address: 121 Park Lane, London W1K 7AG. GPEA Limited. Registered in England & Wales.  Company No: 02819824.  Registered Office Address: 2 St. Stephen's Court, St. Stephen's Road, Bournemouth, Dorset, England, BH2 6LA.  VAT Registration No: 576 8795 61
Book a Property Valuation Update Cookies Preferences