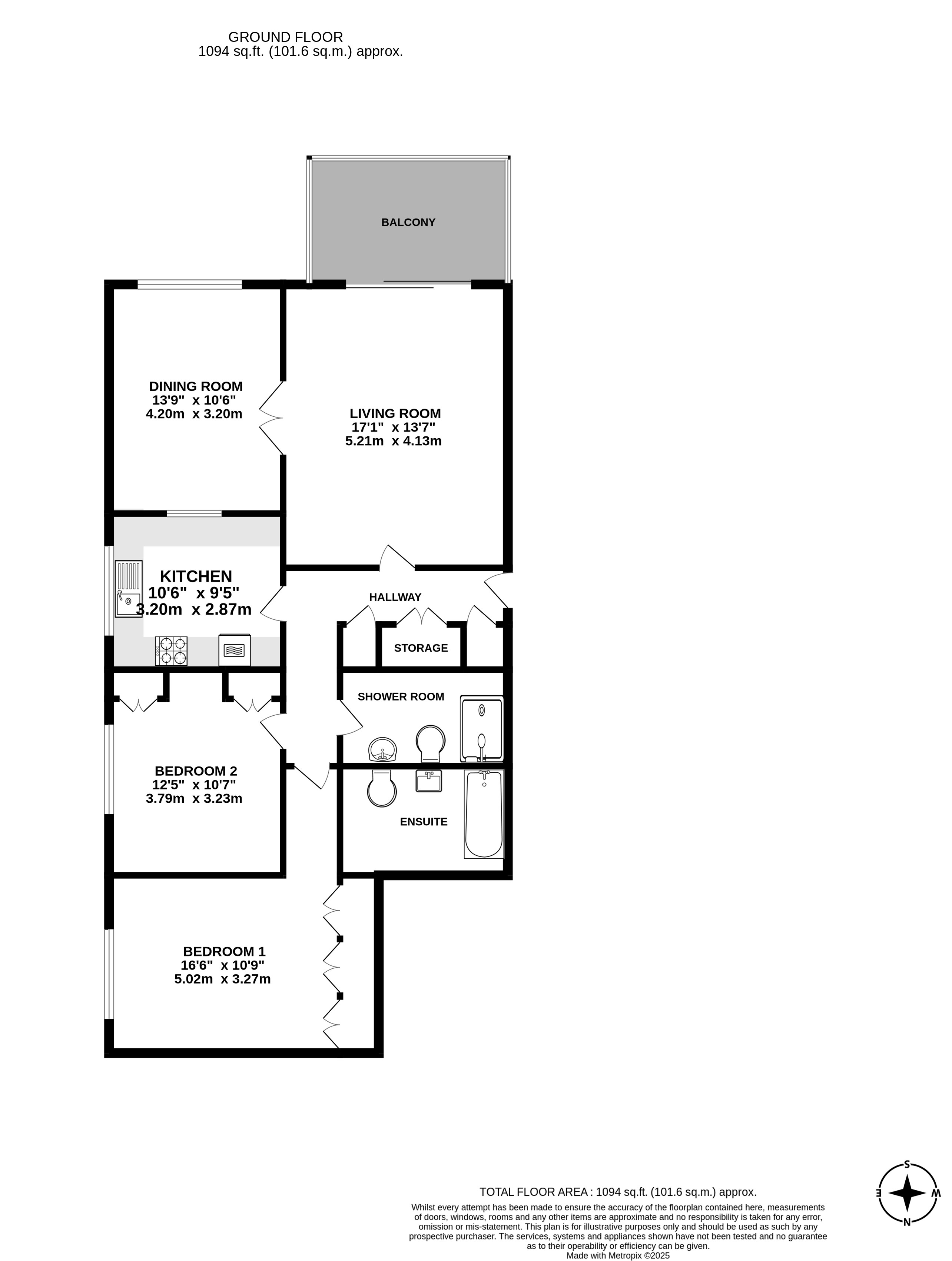
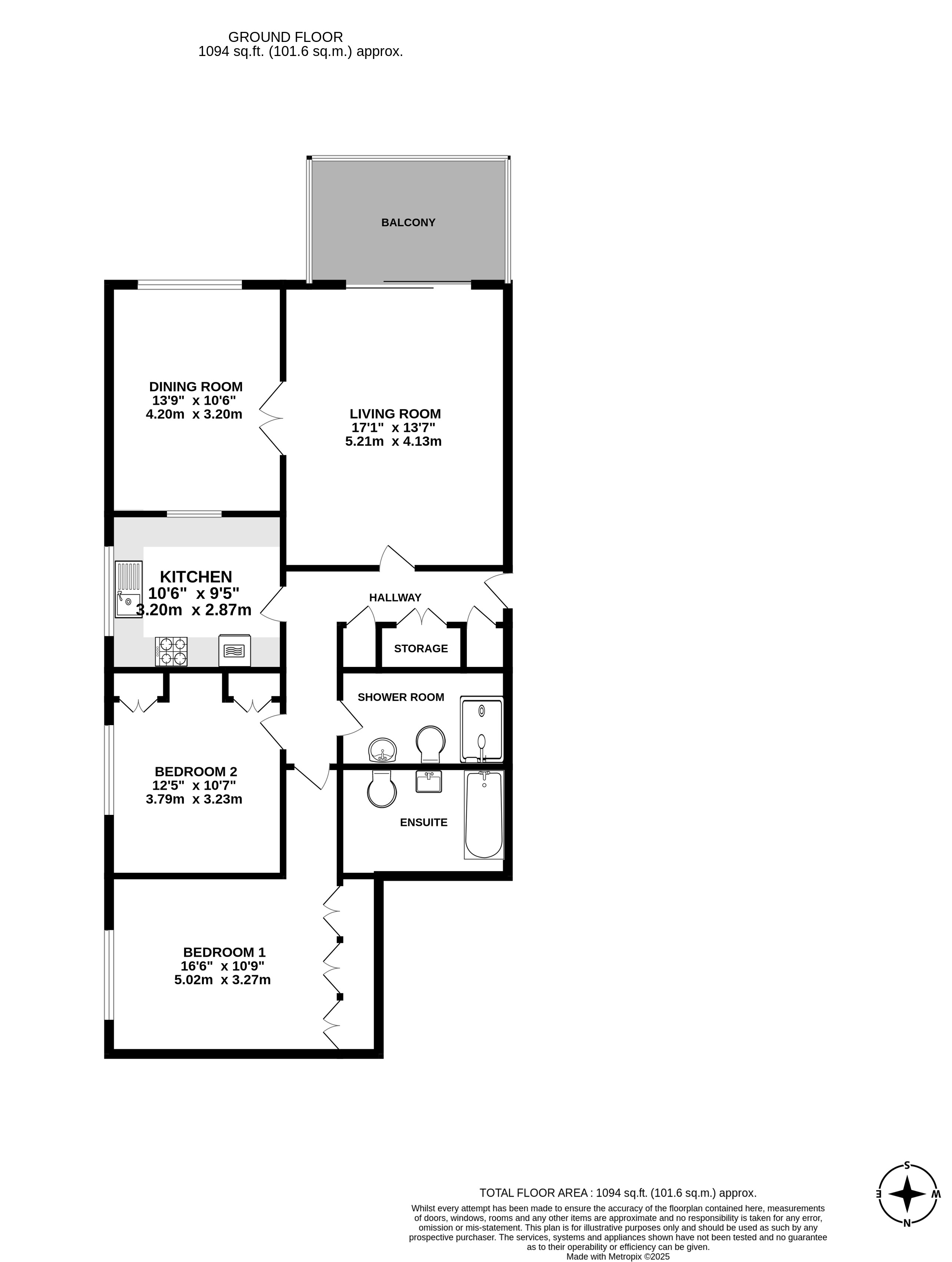
Situated on High Firs, just off Gills Hill in the heart of Radlett, this well-presented two-bedroom leasehold flat offers spacious and versatile living accommodation extending to approximately 1,094 sq. ft. The property features a generous living room with access to a private balcony, providing an ideal space for relaxing or entertaining, and an adjoining dining room that offers a perfect setting for family meals or hosting guests.The kitchen provides ample workspace and storage, while both bedrooms are well-proportioned, with the principal bedroom benefiting from its own en-suite bathroom. A separate shower room and additional storage space add to the practicality of the home.Offering a bright and comfortable layout, this flat combines convenience and potential in a desirable Radlett location, within easy reach of the village centre, mainline station, and a range of local amenities. It presents an excellent opportunity for buyers looking for a spacious property in a well-connected and attractive area.
Important Information
Property Ref: 603603_LUM250333
Orchard Close, Radlett, Hertfordshire, WD7
4 Bedroom Terraced House | £700,000
Lumley Estates are proud to present this immaculate four bedroom home, situated in a cul-de-sac road in the ever desirab...
Orchard Close, Radlett, Hertfordshire, WD7
3 Bedroom Semi-Detached House | £700,000
Nestled within the highly sought-after village of Radlett, this beautifully presented semi-detached home offers generous...
Parkfields Avenue, London, NW9
4 Bedroom Semi-Detached Bungalow | Offers Over £675,000
Lumley Estates are proud to present this stunning four bedroom semi-detached bungalow in the ever-desirable location of...
Kemprow, Aldenham, Watford, Hertfordshire, WD25
3 Bedroom Semi-Detached House | £749,995
Set on the peaceful road of Kemprow in Aldenham, this beautifully presented three-bedroom semi-detached home combines mo...
4 Bedroom Detached House | £750,000
Lumley Estates are proud to present this stunning four-bedroom detached home in the ever desirable location of Edgware.
Summerswood Lane, Borehamwood, Hertfordshire, WD6
3 Bedroom Detached House | Guide Price £750,000
Set along the sought-after and picturesque Summerswood Lane, this three-bedroom detached home presents a truly rare oppo...
 
                            Lumley Estates (Radlett)
72 Watling Street, Radlett, Hertfordshire, WD7 7NP
Use our short form to request a valuation of your property.
Request a Valuation