Grace Avenue, Shenley, Radlett, Hertfordshire, WD7

Offers in region of
£2,500,000

6 Bedroom Terraced House for sale in Radlett

3 6 5
  • Substantial family home of 6,889 Sq. Ft
  • Part of Shenley Manor, located in Grace Avenue, Shenley
  • Exceptional character features throughout
  • Flexible accommodation arranged over multiple floors

An exceptional residence of impressive proportions, combining remarkable character with modern family living.

Part of the highly regarded Grade II listed Shenley Manor. Accessed via a gated private carriage driveway, this substantial home is arranged over multiple floors, designed to suit both formal entertaining and relaxed day-to-day living. The generous footprint, coupled with elegant architectural features, creates a home of genuine distinction and versatility.

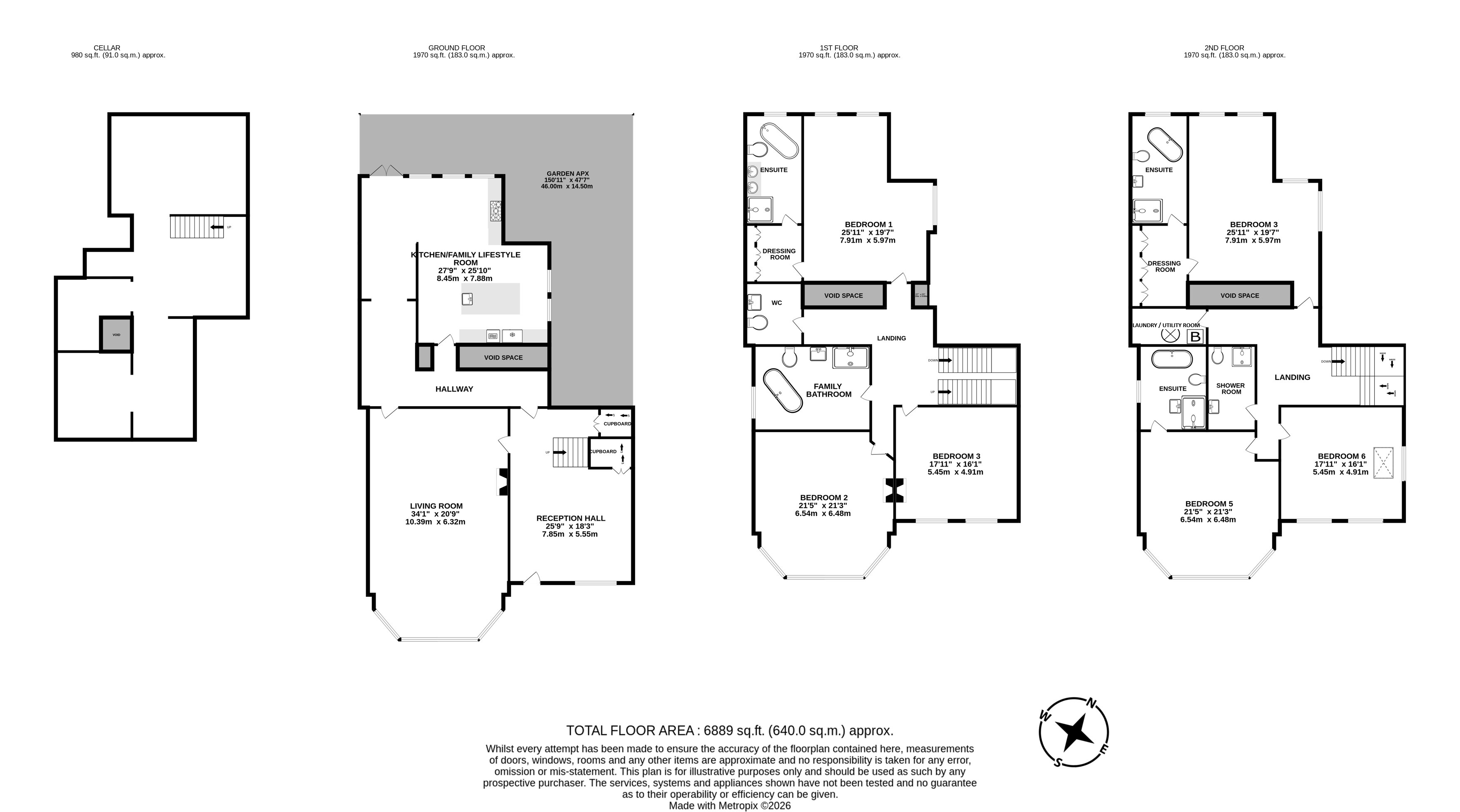
This impressive Grade II listed home extends to a substantial footprint and offers well-balanced accommodation, as illustrated in the floorplan. The ground floor provides an inviting entrance hall which flows into a series of generous reception spaces, ideal for both entertaining and family living. A large principal reception room sits alongside further versatile living areas, while the kitchen/breakfast room forms the heart of the home with ample space for dining and everyday use.

Upstairs, the first floor provides a superb principal bedroom suite along with further well -proportioned bedrooms, each enjoying good natural light and attractive outlooks. Additional bathrooms and dressing areas are thoughtfully arranged to complement the sleeping accommodation. The layout continues to offer flexibility, with further rooms that could serve as guest accommodation, home offices or leisure spaces, depending on requirements.

The overall design creates a seamless flow between the living spaces, highlighting the impressive size and character of the property. Situated in Shenley Manor which is located on Grace Avenue in Shenley, within a conservation area, this is the largest property in the manor. It enjoys a prestigious position on one of the area’s most desirable residential streets, renowned for its attractive homes and convenient access to local amenities and transport links.

Externally, the property is equally impressive, set behind secure gates with beautifully maintained grounds that complement the scale of the home. The shared front lawns and private garden to the rear provide ample space for outdoor entertaining, relaxation and family activities, with mature planting adding privacy and charm. A generous carriage driveway offers ample parking to the front of the manor, alongside two dedicated spaces in the car park, enhancing both practicality and kerb appeal.

The outdoor space mirrors the internal accommodation in both size and quality, providing a wonderful extension of the living areas. The setting on Grace Avenue further enhances the appeal, combining a peaceful residential environment with convenient access to nearby amenities, schools and leisure facilities.

Important Information

  • This is a Freehold property.

Property Ref: LUM260095

Share:

Similar Properties

Watford Road, Radlett, Hertfordshire, WD7

3 Bedroom Apartment | £2,500,000

This stunning penthouse apartment, offering an impressive 2,024 sq. ft. of lateral living space, has been completed to t...

Beech Avenue, Radlett, Hertfordshire, WD7

6 Bedroom Detached House | £2,250,000

This impressive six-bedroom detached family home occupies a prime position on Beech Avenue in the highly sought-after vi...

Watford Road, Radlett, Hertfordshire, WD7

6 Bedroom Detached House | £2,200,000

Situated on the prestigious Watford Road in the heart of Radlett, this impressive detached family home offers over 4,100...

The Avenue, RADLETT, Hertfordshire, WD7

5 Bedroom Detached House | £2,565,000

A charming and spacious family residence offering approximately 3,800 sq ft (350 sq m) of accommodation, set on a substa...

The Warren, Radlett, Hertfordshire, WD7

4 Bedroom Detached House | Guide Price £2,650,000

A beautifully presented detached family home, tucked away on the highly desirable The Warren in Radlett, Hertfordshire....

Newlands Avenue, Radlett, Hertfordshire, WD7

7 Bedroom Detached House | Guide Price £2,700,000

*** Chain Free ***SITE FOR SALE *Planning Permission Granted for a 7,000 Sq.

Lumley Estates (Radlett)

72 Watling Street, Radlett, Hertfordshire, WD7 7NP

01923 853366

How much is your home worth?

Use our short form to request a valuation of your property.

Request a Valuation

Mortgage Calculator

Amount Borrowed: £
Total Amount Repayable: £
Total Monthly Payment: £
©2026 The Guild of Property Professionals. All rights reserved. Terms and Conditions | Privacy Policy | Cookie Policy | Complaints Policy | Members Login
The Guild of Property Professionals Trading Address: 121 Park Lane, London W1K 7AG. GPEA Limited. Registered in England & Wales.  Company No: 02819824.  Registered Office Address: 2 St. Stephen's Court, St. Stephen's Road, Bournemouth, Dorset, England, BH2 6LA.  VAT Registration No: 576 8795 61
Book a Property Valuation Update Cookies Preferences