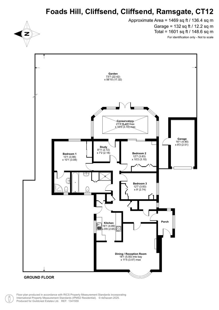
Foads Hill, Cliffsend, Ramsgate

£465,000
SSTC
This property listing is now SSTC

4 Bedroom Detached Bungalow for sale in Ramsgate

2 4 2
  • 3-4 bedroom extended bungalow
  • En suite to master bedroom plus family bathroom
  • Large orangery style conservatory
  • Modern kitchen
  • Generous Lounge/Dining Room
  • Good size private rear garden plus side garden
  • Close to Train Station
  • Council Tax Band D

Located in the popular area of Foads Hill in Cliffsend, Ramsgate, this delightfully spacious, detached bungalow offers a perfect blend of comfort and style. With three well-proportioned bedrooms, two bathrooms, plus a study that could be used as a 4th bedroom, this extended property spans an impressive 1,469 square feet and is ideal for families or those seeking a spacious retreat.

Upon entering, you are welcomed by a generous lounge and dining room, providing an inviting space for relaxation and entertaining. The well-designed kitchen is thoughtfully equipped to make meal preparation a pleasure.

One of the standout features of this property is the beautiful orangery-style conservatory, complete with an air conditioning unit, which allows for year-round enjoyment of the stunning garden views. The generous and beautifully maintained garden is a true oasis, perfect for outdoor gatherings or simply unwinding in a tranquil setting.

The property further boasts a horseshoe driveway with ample parking for multiple vehicles, a rare find that adds to the convenience of this home.


Additionally, the boarded loft and garage provide ample storage space, catering to all your organisational needs.

Situated in a sought-after village location, this bungalow combines the peace of rural living with easy access to local amenities. Being within walking distance of Thanet Parkway Train Station, it also offers excellent transport links for commuting or exploring the surrounding areas.

This property is a wonderful opportunity for those looking to settle in a picturesque setting, combining modern comforts with the charm of village life. Don't miss the chance to make this lovely bungalow your new home.

Council Tax Band - D
Freehold
Mains water, electric, sewer, gas, gas central heating
Fixed wireless broadband

Property Ref: 236985_34121231

Share:

Similar Properties

Reculver Avenue, Birchington

2 Bedroom Detached Bungalow | Guide Price £450,000

****GUIDE PRICE £450,000-£475,000****Located on the very popular Reculver Avenue in Minnis Bay, this delightful detached...

St. Christophers Mews, Ramsgate

4 Bedroom Detached House | £450,000

Come and take a look at this charming St. Christophers Mews in Ramsgate, this modern detached house offers a perfect ble...

Nash Road, Westwood Cross, Margate

2 Bedroom Apartment | From £442,950

Late night opening event 13th November between 12pm and 7pmNO EXIT FEES! A beautiful development of one & two bedroom ap...

Arundel Road, Cliffsend, Ramsgate

4 Bedroom Detached House | £525,000

****Guide price £525,000-£575,000****Positioned on Arundel Road in the charming village of Cliffsend, Ramsgate, this mod...

Grange Way, Broadstairs

4 Bedroom Detached House | £545,000

Nestled in the desirable area of Grange Way, Broadstairs, this modern detached family house offers a perfect blend of co...

Osborne Road, Broadstairs

7 Bedroom Detached House | Offers in excess of £650,000

Situated in the heart of Broadstairs on Osborne Road, this substantial Victorian detached house offers a unique opportun...

Guildcrest Estates (Manston)

Manston Business Park, Manston, Kent, CT12 5NQ

01843 272200

How much is your home worth?

Use our short form to request a valuation of your property.

Request a Valuation

Mortgage Calculator

Amount Borrowed: £
Total Amount Repayable: £
Total Monthly Payment: £
©2025 The Guild of Property Professionals. All rights reserved. Terms and Conditions | Privacy Policy | Cookie Policy | Complaints Policy | Members Login
The Guild of Property Professionals Trading Address: 121 Park Lane, London W1K 7AG. GPEA Limited. Registered in England & Wales.  Company No: 02819824.  Registered Office Address: 2 St. Stephen's Court, St. Stephen's Road, Bournemouth, Dorset, England, BH2 6LA.  VAT Registration No: 576 8795 61
Book a Property Valuation Update Cookies Preferences