Blake End, Rayne, Braintree, CM77

Guide Price
£650,000
SSTC
This property listing is now SSTC

3 Bedroom Detached House for sale in Rayne, Braintree

3

Boasting a 1 ACRE PLOT with 65? outbuilding with ANNEX POTENTIAL* plus double bay CARTLODGE is this impressive three DOUBLE bedroom detached property. Offering TWO EN-SUITES, a 17? VAULTED kitchen & THREE reception rooms inc. 17? DUAL ASPECT lounge.

Advert Summary - ***GUIDE PRICE ?650,000-?675,000***

Hamilton Piers, the leading local property specialists in Rayne and surrounding villages, are delighted to offer for sale this impressive three double bedroom detached property, boasting a 1 ACRE PLOT with a 65? outbuilding with ANNEX POTENTIAL* plus a double bay CART LODGE. Offering TWO EN-SUITES, a 17? VAULTED kitchen & THREE reception rooms inc. 17? DUAL ASPECT lounge.

The property has been extended and improved by the current seller to incorporate spacious accommodation throughout, inclusive of three reception rooms and a generously sized kitchen/family room with vaulted ceilings and bi-folding doors onto the rear garden.

On the first floor, bedrooms one and two both benefit from en-suite shower rooms, with the addition of plenty of built-in storage space and bedroom three (on the ground floor) boasts a wonderful bay window onto the frontage. There is further potential to provide a fourth bedroom, if required.

This versatile property is located within close proximity of the A120/M11 & Felsted, with nearby local village shops and amenities available in Rayne and with easy access to Braintree Town Centre (4.4 miles) and Dunmow (5 miles). Further, Stansted Airport is situated just 13 miles away.

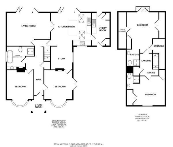
The accommodation, with approximate room sizes, is as follows:

GROUND FLOOR ACCOMMODATION:-

ENTRANCE HALL:

Part-glazed entrance door, stairs to first floor, understairs storage cupboard, laminate flooring and smooth coved ceiling with sunken spotlights.

LOUNGE: (17?3? x 13?7?)

Double glazed window to side aspect, log burner with brick hearth, radiator, carpeted flooring and smooth coved ceiling. Bi-folding doors onto rear garden.

KITCHEN / FAMILY ROOM: (17?2? x 13?10?)

Double glazed window to front aspect, a series of matching base and wall units, one and a half ceramic bowl sink with central mixer tap and drainer, built-in oven and microwave, induction hob, integrated fridge and dishwasher, floating island with further storage/base units, radiator, tiled flooring and smooth ceiling, part vaulted with Velux windows to front and rear aspects. Bi-folding doors onto rear garden.

UTILITY ROOM:

Base units, single bowl sink with central mixer tap and drainer, space for washing machine and tumble dryer, further space for freestanding freezer, two large pantry/storage cupboards, radiator, tiled flooring and smooth coved ceiling. Door onto courtyard and rear door onto garden.

STUDY: (8?8? x 8?)

Double glazed window to side aspect, radiator, carpet to floor and smooth coved ceiling.

SITTING / DINING ROOM: (12?1? x 11?6?)

Double glazed bay window to front aspect, log burner with brick hearth, radiator, carpeted flooring and smooth coved ceiling. French doors to side onto courtyard.

BEDROOM THREE: (11?6? x 11?2?)

Double glazed bay window to front aspect and double glazed window to side aspect, radiator, carpet to floor and smooth coved ceiling.

BATHROOM:

Opaque double glazed window to side aspect, fully tiled double shower, freestanding bath with central mixer taps, low level WC, vanity wash hand basin, shaver point, extractor fan, radiator, vinyl flooring and smooth coved ceiling with sunken spotlights.

FIRST FLOOR ACCOMMODATION:-

LANDING:

Loft access, storage cupboard, carpeted flooring and smooth ceiling.

MASTER BEDROOM: (16?6? x 13?10?)

Borrrowed light window onto landing, five seperate storage and eaves storage cupboards, radiator, carpeted flooring and smooth vaulted ceiling. French doors onto balcony overlooking plot to rear.

EN-SUITE TO MASTER BEDROOM:

Fully tiled single shower, low level WC, inset wash hand basin, extractor fan, vinyl flooring and smooth ceiling.

BEDROOM TWO: (12?1? x 11?8?)

Double glazed window to front aspect, two sets of built-in wardrobes plus additional storage cupboard, radiator, carpeted flooring and smooth vaulted ceiling.

EN-SUITE TO BEDROOM TWO:

Enclosed fully tiled single shower, low level WC, vanity wash hand basin, extractor fan, vinyl flooring and smooth ceiling.

EXTERIOR:-

FRONT:

The property is approached via substantial shingle driveway, set behind brick boundary walls with a gated entrance. Access to cartlodge and gates leading to courtyard on one side of the property as well as double gates with further vehicular access to rear garden.

REAR GARDEN:

Measuring approx 1 acre (STLS), this generous plot commences with decking area to immediate property rear with gated access to side, leading to a private courtyard. The courtyard measures 20?11? x 19?7? and is enclosed by decorative brick walls and part-fenced, with shingle area and a variety of shrubs and potted plants, all met with paved pathway to the utility room and dining/sitting room.

The main rear garden comprises of lawned area, a small pond to centre, an enclosed chicken run, oil tank storage area, a variety of mature trees to boundaries and is completely unoverlooked. An access road has been created from the double gates (on driveway) right through the grounds and leading to the outbuilding, positioned to the rear of the plot. To the side of the main rear garden is a hardstanding which benefits from connections to water, power and drainage to a water treatment plant, which serves the main property.

The main outbuilding to the rear measures 63? in length, built of standard brick and block construction with a side access door and further double doors for vehicular access or storage if required. The building is fitted with power, lighting and water connection, so comes with masses of potential for multi-use; A fully self-contained annex for example.

To the side of the property is a timber-built workshop measuring 19?4? x 15? which comprises of double glazed windows to side aspect, two separate entrance doors and is fitted with power and lighting. Externally, there is an adjoining shingle area, sheltered by corrugated metal roof.

Adjacent to this are the timber double access gates leading onto the driveway with a further single secure gate with pathway leading to driveway and giving access to the cartlodge. To the immediate side of the workshop are raised beds, set into railway sleepers and currently used for growing fruit/vegetables.

DRIVEWAY AND PARKING:

The property benefits from a detached double bay cartlodge with parking space for two vehicles. Inside the cartlodge there is a secure entry door to storage room. This measures 19?6? x 9?3? and contains stairs to upstairs boarded loft space, power and water supply, with double glazed window to front aspect.

AGENTS NOTES:

For further information please contact Hamilton Piers.

PROVISIONAL DETAILS - AWAITING VENDORS APPROVAL

Property Ref: 56382_30459153

Share:

Similar Properties

Shalford Road, Rayne, Braintree, CM77

3 Bedroom Detached House | Guide Price £650,000

Boasting a 0.3 ACRE PLOT with OUTBUILDING/ANNEX* plus THREE reception rooms inc. 20' lounge is this three DOUBLE bedroom...

School Lane, Great Leighs, Chelmsford, CM3

4 Bedroom Detached House | Guide Price £650,000

Benefiting from a SECLUDED 0.5 ACRE PLOT with masses of POTENTIAL TO EXTEND / RE-MODERNISE, five reception rooms & GATED...

Notley Green, Great Notley, Braintree

4 Bedroom Detached House | Guide Price £650,000

GUIDE PRICE £650,000-£675,000**Boasting NO ONWARD CHAIN and offering THREE reception rooms, DOUBLE GARAGE with driveway...

Chestnut Avenue, Great Notley, Braintree

6 Bedroom Detached House | Guide Price £675,000

Boasting TWO en-suites & TWO dressing rooms, FOUR bathrooms in total and generous reception space inc. 18' DUAL ASPECT l...

The Chase, Great Notley, Braintree, CM77

5 Bedroom Detached House | Guide Price £675,000

Boasting an UNOVERLOOKED 1/3 ACRE PLOT, detached DOUBLE GARAGE with ANNEX ACCOMMODATION, a 27' DUAL ASPECT LOUNGE & loca...

Brancaster Drive, Great Notley, Braintree

4 Bedroom Detached House | Offers in excess of £700,000

Boasting THREE RECEPTION ROOMS and FOUR DOUBLE BEDROOMS - with an EN SUITE and dressing area to the master - is this EXE...

Hamilton Piers (Great Notley)

Avenue West, Skyline 120 Business Park, Great Notley, Essex, CM77 7AA

01376341141

How much is your home worth?

Use our short form to request a valuation of your property.

Request a Valuation

Mortgage Calculator

Amount Borrowed: £
Total Amount Repayable: £
Total Monthly Payment: £
©2026 The Guild of Property Professionals. All rights reserved. Terms and Conditions | Privacy Policy | Cookie Policy | Complaints Policy | Members Login
The Guild of Property Professionals Trading Address: 121 Park Lane, London W1K 7AG. GPEA Limited. Registered in England & Wales.  Company No: 02819824.  Registered Office Address: 2 St. Stephen's Court, St. Stephen's Road, Bournemouth, Dorset, England, BH2 6LA.  VAT Registration No: 576 8795 61
Book a Property Valuation Update Cookies Preferences