Charlotte Close, Caversham, Reading

£900,000

5 Bedroom Detached House for sale in Reading

2 5 3
  • Detached house set in Caversham Heights
  • Five large bedrooms
  • Three stylish and modern bathrooms
  • Modern kitchen
  • Utility room
  • Integral garage
  • Private road, quiet cul de sac location
  • Easy access to central Caversham
  • Council Tax band G
  • EPC Rating C

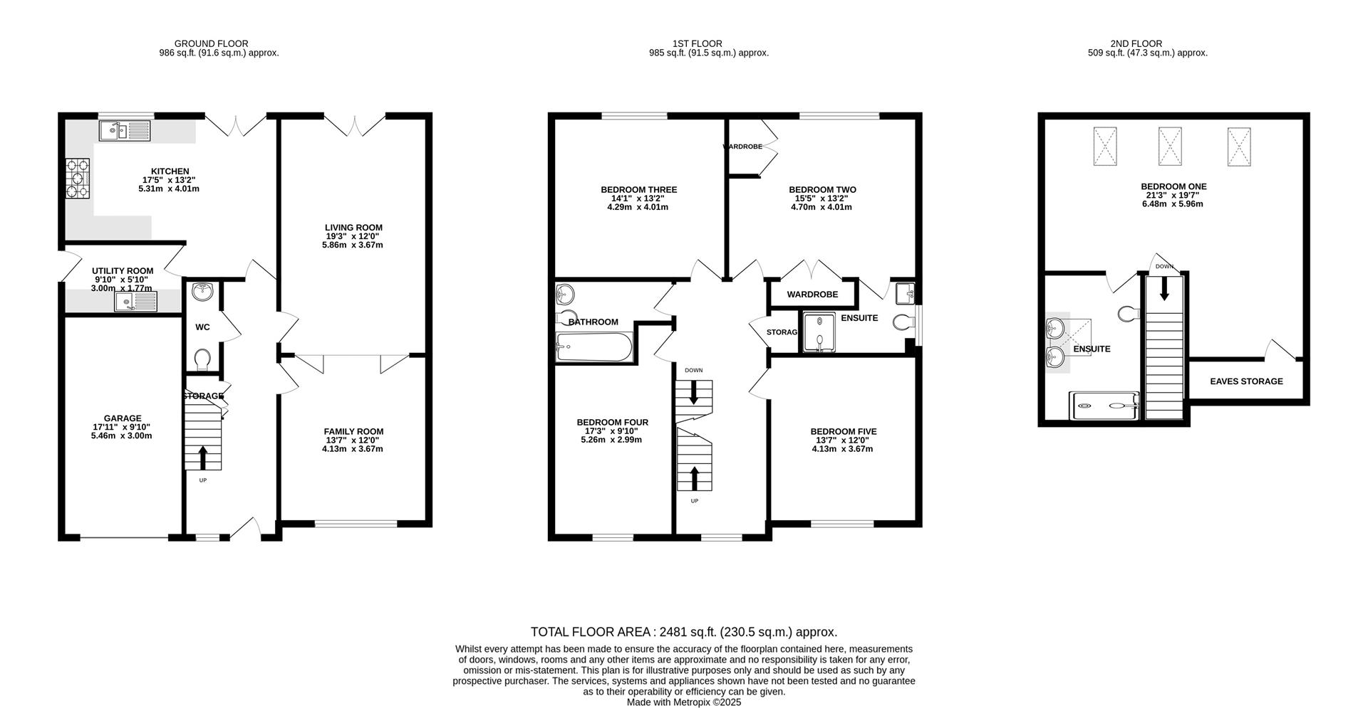
Entrance Hall

A broad and welcoming entrance hall with laminate flooring, doors to living room, family room, kitchen, understairs storage, WC and stairs to the first floor.



Family Room (4.13 x 3.67)

A good sized, bright and airy carpeted family room with a large window overlooking the front of the property and folding double doors to the living room.



Living Room (5.86 x 3.67)

A large carpeted living room with double doors to the garden and folding double doors to the family room.



Kitchen (5.31 x 4.01)

A modern and spacious kitchen with tiled floor, plenty of wall and base units, space for dining table, built in fridge freezer, five ring gas hob, extractor and double oven, space for dishwasher and double doors to the garden.



Utility Room (3 x 1.77)

Utility room with tiled floor, wall and base units, sink and space for washing machine and tumble drier and door to the side of the property.



WC

WC with laminate flooring, sink and toilet.



Landing

Spacious landing with doors to bedrooms two, three, four and five, bathroom, storage and stairs to the second floor.



Bedroom Two (4.7 x 4.01)

A very light and spacious, carpeted double bedroom with two double wardrobes, large window overlooking the garden and door to the ensuite shower room.



Ensuite

Ensuite shower room with vinyl floor, shower, sink WC and window to the side of the property.



Bedroom Three (4.29 x 4.01)

A large, carpeted double bedroom with a good sized window overlooking the garden



Bedroom Four (5.26 x 2.99)

A spacious carpeted double bedroom with two windows overlooking the front of the property.



Bedroom Five (4.13 x 3.67)

A spacious, carpeted double bedroom with a window overlooking the front of the property.



Bathroom

Bathroom with vinyl flooring, bath with a shower, sink, WC and heated towel rail.



Bedroom One (6.48 x 5.96)

A very large, carpeted bedroom on the second floor with eaves storage, three velux windows to the rear of the property and door to the ensuite shower room.



Ensuite

Spacious ensuite shower room with large shower cubicle, twin sinks, WC and heated towel rail with a large velux window to the side of the property.



Garden

An easy to maintain garden, mostly laid to lawn with a sun trap patio and large decked terrace, perfect for summer entertaining.



Garage (5.46 x 3)

Single garage with up and over door with driveway parking in front.



Services

Water. Mains
Drainage. Mains
Electricity. Mains
Heating. Gas

Mobile phone. The vendor is not aware of any specific restricted mobile phone coverage

Broadband. Ultrafast, obtained from Ofcom



Tenure

Freehold
Private Estate Maintenance Charge 1st Jan to 31st Dec 2026: £872.33

Important Information

  • This is a Freehold property.

Property Ref: 7230_34263179

Share:

Similar Properties

Peppard Road, Sonning Common, Reading

4 Bedroom Detached House | £875,000

Set within this sought after area of Sonning Common that offers easy access to the South Oxfordshire countryside and cen...

Hemdean Rise, Caversham, Reading

4 Bedroom Detached House | £875,000

SOLD BY NICHOLAS ESTATE AGENTS & NEA LETTINGS: Situated within this sought-after area of Caversham that offers easy acce...

Peppard Road, Sonning Common, Reading

5 Bedroom Detached House | £750,000

CHAIN FREE: Offering views over the attractive Oxfordshire country side is this five bedroom chalet bungalow. The proper...

The Hamlet, Gallowstree Common, Reading

4 Bedroom Detached House | £995,000

Set within this sought after area know as 'The Hamlet', that backs on to the Kidmore End Cricket ground and South Oxford...

Highmoor Road, Caversham Heights, Reading

6 Bedroom Detached House | £1,400,000

CHAIN FREE: GREAT SIZED GARDEN: Set within this sought after area of Caversham Heights is this fantastic detached house...

Coopers Pightle, Kidmore End, Reading

6 Bedroom Detached House | £1,400,000

Set within this highly sought after and picturesque South Oxfordshire Village that offers easy access to Henley, Oxford...

Nicholas Estate Agents & NEA lettings (Reading)

7 Prospect Street, Caversham, Reading, Berkshire, RG4 8JB

0118 9484040

How much is your home worth?

Use our short form to request a valuation of your property.

Request a Valuation

Mortgage Calculator

Amount Borrowed: £
Total Amount Repayable: £
Total Monthly Payment: £
©2026 The Guild of Property Professionals. All rights reserved. Terms and Conditions | Privacy Policy | Cookie Policy | Complaints Policy | Members Login
The Guild of Property Professionals Trading Address: 121 Park Lane, London W1K 7AG. GPEA Limited. Registered in England & Wales.  Company No: 02819824.  Registered Office Address: 2 St. Stephen's Court, St. Stephen's Road, Bournemouth, Dorset, England, BH2 6LA.  VAT Registration No: 576 8795 61
Book a Property Valuation Update Cookies Preferences