Grove Hill, Emmer Green, Reading

£775,000
SSTC
This property listing is now SSTC

4 Bedroom Detached House for sale in Reading

2 4 2
  • Detached House
  • Four double bedrooms and two stylish bathrooms
  • Great sized living room with Bi fold doors
  • Open plan kitchen/dining room
  • Fantastic views over the Hemdean Valley
  • Stylish and modern feel throughout
  • Underfloor heating in living room and bathroom
  • Large south facing roof terrace and a great sized garden
  • Council tax band F
  • EPC rating D

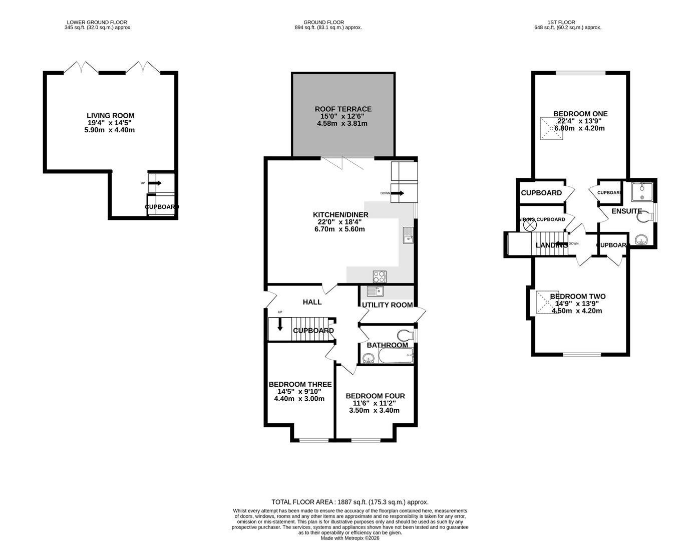
Entrance Hall

A good sized hallway with Camaro flooring, under stairs storage, stairs to the first floor and doors to kitchen/diner, bathroom, utility room and bedrooms three and four.

Kitchen/Diner (6.7 x 5.6)

A bright and modern kitchen diner with window to the side for the property. The kitchen area benefits from stylish Camaro flooring, generous work surfaces, and a breakfast bar, along with a range of eye-level and base units. Integrated appliances include a dishwasher, oven, hob, and extractor, with additional space for a large fridge freezer.

Dining area

A spacious dining area with bi-fold doors leading to the roof terrace, plenty of space for table and chairs, Camaro flooring and stairs lead down to the living room on the lower ground floor.

Roof terrace

A spacious, decked roof terrace with spectacular views of the Hemdean Valley - perfect for evening entertainment and summer lunches!

Utility Room (2.53 x 1.79)

A good sized utility room with fitted wall and base units, inset stainless steel sink and drainer, space for washing machine and tumble drier and door leading to the side of the property with access to the garden.

Bathroom (2.53 x 1.8)

Bathroom with tiled floor, bath with shower, WC, sink, heated towel rail and frosted window to the side of the property

Bedroom three (3.0 x 4.4)

A spacious double bedroom with Camaro flooring and lots of natural light from the bay window.

Bedroom four (3.5 x 3.4)

A good sized, carpeted double bedroom with bay window to the front of the property.

Landing

Landing with window to the side of the property and doors to bedrooms one and two.

Bedroom one (4.2 x 6.8)

A large and airy master bedroom with full wall window with stunning views of the Hemdean Valley, velux window to the side of the property, wooden flooring, built in wardrobes and airing cupboard and door to the ensuite bathroom.

Ensuite shower room (2.54 x 3.0)

Good sized, modern ensuite shower room with tiled floor, walk in shower, sink, WC, heated towel rail and frosted window to the side of the property

Bedroom two (4.2 x 4.5)

A large and bright double bedroom with window to the front of the property and velux window to the side, built in wardrobe space and wooden flooring.

Living room (5.9 x 4.4)

A large and comfortable living room with Camaro flooring, under floor heating, two double patio doors leading to the garden, under stairs and built in storage, stairs leading the kitchen/diner.

Garden

A large garden with a good split between lawn and decking with fabulous views over the valley and side access to the drive and parking at the front of the property.

Services

Water. Mains
Drainage. Mains
Electricity. Mains
Heating. Gas

Appliances: All the appliances are untested

Mobile phone. The vendor is not aware of any specific restricted mobile phone coverage

Broadband. Ultrafast, obtained from Ofcom

Important Information

  • This Council Tax band for this property is: F

Property Ref: 34478555

Share:

Similar Properties

Peppard Road, Sonning Common, Reading

5 Bedroom Detached House | £750,000

CHAIN FREE: Offering views over the attractive Oxfordshire country side is this five bedroom chalet bungalow. The proper...

Copse Avenue, Caversham, Reading

3 Bedroom Detached House | Guide Price £600,000

GUIDE PRICE OF £600000 TO £625000. Set within this sought after area of Caversham is this well presented detached house...

Treetops, Caversham, Reading

2 Bedroom Apartment | £594,950

Set within this highly sought after modern development in central Caversham is this luxury two double bedroom garden apa...

Hemdean Rise, Caversham, Reading

4 Bedroom Detached House | £875,000

SOLD BY NICHOLAS ESTATE AGENTS & NEA LETTINGS: Situated within this sought-after area of Caversham that offers easy acce...

Peppard Road, Sonning Common, Reading

4 Bedroom Detached House | £875,000

Set within this sought after area of Sonning Common that offers easy access to the South Oxfordshire countryside and cen...

Charlotte Close, Caversham, Reading

5 Bedroom Detached House | £900,000

Set within the well regarded and sought after area of Caversham Heights, the property offers convenient access to the re...

Nicholas Estate Agents & NEA lettings (Reading)

7 Prospect Street, Caversham, Reading, Berkshire, RG4 8JB

0118 9484040

How much is your home worth?

Use our short form to request a valuation of your property.

Request a Valuation

Mortgage Calculator

Amount Borrowed: £
Total Amount Repayable: £
Total Monthly Payment: £
©2026 The Guild of Property Professionals. All rights reserved. Terms and Conditions | Privacy Policy | Cookie Policy | Complaints Policy | Members Login
The Guild of Property Professionals Trading Address: 121 Park Lane, London W1K 7AG. GPEA Limited. Registered in England & Wales.  Company No: 02819824.  Registered Office Address: 2 St. Stephen's Court, St. Stephen's Road, Bournemouth, Dorset, England, BH2 6LA.  VAT Registration No: 576 8795 61
Book a Property Valuation Update Cookies Preferences