Peartree Walk, Spencers Wood, Reading, Berkshire, RG7

£475,000

3 Bedroom House for sale in Reading

3

Stunning Three-Bedroom Semi-Detached Home on Peartree Walk, Spencers Wood
Presented by Richard at David Cliff Estate Agents

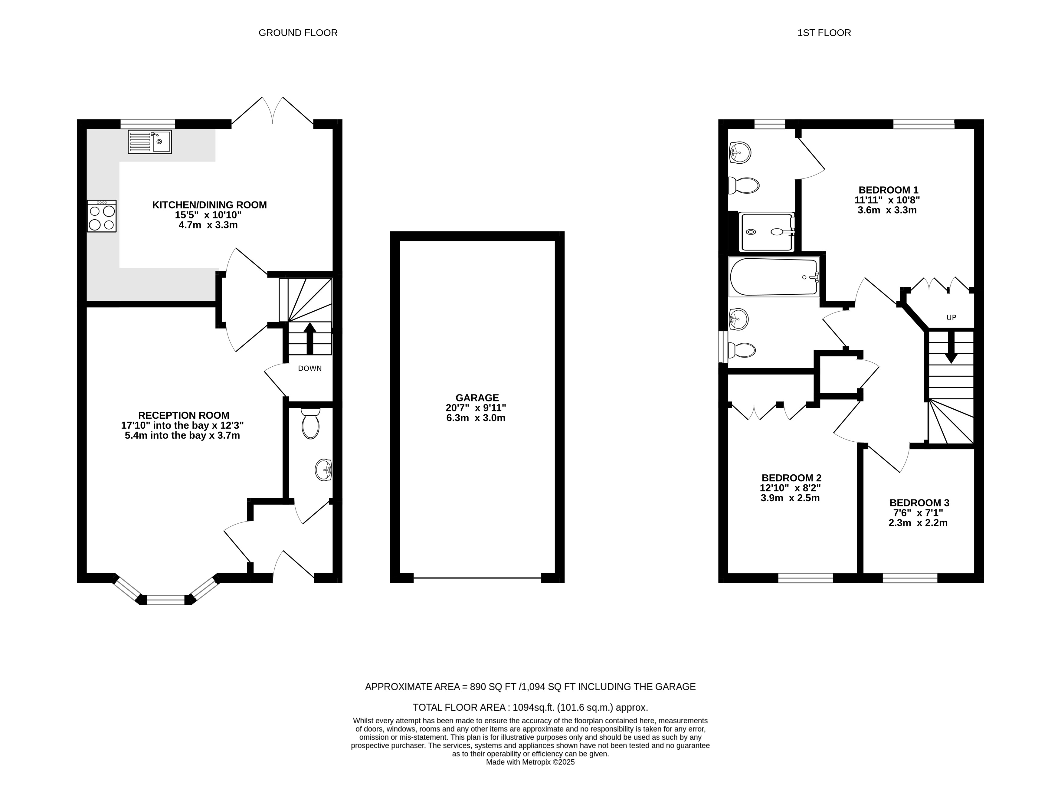
Welcome to this exceptional three-bedroom semi-detached home, ideally positioned on the tranquil Peartree Walk in the heart of Spencers Wood. Tucked away on a peaceful no-through road, this beautifully presented property, built by David Wilson Homes in 2016 offers both style and serenity in equal measure. From the moment you arrive, the home exudes kerb appeal. The charming exterior is enhanced by landscaped greenery and mature trees opposite, providing a wonderful sense of privacy and calm. A generously sized detached garage and ample driveway parking further complement this fantastic home.

Inside, the ground floor is bright and welcoming. The front reception room, flooded with natural light from the elegant bay window, creates a warm and inviting space. This flows seamlessly into the spacious kitchen/dining area, ideal for modern family living. The kitchen is beautifully appointed with contemporary units, integrated appliances, and a water softener, while French doors open directly onto a sunny, south-facing rear garden, perfect for entertaining, al fresco dining, or simply enjoying your morning coffee. A convenient downstairs WC and side gate access to the driveway complete the ground floor layout.

Upstairs, the sense of space and light continues with a bright, airy landing leading to three well-proportioned bedrooms. The principal bedroom features fitted wardrobes and a sleek en suite shower room. Bedroom two is also a generous double with built-in storage, while bedroom three offers flexibility for use as a nursery or home office. A stylish, modern family bathroom serves the remaining bedrooms. Additional benefits include solar panels and a largely boarded loft with a fitted access ladder, ideal for extra storage.

Peartree Walk enjoys a sought-after location within the vibrant village of Spencers Wood, offering easy access to local shops, well-regarded primary schools, and scenic countryside walks, including the nearby Langley Mead Nature Reserve. Despite its peaceful setting, the property offers excellent connectivity with swift access to the M4 (Junction 11), and convenient public transport links to Reading, Wokingham, and beyond.
Internal viewings are highly recommended to fully appreciate all that this exceptional home has to offer.




Important Information

  • This is a Freehold property.

Property Ref: 7945821_MOR250209

Share:

Similar Properties

West End Road, Mortimer Common, Reading, Berkshire, RG7

3 Bedroom House | £475,000

Set in a central position within Mortimer Common, this attractive three bedroom detached chalet-style bungalow offers fl...

Coltsfoot Close, Burghfield Common, Reading, Berkshire, RG7

3 Bedroom House | Fixed Price £475,000

Beautifully presented modern three bedroom townhouse built in the mid 1990s. The property has been thoughtfully updated...

Coudray Mews, Padworth, Reading, Berkshire, RG7

4 Bedroom House | £475,000

New to the market is this brand new 4 bedroom, 2 bathroom detached home with spacious accommodation set over three floor...

The Street, Mortimer, RG7

3 Bedroom Bungalow | £479,950

UPDATED AND IMPROVED - This is a fantastic opportunity to purchase a detached 3 bedroom bungalow situated in a most desi...

Chaffey Close, Woodley, Reading, Berkshire, RG5

3 Bedroom House | £480,000

Millgate Built Modern Family Home in Quiet Woodley Cul-de-SacPresented by Darren at David Cliff Estate AgentsTucked away...

Cleveland Nook, Mortimer Common, RG7

3 Bedroom Terraced House | £495,000

OPEN PLAN LIVING - THIS IS THE FINAL HOUSE REMAINING ON THE CURRENT PHASE OF TOWER HOUSE FARM - Ready for occupation is...

David Cliff (Mortimer)

36 Victoria Road, Mortimer, Berkshire, RG7 3SE

0118 467 7999

How much is your home worth?

Use our short form to request a valuation of your property.

Request a Valuation

Mortgage Calculator

Amount Borrowed: £
Total Amount Repayable: £
Total Monthly Payment: £
©2025 The Guild of Property Professionals. All rights reserved. Terms and Conditions | Privacy Policy | Cookie Policy | Complaints Policy | Members Login
The Guild of Property Professionals Trading Address: 121 Park Lane, London W1K 7AG. GPEA Limited. Registered in England & Wales.  Company No: 02819824.  Registered Office Address: 2 St. Stephen's Court, St. Stephen's Road, Bournemouth, Dorset, England, BH2 6LA.  VAT Registration No: 576 8795 61
Book a Property Valuation Update Cookies Preferences