Windmill Road, Mortimer Common, Reading, Berkshire, RG7

£585,000

3 Bedroom Semi-Detached House for sale in Reading

2 3 2

"Only 50% of the development now remaining! This plot also benefits from driveway parking for 3 cars. Brand New 3 double bedroom, 2 bathroom home with superb kitchen/dining room and bi fold doors opening out to the westerly facing 84ft rear garden.

Nestled in Windmill Road, arguably the most desirable street in the heart of Mortimer, is an exclusive collection of beautifully designed semi-detached homes that integrate perfectly with the surrounding housing. Elmside is one of four elegant new build properties that combines contemporary style with practical living, featuring luxurious bathrooms with gold accents, spacious open-plan kitchen/diners with Quartz worktops and navy shaker units and sleek interiors finished to the highest standard.

Each home is thoughtfully crafted to offer both comfort and sophistication, with bright, airy spaces, designer fittings and large landscaped gardens — perfect for modern family life or elegant entertaining.

LOCAL INFORMATION
Mortimer, which includes Mortimer Common, Stratfield Mortimer, and Mortimer West End, is located in West Berkshire.
The area offers a range of amenities, including St John's Primary and St Mary's Junior Schools, a doctor's surgery, a dentist, two chemists, a Co-op supermarket, Morrisons, a post office, hairdressers, churches, a café, numerous pubs and recreation grounds with tennis courts for hire.
There is convenient access to Reading, Newbury, and Basingstoke as well as the M3 and M4 motorways. Additionally, a local railway station on the outskirts of the village provides links to London Paddington and Waterloo. A regular bus service connects Mortimer with Reading town centre. The area also features many spots for dog walking, family strolls, and seasonal community activities such as Halloween scarecrow walks.

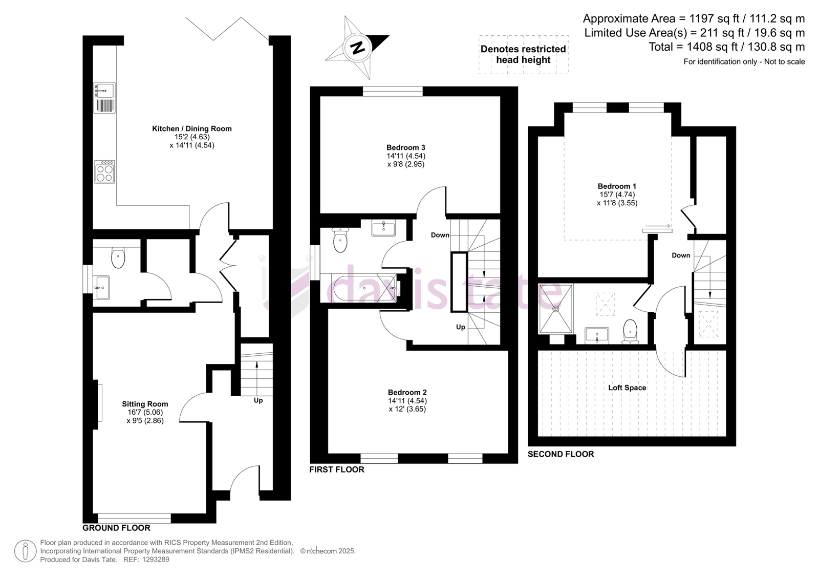
ACCOMMODATION
This three-story home features a spacious ground floor with a sitting room at the front, a central hallway with a WC and utility cupboard, and a large open-plan kitchen/diner at the rear. The first floor includes two double bedrooms and a contemporary family bathroom. The second floor is dedicated to the primary bedroom, which includes an en-suite bathroom and access to a large loft space with restricted head height. (The second bedroom has the potential to be split into two rooms should another bedroom be required.)

SPECIFICATION
• 10 year new build warranty with ICW
• 1GB Infrastructure Internet speed
• Air source heat pump
• Multi point locking front entrance door
• Secure by Design Timber Windows and Doors
• Sternfester Powder coated triple glazed bifolding doors to the ground floor
• 3 car parking spaces
• A secure bike store and bin store
• Natural Indian sandstone paving to the side path and patio
• Permeable paving to the front driveways
• Electric car charging points
• Underfloor heating to the ground floor (water based system)
• Towel rails / Radiators to the upper floors and electric underfloor heating to the bathrooms with thermostatic valves.
• Heating zones on each floor
• Shaker style kitchen units with brass handles
• Complete with all appliances incl. integrated dishwasher, washer/dryer and fridge freezer, AEG single oven and combination microwave oven, AEG 5 ring induction hob and Cooker hood
• Quartz stone worktops
• Luxury Vinyl flooring throughout the ground floor
• High spec oak internal doors with designed architrave and skirting to all rooms
• Neutral wall colour throughout
• Brushed stainless sockets and switches throughout including integrated USB chargers
• Data sockets wired in Cat 5 data cable
• Low energy LED spot lights throughout with dimmers to principle rooms
• Floor mounted WC toilet with soft close seat to all bathrooms
• 800mm wide vanity units to ensuite

OUTSIDE SPACE
Kilsaran permeable block paved driveway parking for two cars. (plots 3 and 4 have three spaces) At the rear of the property there is a large 84ft long garden that is private and enclosed with a lockable side gate. The garden has a full width patio, laid to lawn. There is a bike store, wooden shed and bin store suitable for 3 bins.

ADDITIONAL INFORMATION
West Berkshire Council
Tax Band TBC.
Predicted EPC Rating B.
Mains water and electric, air source heat pump.

Important Information

  • This is a Freehold property.

Property Ref: 242456_DRE250757

Share:

Similar Properties

Vastern Road, Reading, Berkshire, RG1

6 Bedroom House | £575,000

Post Office Lane, Burghfield, Reading, Berkshire, RG30

3 Bedroom Semi-Detached House | Offers in excess of £550,000

Whitby Drive, Reading, Berkshire, RG1

3 Bedroom Detached House | £550,000

Blenheim Road, Caversham, Reading, Berkshire, RG4

3 Bedroom Semi-Detached House | £600,000

Pettit Place, Shinfield, Reading, Berkshire, RG2

4 Bedroom Detached House | Offers in excess of £600,000

Barrington Way, Reading, Berkshire, RG1

4 Bedroom Detached House | Offers in excess of £600,000

Davis Tate (Reading)

10 Kings Road, Reading, Berkshire, RG1 3AA

0118 958 7979

How much is your home worth?

Use our short form to request a valuation of your property.

Request a Valuation

Mortgage Calculator

Amount Borrowed: £
Total Amount Repayable: £
Total Monthly Payment: £
©2025 The Guild of Property Professionals. All rights reserved. Terms and Conditions | Privacy Policy | Cookie Policy | Complaints Policy | Members Login
The Guild of Property Professionals Trading Address: 121 Park Lane, London W1K 7AG. GPEA Limited. Registered in England & Wales.  Company No: 02819824.  Registered Office Address: 2 St. Stephen's Court, St. Stephen's Road, Bournemouth, Dorset, England, BH2 6LA.  VAT Registration No: 576 8795 61
Book a Property Valuation Update Cookies Preferences