Shrewsbury Road, RH1

Guide Price
£835,000
SSTC
This property listing is now SSTC

4 Bedroom End of Terrace House for sale in Redhill

3 4 2
  • High specification new home on Shrewsbury Road
  • Prime residential location between Reigate & Redhill
  • Four bedrooms
  • Study
  • Two bathrooms
  • Private rear garden accessed from the kitchen
  • Downstairs cloakroom / utility
  • Off street parking
  • Air source heat pump
  • Ready to view now

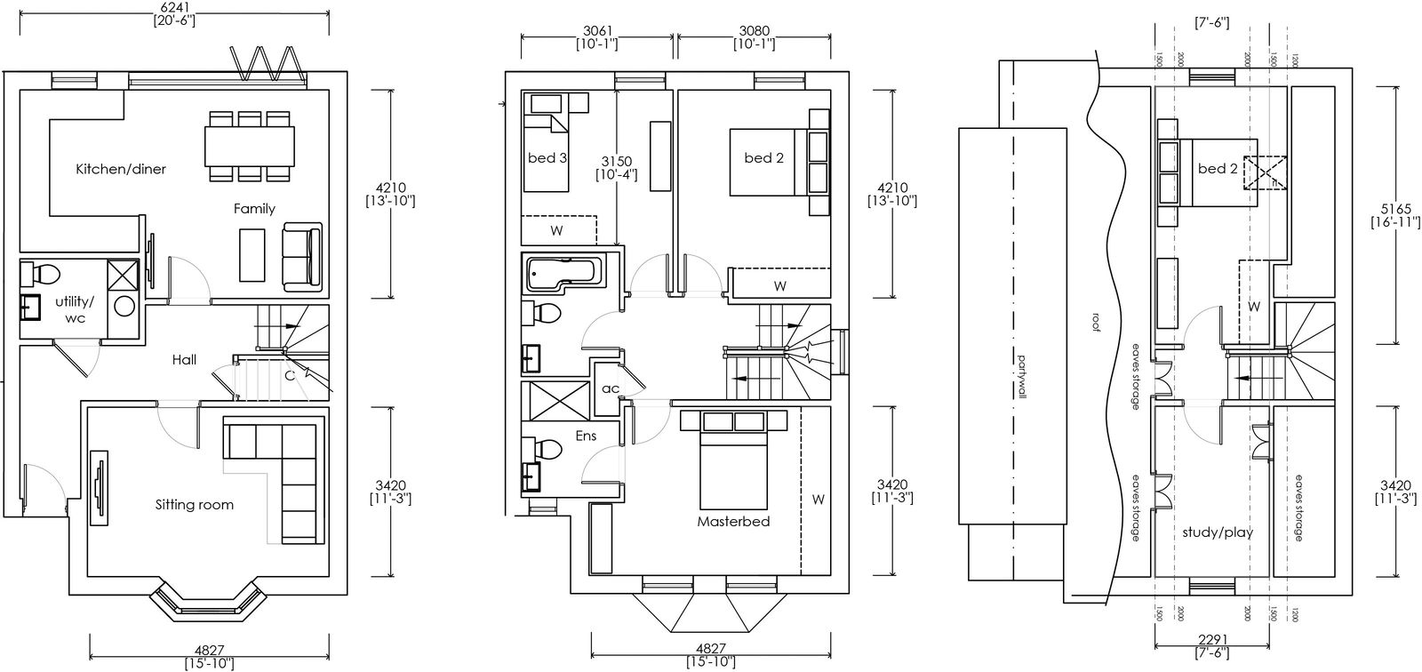
This exciting new development by CLOVERLEAF DEVELOPMENTS* consists of just five beautifully appointed homes. 

Plot 4 is situated at the top of Shrewsbury Road and benefits from a versatile open plan kitchen/dining room with integrated Bosch appliances, separate living room with double glazed sash bay windows and a cloakroom with utility.  Upstairs there is a primary bedroom with an en-suite, three further bedrooms, a study with plenty of eaves storage, and a family bathroom.  The landscaped garden is accessed via bifold doors from the kitchen/dining room. 

Ranelagh Mews sits perfectly in the popular roads of Shrewsbury Road and Ranelagh Road, and blends beautifully with the surrounding period properties. The spacious and bright accommodation is arranged three floors with a private garden as well as the benefit of off road parking with the benefit of EV charger. 

Shrewsbury Road is a pleasant road within easy reach of both Reigate and Redhill town centres. The location is largely residential however also boasts a popular deli and is walking distance to amenities including The Hatch pub as well as a post office and local shops, with many local schools also nearby. Redhill station is less than a 15 minute walk, and provides direct access to the London terminals in around 30 minutes. Reigate high street is just a 30 minute walk, with its many shops and restaurants. 

 

*Cloverleaf Developments is the trading name of Hoama (Redhill) Ltd.

Important Information

  • This is a Freehold property.

Property Ref: 1232101

Share:

Similar Properties

Allingham Road, Reigate, RH2 8HU

4 Bedroom Semi-Detached House | Guide Price £800,000

An attractive four bedroom Victorian property, conveniently located for Priory Park and local schools and amenities. 

Ermyn Cottages, South Godstone

4 Bedroom Semi-Detached House | Guide Price £800,000

A stunning newly refurbished, four bedroom semi detached property with views and swimming pool, in a semi rural location...

JUST LAUNCHED - The Showhome at Ranelagh Mews

3 Bedroom End of Terrace House | Guide Price £800,000

Ranelagh Mews. A collection of 5 brand new family homes.  Situated in a highly regarded residential area between Reigate...

Eastfield Way, Redhill

4 Bedroom Semi-Detached House | Guide Price £850,000

An immaculately presented, semi detached town house, in a delightful & peaceful cul de sac, whilst being conveniently cl...

Smallfield Road, Horley

4 Bedroom Detached House | £875,000

A well presented four bedroom detached family home located within walking distance of Horley station.

Coniston Way, Reigate

4 Bedroom Detached House | Guide Price £895,000

This immaculately presented four bedroom detached property is offered to the market with no onward chain. 

Robert Leech (Reigate)

High Street, Reigate, Reigate, Surrey, RH2 9AA

01737 246246

How much is your home worth?

Use our short form to request a valuation of your property.

Request a Valuation

Mortgage Calculator

Amount Borrowed: £
Total Amount Repayable: £
Total Monthly Payment: £
©2026 The Guild of Property Professionals. All rights reserved. Terms and Conditions | Privacy Policy | Cookie Policy | Complaints Policy | Members Login
The Guild of Property Professionals Trading Address: 121 Park Lane, London W1K 7AG. GPEA Limited. Registered in England & Wales.  Company No: 02819824.  Registered Office Address: 2 St. Stephen's Court, St. Stephen's Road, Bournemouth, Dorset, England, BH2 6LA.  VAT Registration No: 576 8795 61
Book a Property Valuation Update Cookies Preferences