Ranelagh Road, Redhill

Guide Price
£675,000
SSTC
This property listing is now SSTC

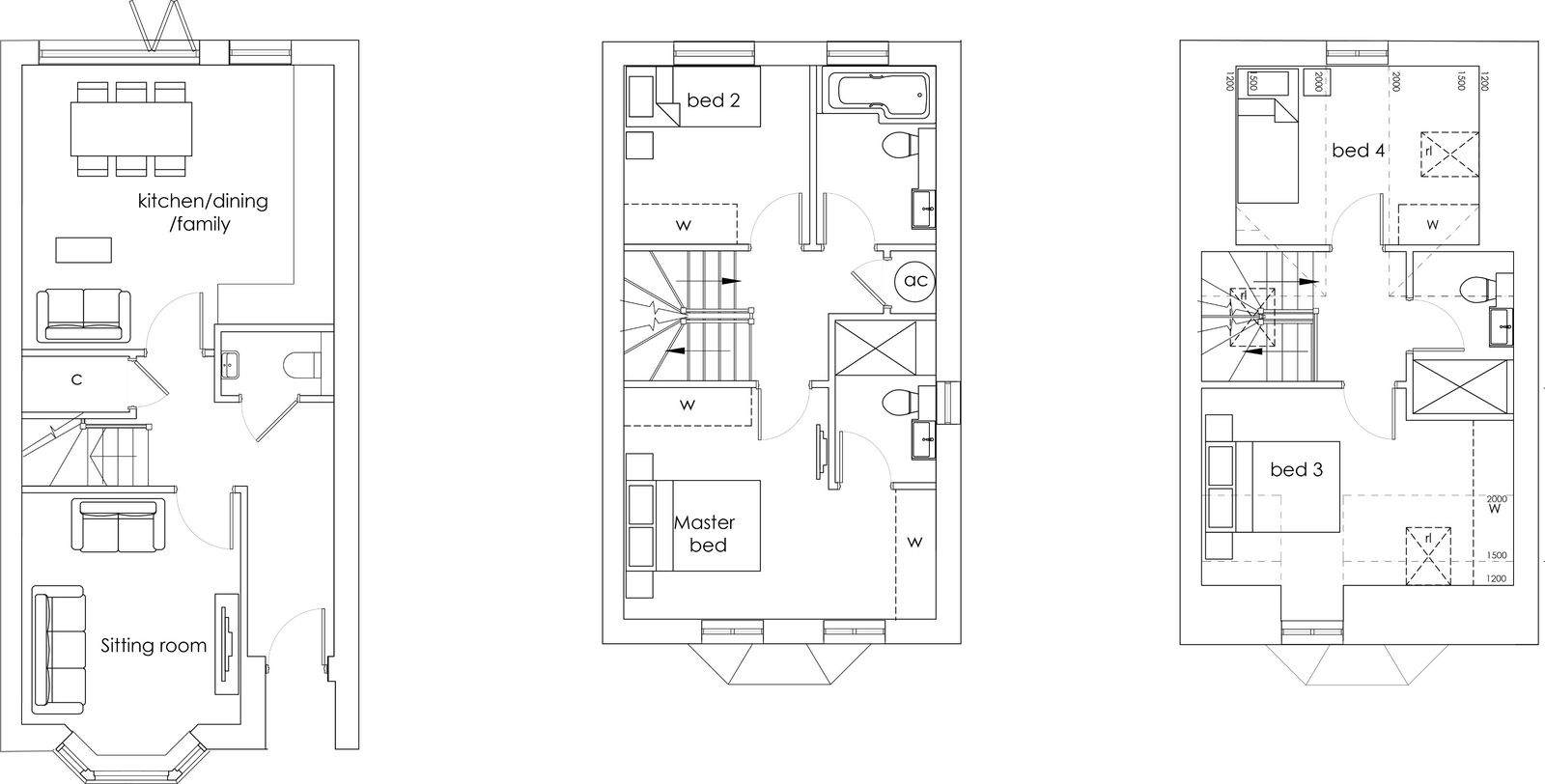
4 Bedroom End of Terrace House for sale in Redhill

2 4 3
  • High specification new home on Ranelagh Road
  • Prime residential location between Reigate & Redhill
  • Principal bedroom with en-suite
  • Three further bedrooms
  • Three bathrooms
  • Landscaped rear garden
  • Off street parking for 2 cars
  • Double glazed tilt & turn sash windows
  • Air conditioning and air source heat pumps
  • Close to local amenities & many local schools

This fabulous new build property, built by a well regarded local developer, boasts four bedrooms, three bathrooms (one en-suite), separate sitting room, kitchen / diner, and downstairs WC. The kitchen/ diner opens onto a west facing garden that features both a patio and lawned area. The property benefits from off road parking with ev charger and an air source heat pump. Air conditioning is an added luxury. 

Ranelagh Road is a pleasant road within easy reach of both Reigate and Redhill town centres. The location is largely residential however also boasts a popular deli and is walking distance to amenities including The Hatch pub as well as a post office and local shops, with many local schools also nearby. Redhill station is less than a 15 minute walk, and provides direct access to the London terminals in around 30 minutes. Reigate high street is just a 30 minute walk, with its many shops and restaurants. 

Please note that the photos are of Plot 1, which is a mirror image internally to Plot 3. 

 

Important Information

  • This is a Freehold property.

Property Ref: 1263383

Share:

Similar Properties

Norbury Road, Reigate

4 Bedroom Terraced House | Guide Price £675,000

A characterful four bedroom Victorian property located moments from Reigate town centre.

Valley Court, Wray Common Road, Reigate

2 Bedroom Penthouse | Guide Price £675,000

A stunning two bedroom penthouse apartment with beautiful views of the North Downs from a private balcony.

Holmesdale Road, Reigate

3 Bedroom Semi-Detached House | Guide Price £675,000

An immaculately presented three bedroom semi-detached Victorian home within walking distance of Reigate town and station...

Caberfeigh Close, Redhill

4 Bedroom End of Terrace House | Guide Price £700,000

A beautifully presented, bright end-of-terrace townhouse, set within a quiet, modern gated development with easy access...

Town Mead, Bletchingley

3 Bedroom Semi-Detached House | Guide Price £749,950

Beautiful barn conversion set within a sought after cul de sac, moments from Bletchingley high street. 

Stockton Road, Reigate, RH2 8JG

4 Bedroom Detached House | Offers Over £750,000

A four bedroom detached double fronted home originally built in 2020. This spectacular modern home is extremely well pre...

Robert Leech (Reigate)

High Street, Reigate, Reigate, Surrey, RH2 9AA

01737 246246

How much is your home worth?

Use our short form to request a valuation of your property.

Request a Valuation

Mortgage Calculator

Amount Borrowed: £
Total Amount Repayable: £
Total Monthly Payment: £
©2026 The Guild of Property Professionals. All rights reserved. Terms and Conditions | Privacy Policy | Cookie Policy | Complaints Policy | Members Login
The Guild of Property Professionals Trading Address: 121 Park Lane, London W1K 7AG. GPEA Limited. Registered in England & Wales.  Company No: 02819824.  Registered Office Address: 2 St. Stephen's Court, St. Stephen's Road, Bournemouth, Dorset, England, BH2 6LA.  VAT Registration No: 576 8795 61
Book a Property Valuation Update Cookies Preferences