Whitehall, Scorrier

Guide Price
£250,000

Plot for sale in Redruth

  • INDIVIDUAL BUILDING PLOT
  • APPROX TWO ACRES
  • DETAILED PLANNING PERMISSION
  • SERVICES ON SITE
  • RENOVATION & EXTENSION
  • CONVIENENT LOCATION
  • NO CHAIN
  • PLANNING REF - PA23/06726

INDIVIDUAL BUILDING PLOT SOLD WITH NO CHAIN

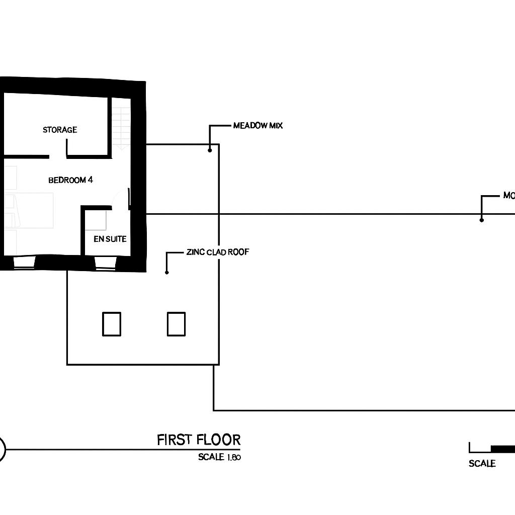
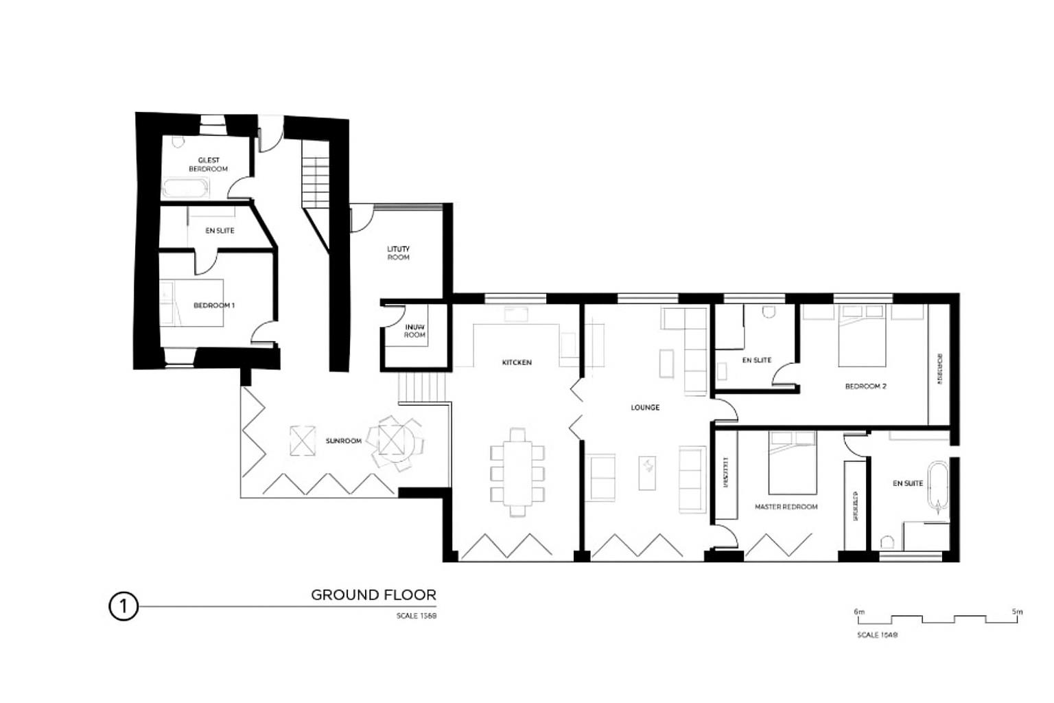
This is a unique opportunity to purchase an individual building plot with detailed planning permission granted for a large extension, and renovation of the existing 250 year old detached cottage to create a substantial detached dwelling.

The proposed accommodation includes; four bedrooms (three en-suites), bathroom, kitchen/dining room, sitting room, sun room, utility room and plant room.

Sold with no chain, viewing is highly recommended.

The Plot - Rosewarne is a fantastic opportunity to purchase a unique building plot situated on the outskirts of Chacewater. Occupying a substantial plot, sat within approximately two acres of grounds, detailed planning permission has been granted for the erection of a large extension to be constructed and linked to the existing structure of the original cottage. This creates a large, four bedroom detached property with a balance of character and modern contemporary living. The current owner has already made a start to the works on site, including clearing the plot, carrying out a mining search and therefore capping two shafts on the site, obtaining contamination reports and remediation report and obtaining the building regulation. For the full planning details, please visit Cornwall Council planning portal with the planning reference PA23/06726. Permission was granted in January 2024 and approved with conditions.

Location - Chacewater is a sought after village which is located within five miles of Truro. It benefits from a village shop, public house, bakers, doctors' surgery and primary school. Chacewater has a great sense of community with many village organisations and activities which are held throughout the year. The location offers easy access to the A30 via Scorrier and further amenities can be found in Truro.

Truro is renowned for its excellent shopping centre, fine selection of restaurants, bars, private and state schools and main line railway link to London (Paddington). The Hall for Cornwall is also a popular venue providing all year round entertainment and other cultural facilities include the Royal Cornwall Museum and the historic Cathedral.

Planning Permission - Grant of Conditional Planning Permission CORNWALL COUNCIL, being the Local Planning Authority, HEREBY GRANTS CONDITIONAL PERMISSION, subject to the conditions set out on the attached schedule, for the development proposed in the following application received on 15 August 2023 and accompanying plan(s): Description of Development: Restoration and extension of dwelling.

Planning documents can be obtained with the Cornwall Council planning portal with the planning reference PA23/06726. Permission was granted in January 2024 and approved with conditions.

Conditions - 1 The development hereby permitted shall be begun before the expiration of 3 years from the date of this permission.

2 The development hereby permitted shall be carried out in accordance with the plans listed below under the heading "Plans Referred to in Consideration of this Application".

3 No development, other than demolition of any buildings or structures, shall commence until an assessment of the risks posed by any contamination shall have been submitted to and approved in writing by the local planning authority. This assessment must be undertaken by a suitably qualified contaminated land practitioner, in accordance with British Standard BS 10175: Investigation of potentially contaminated sites - Code of Practice and the Environment Agency's Land contamination risk management (LCRM), (or equivalent British Standard and Land contamination risk management if replaced), and shall assess any contamination on the site, whether or not it originates on the site. The assessment shall include: a) a survey of the extent, scale and nature of contamination; b) the potential risks to: ' human health; ' property (existing or proposed) including buildings, crops, livestock, pets, woodland and service lines and pipes; adjoining land; ground waters and surface waters; ' ecological systems; and ' archaeological sites and ancient monuments.

4 No development shall take place where (following the risk assessment) land affected by contamination is found which poses risks identified as unacceptable in the risk assessment, until a detailed remediation scheme shall have been submitted to and approved in writing by the local planning authority. The scheme shall include an appraisal of remediation options, identification of the preferred option(s), the proposed remediation objectives and remediation criteria, and a description and programme of the works to be undertaken including the verification plan. The remediation scheme shall be sufficiently detailed and thorough to ensure that upon completion the site will not qualify as contaminated land under Part IIA of the Environmental Protection Act 1990 in relation to its intended use.

5 The approved remediation scheme in condition (4) shall be carried out and upon completion a verification report by a suitably qualified contaminated land practitioner that demonstrates the effectiveness of the remediation shall be submitted to and approved in writing by the local planning authority before the development [or relevant phase of development] is occupied.

6 Any contamination that is found during the course of construction of the approved development that was not previously identified shall be reported in writing immediately to the local planning authority. Development on the part of the site affected shall be suspended and a risk assessment carried out and submitted to and approved in writing by the local planning authority. Where unacceptable risks are found remediation and verification schemes shall be submitted to and approved in writing by the local planning authority. These approved schemes shall be carried out before the development [or relevant phase of development] is resumed or continued.

7 The site shall be landscaped strictly in accordance with the approved landscaping details identified on drawing 'PROPOSED SITE PLAN' only. All planting, seeding or turfing comprised in the approved scheme of landscaping shall be carried out in the first planting and seeding seasons following the occupation of the building or the completion of the development, whichever is the sooner. Notice shall be given to the Local Planning Authority when the approved scheme has been completed. Any trees or plants which within a period of five years from the completion of the development die, are removed or become seriously damaged or diseased shall be replaced in the next planting season with others of a similar size and species as those originally planted.

8 No work shall be undertaken to install the final external finishes to the dwelling including extensions hereby approved until details of the following have been submitted to and agreed in writing by the Local Planning Authority:
-The natural slate to the roof of the cottage to confirm the slate type, source, size(s), coursing and means of fixture with a photographic sample provided;
- Render type, colour and finish to the cottage;
-The windows and doors to confirm the final material, colour and finish to the associated framing to both the cottage and extensions;
- The timber cladding specification to include type, colour and final finish;
- The rainwater goods to confirm material and colour;

The development shall be carried out in accordance with the approved details and retained as such thereafter.

9 Prior to the installation of the green roof hereby approved a maintenance plan shall be to submitted to and approved in writing by the Local Planning Authority.

10 Notwithstanding the provisions of the Town and Country Planning (General Permitted Development) (England) Order 2015 (as amended) (or any order revoking, re-enacting or modifying that Order), no development within Classes A, B, C, D and E of Part 1 of Schedule 2 to the said Order shall be carried out without an express grant of planning permission, namely: The enlargement, improvement or other alteration of the dwellinghouse; The enlargement of the dwellinghouse consisting of an addition or alteration to its roof; Any other alterations to the roof of the dwellinghouse; The erection of construction of a porch outside any external door of the dwelling; The provision within the curtilage of the dwellinghouse of any building or
enclosure, swimming or other pool required for a purpose incidental to the enjoyment of the dwellinghouse as such, or the maintenance, improvement or other alteration of such a building or enclosure.

11 Prior to the commencement of work a repair and restoration methodology shall be submitted to and approved in writing by the Local Planning Authority. The statement shall detail elements to be repaired and shall include a floor and elevations plan where appropriate detailing elements to be removed and retained.

Please Note - The site has a shipping container which provides useful dry storage, as well as a connected portaloo which will be included in the sale.

There is also an overage clause in place outlining that only one property can be built within the site fore a 20 year period (as at June 2025 four years have elapsed).

Services - The site has mains electric and water connected. There is also a sewage treatment plant that has been installed into the lower section of the plot however is not yet connected.

N.B - The electrical circuit, appliances and heating system have not been tested by the agents.

Directions - Proceeding out of Chacewater towards Scorrier and Redruth, the property can be found on the left hand side where a Philip Martin For Sale board has been erected.

Viewing - Strictly by Appointment through the Agents Philip Martin, 9 Cathedral Lane, Truro, TR1 2QS. Telephone: 01872 242244 or 3 Quayside Arcade, St. Mawes, Truro TR2 5DT. Telephone 01326 270008.

Data Protection - We treat all data confidentially and with the utmost care and respect. If you do not wish your personal details to be used by us for any specific purpose, then you can unsubscribe or change your communication preferences and contact methods at any time by informing us either by email or in writing at our offices in Truro or St Mawes.

Property Ref: 858996_34173683

Share:

Similar Properties

Portloe

2 Bedroom Barn Conversion | Guide Price £250,000

Best and final offers by 5:30pm on Monday the 21st of June 2021TWO BARNS WITH HUGE POTENTIAL, PARKING & GARDENSSet on th...

Ladock, Truro

2 Bedroom Cottage | Guide Price £250,000

DETACHED STONE COTTAGE WITH PARKING & SOLD WITH NO CHAIN Situated in a delightful location close to the centre of the vi...

Truro

3 Bedroom Townhouse | Guide Price £250,000

DOUBLE FRONTED PERIOD TOWNHOUSEMiddle-terrace dwelling in convenient position close to city centre.3 bedrooms, shower ro...

Scobles Terrace, Malpas

2 Bedroom Terraced House | Offers in excess of £255,000

CHARACTER TERRACED COTTAGE IN MALPASSituated within walking distance of Truro city with all its amenities on offer yet o...

Chyvelah Ope, Gloweth, Truro

2 Bedroom End of Terrace House | Guide Price £255,000

END TERRACE TWO BEDROOM HOUSE WITH ENCLOSED GARDEN AND TWO PARKING SPACESTwo bedroom end terraced house situated in conv...

Perranwell Station, Truro

3 Bedroom Terraced House | Offers Over £260,000

CHARACTER COTTAGE IN THE HEART OF THE VILLAGEThis mid-terraced home has recently been improved with a newly fitted kitch...

Philip Martin (Truro)

Truro, Cornwall, TR1 2QS

01872 242244

How much is your home worth?

Use our short form to request a valuation of your property.

Request a Valuation

Mortgage Calculator

Amount Borrowed: £
Total Amount Repayable: £
Total Monthly Payment: £
©2025 The Guild of Property Professionals. All rights reserved. Terms and Conditions | Privacy Policy | Cookie Policy | Complaints Policy | Members Login
The Guild of Property Professionals Trading Address: 121 Park Lane, London W1K 7AG. GPEA Limited. Registered in England & Wales.  Company No: 02819824.  Registered Office Address: 2 St. Stephen's Court, St. Stephen's Road, Bournemouth, Dorset, England, BH2 6LA.  VAT Registration No: 576 8795 61
Book a Property Valuation Update Cookies Preferences