Treleigh Avenue, Redruth

Guide Price
£250,000

Plot for sale in Redruth

BUILDING PLOTS IN CONVENIENT LOCATION

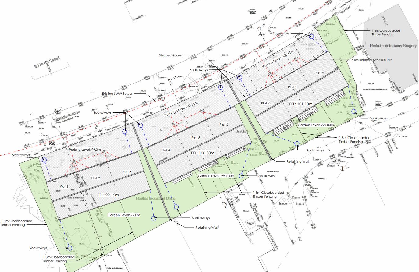
An opportunity to acquire a plot for a terrace of THREE dwellings with full planning permission and building regulations.

Also available is the entire site of NINE dwellings, further details from the sole agents.

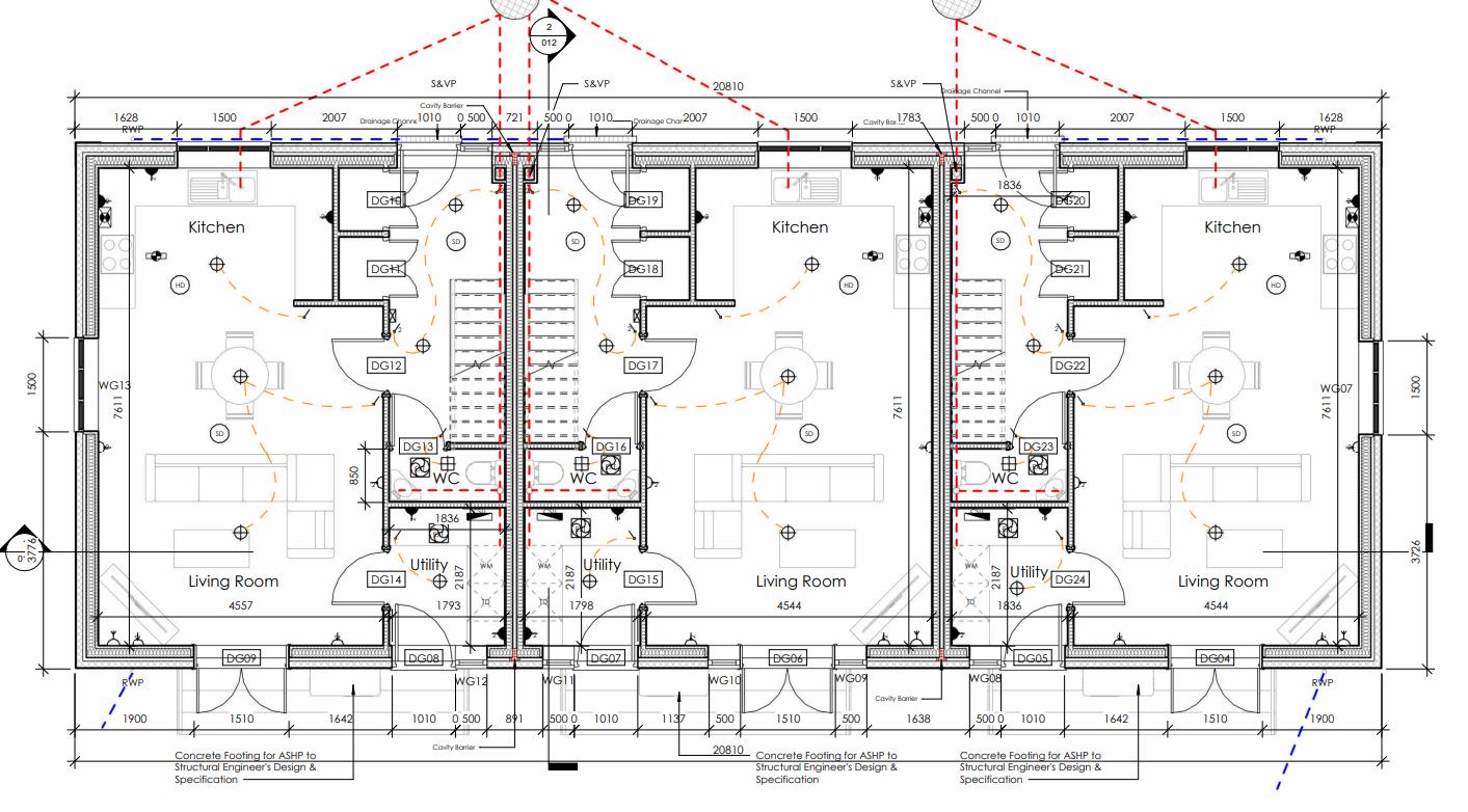
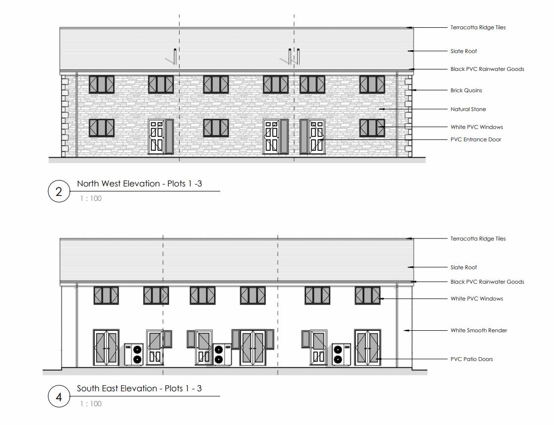
General Comments - This is an opportunity to purchase a selection of three terraced plots within a convenient location within the town. The plots are available as three separate sites each comprising three, three bedroom houses although a developer may also be interested in purchasing the entire site of nine plots in total. The entire site of 9 plots is available via negotiation.

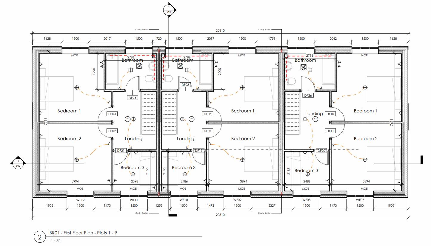
The three bedroom houses comprise of a ground floor with an entrance hall, cloakroom, open plan living room with kitchen, dining space and lounge as well as a utility room. To the first floor there are three bedrooms and a family bathroom.

Planning Information - The planning application number is PA17/06844 and full details can be found via the Cornwall Council Planning Portal https://planning.cornwall.gov.uk/online-applications/

Viewing - Strictly by Appointment through the Agents Philip Martin, 9 Cathedral Lane, Truro, TR1 2QS. Telephone: 01872 242244.

Data Protection - We treat all data confidentially and with the utmost care and respect. If you do not wish your personal details to be used by us for any specific purpose, then you can unsubscribe or change your communication preferences and contact methods at any time by informing us either by email or in writing at our offices in Truro or St Mawes.

Property Ref: 858996_34292036

Share:

Similar Properties

Portloe

2 Bedroom Barn Conversion | Guide Price £250,000

Best and final offers by 5:30pm on Monday the 21st of June 2021TWO BARNS WITH HUGE POTENTIAL, PARKING & GARDENSSet on th...

Ladock, Truro

2 Bedroom Cottage | Guide Price £250,000

DETACHED STONE COTTAGE WITH PARKING & SOLD WITH NO CHAIN Situated in a delightful location close to the centre of the vi...

Truro

3 Bedroom Townhouse | Guide Price £250,000

DOUBLE FRONTED PERIOD TOWNHOUSEMiddle-terrace dwelling in convenient position close to city centre.3 bedrooms, shower ro...

Scobles Terrace, Malpas

2 Bedroom Terraced House | Offers in excess of £255,000

CHARACTER TERRACED COTTAGE IN MALPASSituated within walking distance of Truro city with all its amenities on offer yet o...

Chyvelah Ope, Gloweth, Truro

2 Bedroom End of Terrace House | Guide Price £255,000

END TERRACE TWO BEDROOM HOUSE WITH ENCLOSED GARDEN AND TWO PARKING SPACESTwo bedroom end terraced house situated in conv...

Perranwell Station, Truro

3 Bedroom Terraced House | Offers Over £260,000

CHARACTER COTTAGE IN THE HEART OF THE VILLAGEThis mid-terraced home has recently been improved with a newly fitted kitch...

Philip Martin (Truro)

Truro, Cornwall, TR1 2QS

01872 242244

How much is your home worth?

Use our short form to request a valuation of your property.

Request a Valuation

Mortgage Calculator

Amount Borrowed: £
Total Amount Repayable: £
Total Monthly Payment: £
©2025 The Guild of Property Professionals. All rights reserved. Terms and Conditions | Privacy Policy | Cookie Policy | Complaints Policy | Members Login
The Guild of Property Professionals Trading Address: 121 Park Lane, London W1K 7AG. GPEA Limited. Registered in England & Wales.  Company No: 02819824.  Registered Office Address: 2 St. Stephen's Court, St. Stephen's Road, Bournemouth, Dorset, England, BH2 6LA.  VAT Registration No: 576 8795 61
Book a Property Valuation Update Cookies Preferences