West Trewirgie Road, Redruth

Guide Price
£895,000

10 Bedroom Detached House for sale in Redruth

4 10 4
  • Substantial Period Residence
  • Ten Bedrooms in Total
  • Four Reception Rooms
  • Generous Plot
  • Grand Entrance Drive
  • Versatile Top Floor
  • Self-Contained Secondary Dwelling
  • Beautiful Gardens
  • Outbuildings
  • Double Garage & Ample Parking

An Impressive and Substantial Period Residence

A striking and versatile ten-bedroom family home arranged over three floors, set within grounds approaching an acre and located only a short walk from Redruth town centre.

Currently configured as two self-contained dwellings with shared top-floor accommodation, the property offers exceptional flexibility and could readily be returned to one grand residence.

With ample parking, double garage and a detached garage with attached workshops.

General Comments - Penvearn represents an exceptional opportunity to acquire a significant period property of character and scale. Approached through granite gateposts to a sweeping driveway with extensive parking, the house makes a commanding first impression.

The larger principal home is entered through the original front door into a magnificent reception hall with an elegant staircase rising to the upper floors. The ground floor provides a formal dining room with a fireplace, a spacious kitchen/dining room with a bay window overlooking the rear garden, and a sitting room with French doors opening to the garden. Upstairs are six generous bedrooms, including a master with en suite shower room, together with a family bathroom and separate shower room. A connecting hallway and staircase give access to the top floor.

The second dwelling-accessed via its own private entrance-offers equally comfortable accommodation. The ground floor includes a substantial kitchen/breakfast room, a formal dining/reception room with curved bay window, and a conservatory enjoying views of the garden. On the first floor is a large bedroom with dressing room and en suite bathroom, plus a light-filled sitting room, again with a curved bay.

The shared top floor provides three spacious rooms currently used as guest bedrooms and additional storage. This level offers excellent scope for a variety of uses, from further bedrooms to a home office suite, or even a separate apartment, subject to any necessary consents. There is plenty of parking, double garage and a detached garage with workshops as well as the large and established gardens.

In summary, Penvearn is a rare find: a substantial period residence offering immense flexibility, extensive gardens, and ample parking, all within easy reach of Redruth's amenities and transport links.

A Short History Of Penvearn - Penvearn stands as one of Redruth's most characterful period homes, built in 1912 by local builder John Odgers of Clinton Road for the Trounson family, well-known grocers and owners of the former Woolworths building at the top of Redruth High Street. The original build cost was �1,592-considerable for the time-and the house remains a fine example of early-20th-century Cornish architecture.

The Trounsons' eldest son, Donald, often recalled visiting with his sister Elizabeth, who was born at Penvearn in 1919. Childhood chalk drawings by Elizabeth, thought to date from around 1925, can still be seen in the loft. Donald later praised the sensitive extension added decades later, noting "the clever design and comfortable way in which the new work blends with the old."

Penvearn has witnessed many historic moments. In August 1914, the Trounson family gathered in the kitchen to hear news that war had broken out. During the Second World War the property's windows were shattered by a nearby German bomb that tragically claimed lives in an adjacent house. Throughout the war Penvearn provided shelter to several evacuees, including senior staff from Marylebone Grammar School-whose classes were held locally at Fore Street Methodist Church-as well as an RAF sergeant's family, a London family displaced by the Blitz, and Mrs. Hambly, mother of Redruth's art master.

Subsequent owners each left their mark. In 1946 Penvearn was sold to Dr. Ince, who ran his medical practice from the front room. Ownership then passed to Mr. L. A. Hobgen in 1960, to Mr. and Mrs. Hughes-Jones-he an architect-in 1965, and finally to the Regan family in 1984. In 1991, J & E Regan Builders created a sympathetic extension so the family's four children could have bedrooms on the same floor as their parents, keeping the top floor for visiting guests.

Today Penvearn offers not only elegant, well-proportioned accommodation but also a remarkable connection to Redruth's social history-a rare opportunity to own a home that embodies more than a century of Cornish life.

Location - Redruth offers a wide range of facilities which includes shops, bars and restaurants as well as junior and secondary schooling and a mainline railway station connecting with London Paddington. More comprehensive shopping can be found in Truro which is around 12 miles distance from the property. The popular village of Portreath is only 5 miles away and is renowned for its beach and coastal walks.

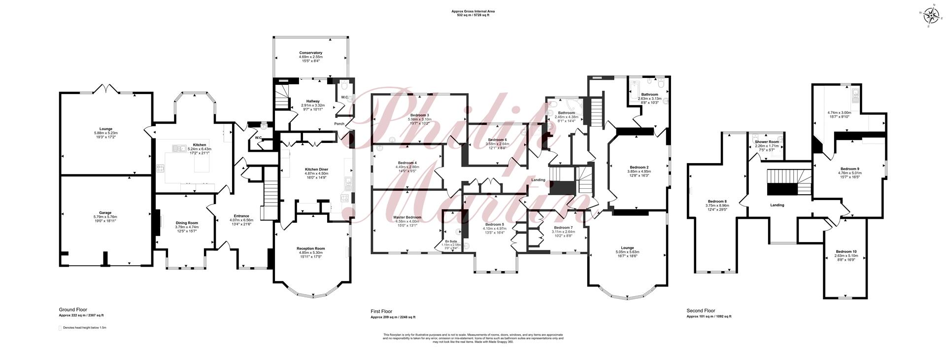
In greater detail the accommodation comprises (all measurements are approximate):

Main House -

Entrance Hallway - 4.07 x 6.56 (13'4" x 21'6") - A wonderful entrance hall with stairs to first floor.

Dining Room - 3.79 x 4.74 (12'5" x 15'6") - With bay window and feature fireplace.

Kitchen/Breakfast Room - 5.24 x 6.43 (17'2" x 21'1") - A light and spacious room with bay window overlooking the gardens. Fitted with an excellent range of units with several integrated appliances. A worktop which also features a breakfast bar.

Lounge - 5.88 x 5.23 (19'3" x 17'1") - A generous room, French doors to garden.

Utility - Space and plumbing for washing machine and tumble dryer.

Wc - Wash hand basin and w.c.

First Floor -

Landing - Linen cupboard. Connecting door to East Wing.

Master Bedroom - 4.58 x 4.00 (15'0" x 13'1") -

En-Suite - 1.15 x 2.54 (3'9" x 8'3") - Shower, wash hand basin and w.c.

Bedroom 3 - 5.98 x 3.10 (19'7" x 10'2") -

Bedroom 4 - 4.49 x 2.86 (14'8" x 9'4") -

Bedroom 5 - 4.10 x 4.97 (13'5" x 16'3") -

Bedroom 6 - 3.68 x 2.64 (12'0" x 8'7") -

Bedroom 7 - 3.11 x 2.64 (10'2" x 8'7") -

Family Bathroom - 2.46 x 4.38 (8'0" x 14'4") - Corner bath, w.c. and wash hand basin. Airing cupboard.

Shower Room - Walk in double shower.

The East Wing -

Entrance Porch -

Hallway - 2.91 x 3.32 (9'6" x 10'10") - Stairs to first floor with under stairs cupboard.

Wc - Wash hand basin and w.c.

Conservatory - 4.69 x 2.55 (15'4" x 8'4") - Views over the garden.

Kitchen/Dining Room - 4.87 x 4.5 (15'11" x 14'9") - Fitted with a range of units and with large windows providing plenty of light.

Reception Room - 4.85 x 5.30 (15'10" x 17'4") - Bay window to front and feature fireplace.

First Floor - Landing - with connecting door to main house.

Lounge/Bedroom - 5.05 x 5.63 (16'6" x 18'5") - Bay window to front and suitable as a main bedroom if required.

Bedroom 2 - 3.85 x 4.95 (12'7" x 16'2") - Built in wardrobes and windows to side.

Jack And Gill Bathroom - 2.63 x 3.13 (8'7" x 10'3") - Bath, w.c., bidet and vanity wash hand basin.

Dressing Room - Space for wardrobe.

Second Floor - With access from the main house and the east wing.

Landing - Attractive staircase opening to a large landing.

Bedroom 8 - 3.75 x 8.96 (12'3" x 29'4") - Fireplace.

Shower Room - 2.26 x 1.71 (7'4" x 5'7") - Shower, w.c. and basin.

Bedroom 9 - 4.76 x 5.01 (15'7" x 16'5") -

Kitchenette - 4.74 x 3.00 (15'6" x 9'10") - With sink and drainer.

Bedroom 10 - 2.63 x 5.10 (8'7" x 16'8") - A lovely bedroom with vaulted ceiling and built in wardrobe.

Gardens & Grounds - The property stands in level grounds approaching one acre, enclosed by mature hedging and fencing to ensure privacy. To the rear lies a broad expanse of lawn-perfect for family recreation-interspersed with wooded areas and complemented by a series of patio terraces. Outbuildings include a former garage now adapted as a bar and reception area, adding to the home's entertaining credentials.

Garage/Workshop - 5.59 x 2.77 (18'4" x 9'1") -

Gardeners W.C. -

Store - 2.59 x 2.29 (8'5" x 7'6") -

Shed - 3.81 x 3.43 (12'5" x 11'3") -

Services - Mains gas, electricity, drainage and water.

N.B - The electrical circuit, appliances and heating system have not been tested by the agents.

Viewing - Strictly by Appointment through the Agents Philip Martin, 9 Cathedral Lane, Truro, TR1 2QS. Telephone: 01872 242244 or 3 Quayside Arcade, St. Mawes, Truro TR2 5DT. Telephone 01326 270008.

Data Protection - We treat all data confidentially and with the utmost care and respect. If you do not wish your personal details to be used by us for any specific purpose, then you can unsubscribe or change your communication preferences and contact methods at any time by informing us either by email or in writing at our offices in Truro or St Mawes.

Directions - Heading west on the A30 take the exit signposted Redruth and follow the road passing Tesco and proceed through two sets of traffic lights. Take the right hand turning into Trewirgie Road, following the road around to the right at the top of the hill into West Trewirgie Road. The entrance drive is easily identified on the right.

Property Ref: 858996_34199469

Share:

Similar Properties

The Avenue, Truro

5 Bedroom Townhouse | Guide Price £895,000

VICTORIAN TOWNHOUSE IN TRURO'S MOST PRESITGIOUS LOCATIONLocated on The Avenue, arguably Truro's most sought-after reside...

St. Johns Terrace, Devoran

4 Bedroom End of Terrace House | Guide Price £875,000

GRADE II LISTED PERIOD HOUSEPerfectly located in one of the most favoured parts of the village, enjoying uninterrupted v...

West Portholland, Portloe, Truro

4 Bedroom Detached House | Guide Price £865,000

AN ENCHANTING PROPERTY IN A MAGICAL LOCATION DEEP IN THE ROSELAND COUNTRYSIDE AND JUST INLAND FROM THE SEA Originally a...

Point, Devoran, Truro

6 Bedroom Detached House | Guide Price £950,000

DETACHED HOUSE ENJOYING STUNNING WATER VIEWS Occupying a large, level south facing plot enjoying uninterrupted views ove...

Rosevine, Roseland Peninsula

4 Bedroom Detached House | Guide Price £950,000

A DETACHED DORMER BUNGALOW LOCATED IN A PRESTIGIOUS COASTAL HAMLET WITH STUNNING VIEWS OVER GERRANS BAYA rare opportunit...

Chacewater, Near Truro

4 Bedroom Detached House | Guide Price £975,000

PERIOD HOUSE WITH SEPARATE COTTAGE, STABLES AND THREE ACRES OF LANDSituated in a very private setting and completely hid...

Philip Martin (Truro)

Truro, Cornwall, TR1 2QS

01872 242244

How much is your home worth?

Use our short form to request a valuation of your property.

Request a Valuation

Mortgage Calculator

Amount Borrowed: £
Total Amount Repayable: £
Total Monthly Payment: £
©2025 The Guild of Property Professionals. All rights reserved. Terms and Conditions | Privacy Policy | Cookie Policy | Complaints Policy | Members Login
The Guild of Property Professionals Trading Address: 121 Park Lane, London W1K 7AG. GPEA Limited. Registered in England & Wales.  Company No: 02819824.  Registered Office Address: 2 St. Stephen's Court, St. Stephen's Road, Bournemouth, Dorset, England, BH2 6LA.  VAT Registration No: 576 8795 61
Book a Property Valuation Update Cookies Preferences