Oakfield Drive, Reigate

Guide Price
£750,000
SSTC
This property listing is now SSTC

3 Bedroom Link Detached House for sale in Reigate

3 1
  • Detached family home
  • 3 bedooms & 1 bathroom
  • Flexible & adaptable accommodation
  • Secluded rear garden
  • Off road parking & garage
  • Convenient location for town & station
  • Close to many local schools
  • Quiet cul de sac

Oakfield Drive is a pleasant and quiet cul de sac in a great location within walking distance of Reigate town centre, station and many of the local schools.  

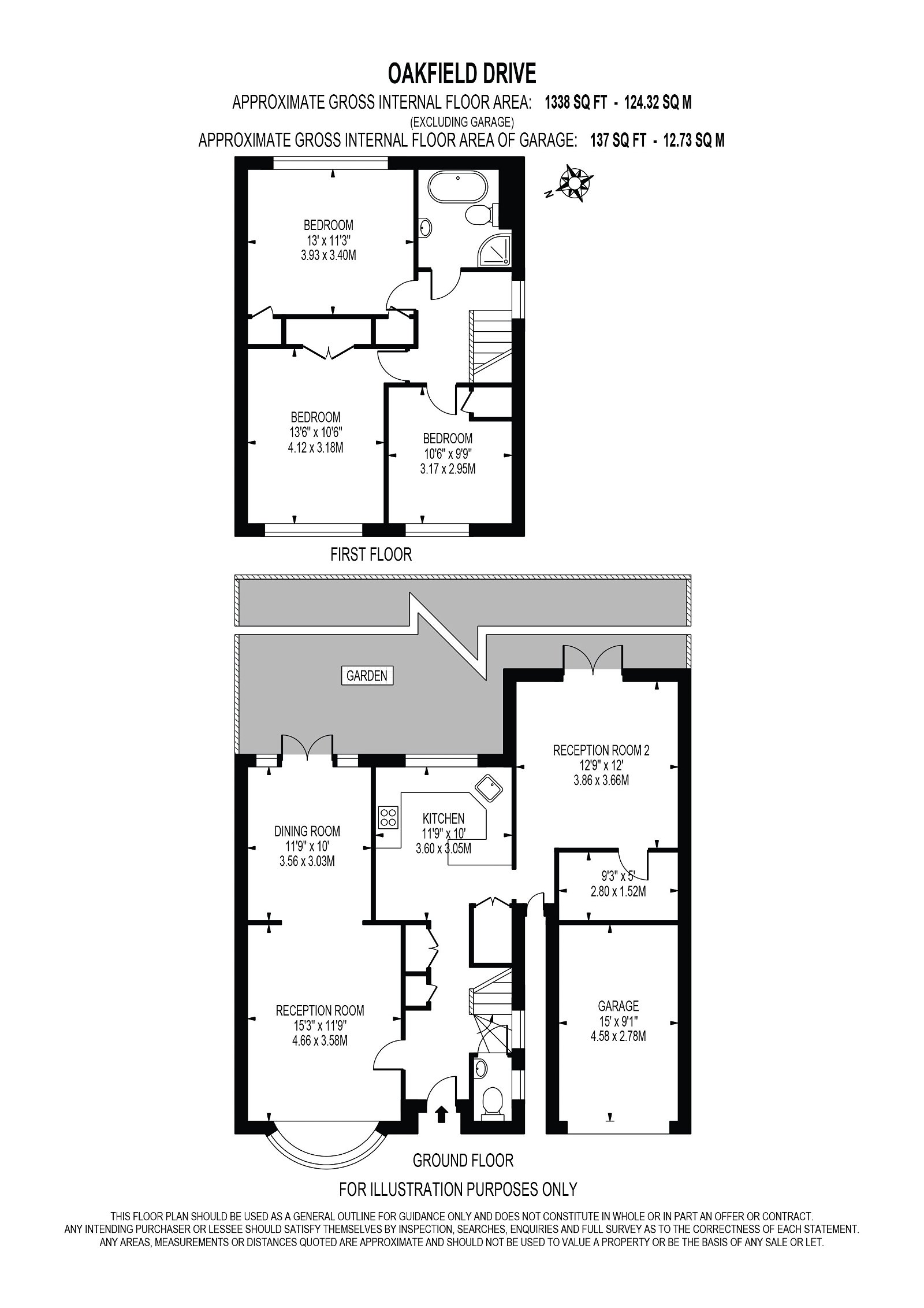
This is a detached, 3-bedroom family home with well proportioned and flexible accommodation.

On the ground floor there is a good sized sitting room, with a bay window to the front elevation and parquet flooring, this opens through to the dining room which allows both rooms to enjoy a double aspect resulting in lovely bright rooms.  The dining room has sliding doors giving access out into the rear garden.  The kitchen is fitted with a comprehensive range of wall and base units, space for appliances and a useful breakfast bar.  There is a further reception room to the rear of the property - currently utilised as a bedroom but could equally be used as a TV room, home office, gym etc as desired.  A cloakroom in the hallway completes the downstairs accommodation.

Upstairs there are two good sized double bedrooms, one to the rear and one to the front elevation, there is a third bedroom and a family bathroom.

Outside

To the front of the property there is off road parking on the driveway in front of the garage. 

The rear garden has an area of patio, perfect for a table and chairs, the remainder is mainly laid to lawn with flower borders and enjoys a good level of privacy.

 

Reigate provides a comprehensive range of local shops and boutiques with an M&S Simply Food and Jo Malone. There are also a good number of restaurants, artisan cafes, bakeries and patisseries including Chalk Hill Bakeries, Cullenders, The Chapel & Canakin. Local independent restaurants provide a wealth of international cuisine in addition to many favourite High Street names. 

Reigate Priory Park offers many acres of open parkland and excellent facilities including tennis courts, skate park and a café. 

The area offers a wide range of sporting facilities including active rugby, cricket, and tennis clubs. For golfers local courses include Reigate Heath, Betchworth Park, Walton Heath and the RAC Club at Epsom. 

Commuting to London from Reigate station takes around 40 minutes into London Bridge or Victoria. Gatwick airport in 15 minutes, along with routes to a variety of other destinations, whilst The Channel Tunnel is within a 90 minute drive.

Important Information

  • This is a Freehold property.
  • This Council Tax band for this property is: F

Property Ref: 634557

Share:

Similar Properties

Stockton Road, Reigate, RH2 8JG

4 Bedroom Detached House | Offers Over £750,000

A four bedroom detached double fronted home originally built in 2020. This spectacular modern home is extremely well pre...

Town Mead, Bletchingley

3 Bedroom Semi-Detached House | Guide Price £749,950

Beautiful barn conversion set within a sought after cul de sac, moments from Bletchingley high street. 

Weald Way, Reigate

4 Bedroom Semi-Detached House | Guide Price £700,000

A beautifully refurbished 4 bedroom semi-detached home,  set in a sought after cul-de-sac location within easy reach of...

JUST LAUNCHED - The Showhome at Ranelagh Mews

3 Bedroom End of Terrace House | Guide Price £800,000

Ranelagh Mews. A collection of 5 brand new family homes.  Situated in a highly regarded residential area between Reigate...

Ermyn Cottages, South Godstone

4 Bedroom Semi-Detached House | Guide Price £800,000

A stunning newly refurbished, four bedroom semi detached property with views and swimming pool, in a semi rural location...

Allingham Road, Reigate, RH2 8HU

4 Bedroom Semi-Detached House | Guide Price £800,000

An attractive four bedroom Victorian property, conveniently located for Priory Park and local schools and amenities. 

Robert Leech (Reigate)

High Street, Reigate, Reigate, Surrey, RH2 9AA

01737 246246

How much is your home worth?

Use our short form to request a valuation of your property.

Request a Valuation

Mortgage Calculator

Amount Borrowed: £
Total Amount Repayable: £
Total Monthly Payment: £
©2026 The Guild of Property Professionals. All rights reserved. Terms and Conditions | Privacy Policy | Cookie Policy | Complaints Policy | Members Login
The Guild of Property Professionals Trading Address: 121 Park Lane, London W1K 7AG. GPEA Limited. Registered in England & Wales.  Company No: 02819824.  Registered Office Address: 2 St. Stephen's Court, St. Stephen's Road, Bournemouth, Dorset, England, BH2 6LA.  VAT Registration No: 576 8795 61
Book a Property Valuation Update Cookies Preferences