Valley View Road, Rochester, ME1

£340,000
SSTC
This property listing is now SSTC

3 Bedroom Semi-Detached House for sale in Rochester

2 3 1
  • No Forward Chain
  • Three Bedroom Semi-Detached
  • Two Reception Rooms
  • Chance to Place Your Own Creative Stamp
  • Will Make a Lovely Family Home
  • Walking Distance to Top Performing Schools
  • An Opportunity to Extend Subject to Relevant Planning Permissions
  • Large Garden/Garage/Storage Room

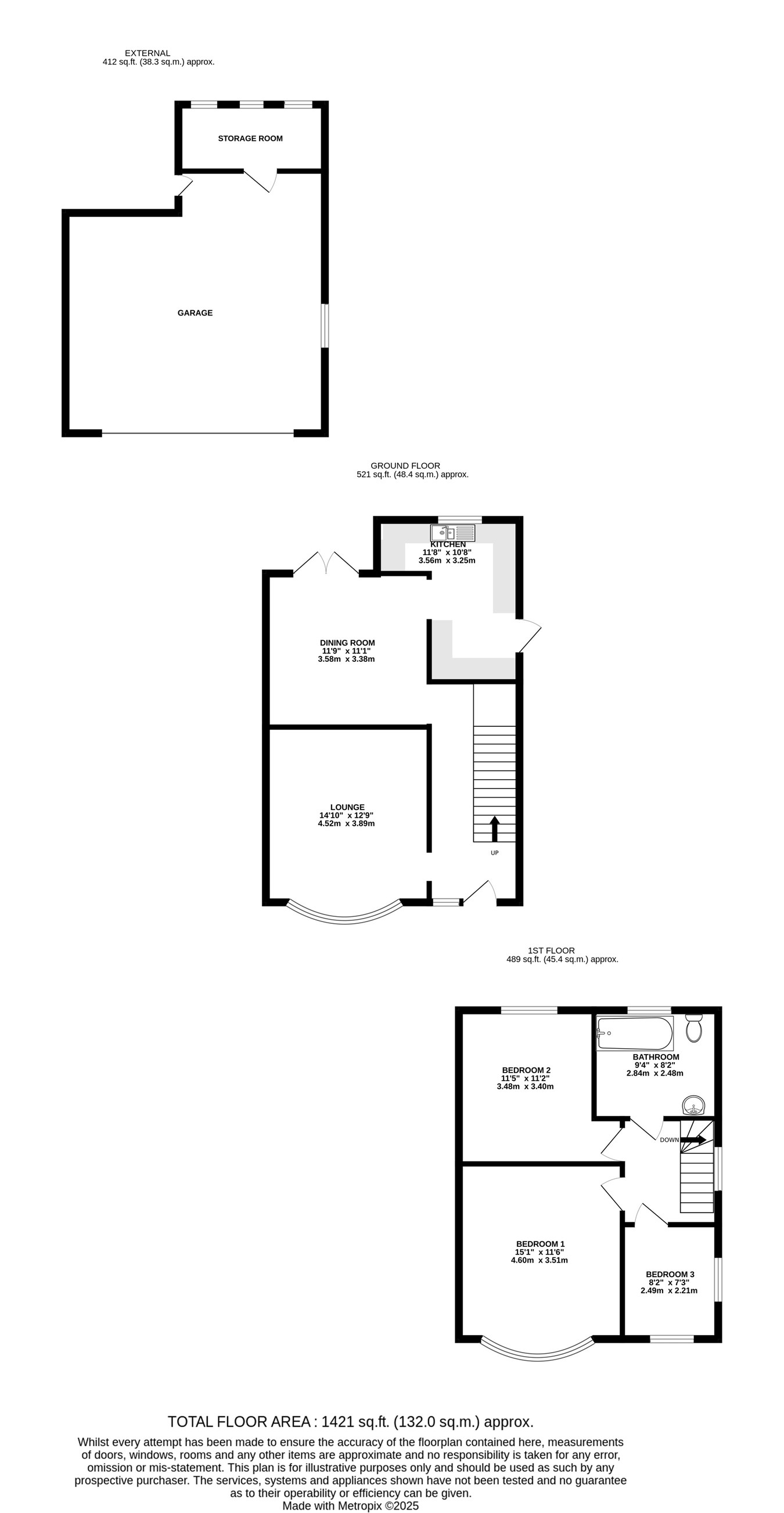
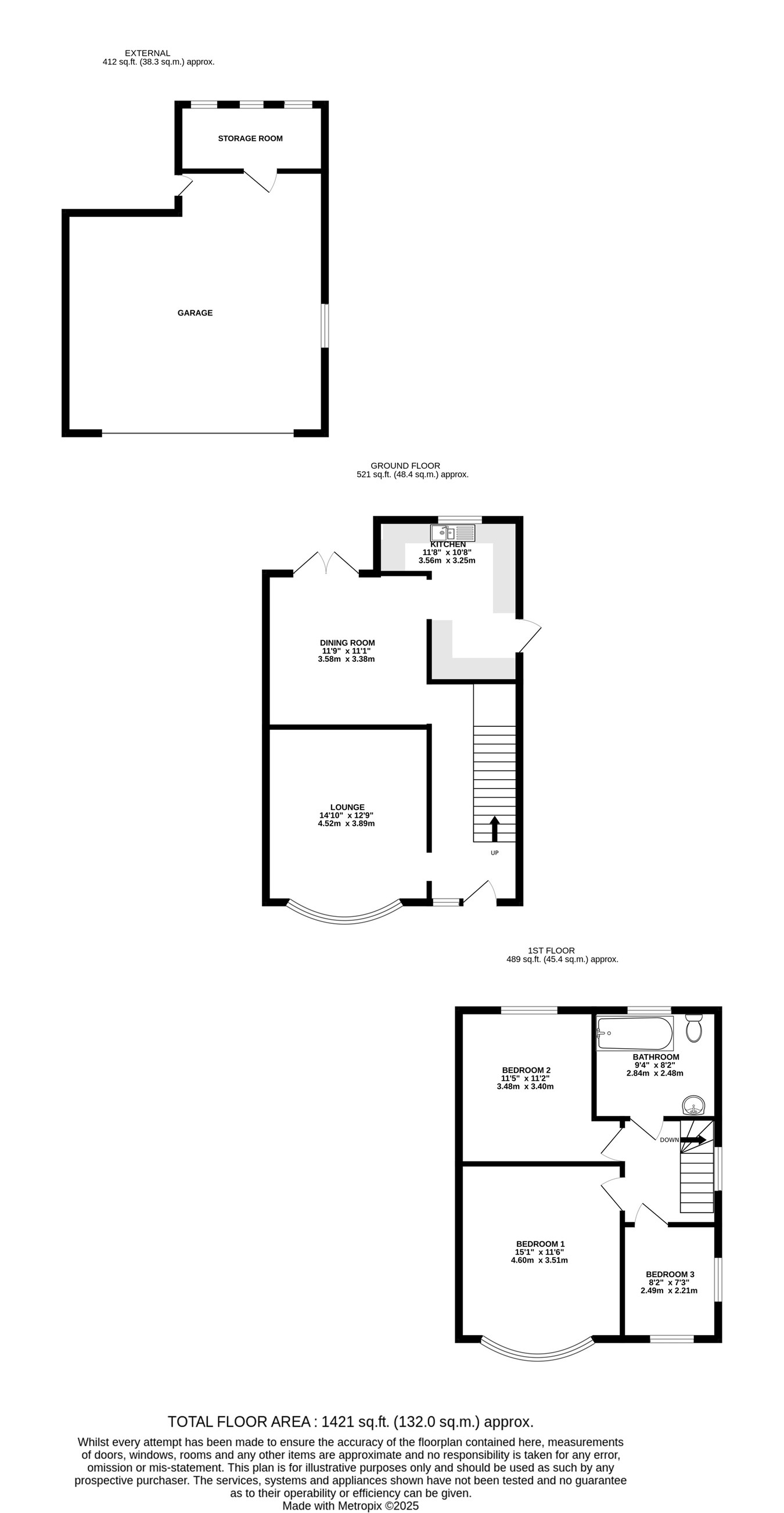
Being offered with no forward chain is this three bedroom 1930s home. The property has lots of potential and if you are looking for a project to place your own creative stamp then this would be ideal. The property sits on a good size plot and there is the opportunity to extend subject to relevant planning permissions. On entering you have an entrance hallway with stairs to the first floor. Continuing through you have a good size lounge with bay window to the front. There is a separate dining room which is a good size as well as the kitchen. Upstairs you have three bedrooms, two of which are double rooms and a family bedroom. Externally you have a large garden, laid to lawn, with a variety of trees and shrubs. There is also the garage and storage room with side access to the front with parking. Don't miss out on this opportunity. For further details please call the Walderslade Sales Team.Ground Floor

Lounge
14' 10" x 12' 9" (4.52m x 3.89m)

Dining Room
11' 9" x 11' 1" (3.58m x 3.38m)

Kitchen
11' 8" x 10' 8" (3.56m x 3.25m)

First Floor

Bedroom 1
15' 1" x 11' 6" (4.60m x 3.51m)

Bedroom 2
11' 5" x 11' 2" (3.48m x 3.40m)

Bedroom 3
8' 2" x 7' 3" (2.49m x 2.21m)

Bathroom

External

Storage Room

Garage

Important Information

  • This is a Leasehold property.

Property Ref: 29544636

Share:

Similar Properties

Winchester Avenue, Walderslade, Chatham, ME5

3 Bedroom Semi-Detached House | £340,000

Do not miss out on this no chain three bedroom semi detached home. Ideally located close to local schools and amenities....

Croydon Close, Lordswood, Chatham, ME5

3 Bedroom Semi-Detached House | Offers Over £325,000

Situated in the ever popular area of Lordswood with its schools, local shops and leisure centre, this beautifully presen...

Clandon Road, Lordswood, Chatham, ME5

3 Bedroom End of Terrace House | Offers Over £325,000

Corner plot with potential to extend subject to relevant planning permissions. This lovely three bedroom end of terrace...

Spenlow Drive, Walderslade Woods, Chatham , ME5

3 Bedroom End of Terrace House | Offers in excess of £350,000

Being offered with no forward chain is this beautifully presented three bedroom house situated in a quiet cul-de-sac pos...

West Drive, Davis Estate, Chatham, ME5

3 Bedroom Semi-Detached House | Offers in region of £350,000

Being offered with no forward chain is this three bedroom semi-detached home situated on the popular Davis Estate Develo...

Bronington Close, Princes Park, Chatham, ME5

3 Bedroom Detached House | £385,000

Exceptional detached house in the ever popular Princes Park, suburb of Chatham. Local schools, supermarket and amenities...

Greyfox Sales & Lettings (Walderslade)

Walderslade Village Centre, Walderslade, Walderslade, Kent, ME5 9LR

01634 672227

How much is your home worth?

Use our short form to request a valuation of your property.

Request a Valuation

Mortgage Calculator

Amount Borrowed: £
Total Amount Repayable: £
Total Monthly Payment: £
©2026 The Guild of Property Professionals. All rights reserved. Terms and Conditions | Privacy Policy | Cookie Policy | Complaints Policy | Members Login
The Guild of Property Professionals Trading Address: 121 Park Lane, London W1K 7AG. GPEA Limited. Registered in England & Wales.  Company No: 02819824.  Registered Office Address: 2 St. Stephen's Court, St. Stephen's Road, Bournemouth, Dorset, England, BH2 6LA.  VAT Registration No: 576 8795 61
Book a Property Valuation Update Cookies Preferences