Linton, Ross-On-Wye

£429,995

3 Bedroom Detached House for sale in Ross-On-Wye

2 3 2
  • Three Double Bedroom Detached House
  • Two Receptions plus Conservatory, Feature Double Sided Wood Burning Stove
  • Fantastic Countryside Views, Heart of the Village Location
  • Great Commuter Access to the M50
  • Double Garage and Off Road Parking
  • EPC Rating - E, Council Tax - F, Freehold

A SUBSTANTIAL THREE BEDROOM DETACHED FAMILY HOME with a FEATURE DOUBLE SIDED FIREPLACE complete with WOOD BURNING STOVE, LOUNGE / DINING ROOM plus SEPARATE SITTING ROOM which leads to a CONSERVATORY, KITCHEN / BREAKFAST ROOM with SEPARATE UTILITY, DOUBLE GARAGE, OFF ROAD PARKING, situated in the HEART of LINTON VILLAGE with PICTURESQUE COUNTRYSIDE VIEWS and within WALKING DISTANCE TO A POPULAR PUBLIC HOUSE.

The property is accessed via a wooden stable door into:

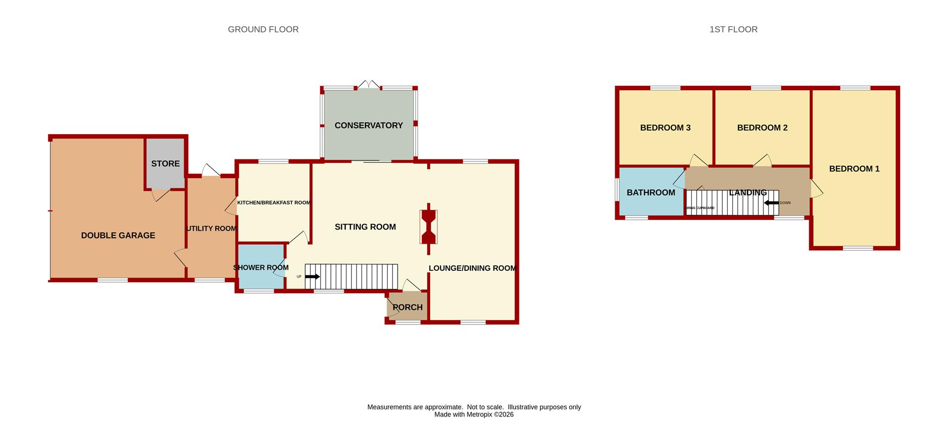
Porch - 1.60m x 1.24m (5'03 x 4'01) - Tiled flooring, front and side aspect wooden windows.

Sitting Room - 4.70m x 5.28m (15'05 x 17'04) - Double sided feature fireplace with wood burning stove, ideal for those cosy nights in by the fire, power points, radiator, coving, stairs leading to the first floor, front aspect double glazed UPVC window. Two archways either side of the fireplace give access to:

Lounge / Dining Room - 6.43m x 3.53m (21'01 x 11'07) - Double sided feature fireplace with wood burning stove, radiator, power points, television point, inset ceiling spot lights, front and rear aspect double glazed UPVC windows and coving.

Conservatory - 4.37m x 2.92m (14'04 x 9'07) - Tiled flooring, radiator, power points, double doors leading out to the garden, exposed stone work, double glazed UPVC windows all the way round with poly carbonate roof.

Kitchen - 3.25m x 2.97m (10'08 x 9'09) - Tiled flooring, a range of base, wall and drawer mounted units, stone worktops and splashbacks, single bowl granite sink unit with mixer tap above, space for an oven, space and plumbing for a dishwasher, ample space for table and chairs, radiator, power points, coving, rear aspect double glazed UPVC window.

Utility - 4.17m x 2.03m (13'08 x 6'08) - Tiled flooring, a range of base, wall and drawer mounted units, rolled edge worktops, Worcester oil-fired boiler, space and plumbing for washing machine and tumble dryer, exposed stone walls, power points, part tiled walls, front aspect single glazed wooden window, rear aspect wooden glazed door to the garden, personal door leading to double garage.

Shower Room - Coloured suite comprising of corner shower unit with mains shower over, enclosed by tiling, pedestal wash hand basin, low-level WC, radiator, part tiled walls, coving, front aspect double glazed UPVC window.

FROM THE DINING HALL, STAIRS LEAD TO THE FIRST FLOOR.

Landing - 4.62m x 1.78m (15'02 x 5'10) - Power points, access to loft space, door to airing cupboard, front aspect double glazed UPVC window.

Bedroom 1 - 6.58m x 3.53m (21'07 x 11'07) - Radiator, power points, quadruple built-in wardrobes, built-in storage cupboards, front and rear aspect double glazed UPVC windows. To the rear aspect there are stunning views to the West towards the Wye Valley over rolling countryside and hills.

Bedroom 2 - 3.68m x 3.10m (12'01 x 10'02) - Radiator, power points, coving, rear aspect double glazed UPVC window.

Bedroom 3 - 3.07m x 2.97m (10'01 x 9'09) - Radiator, power points, coving, rear aspect double glazed UPVC window.

Bathroom - Suite comprising of panelled bath, pedestal wash hand basin, low-level WC, radiator, part tiled walls, coving, front and side aspect double glazed UPVC windows.

Outside - There is off road parking for two vehicles which in turn leads to up and over doors to the double garage.

Double Garage - 5.74m x 5.36m (18'10 x 17'07) - Power and lighting, internal storage room.

The garden of the property is mostly to the front, which has a lawned area with mature flower borders, low level stone walling and a lovely aspect out to Linton Church. The property really is in the heart of the village. The garden then wraps around the side of the property to the rear and is fully dog proof fenced with new trellis fencing.

The rear garden has been landscaped for easy maintenance in Cotswold gravel. Here you will find mature flower borders, a seating area and a water fall feature. It is an ideal spot for relaxing in and for entertaining in the evening sun. There is also a storage area for the oil tank.

The gardens have been well maintained by the current owners to provide bursts of colour throughout each season.

Services - Mains water and electric, newly installed treatment plant, oil-fired heating.

Mobile Phone Coverage / Broadband Availability - It is down to each individual purchaser to make their own enquiries. However, we have provided a useful link via Rightmove and Zoopla to assist you with the latest information. In Rightmove, this information can be found under the brochures section, see "Property and Area Information" link. In Zoopla, this information can be found via the Additional Links section, see "Property and Area Information" link.

Water Rates - Welsh Water - to be confirmed.

Local Authority - Council Tax Band: F
Herefordshire Council, Plough Lane, Hereford, HR4 0LE.

Tenure - Freehold.

Viewing - Strictly through the Owners Selling Agent, Steve Gooch, who will be delighted to escort interested applicants to view if required. Office Opening Hours 8.30am - 7.00pm Monday to Friday, 9.00am - 5.30pm Saturday.

Directions - From the office proceed along the High Street taking the next left at the traffic lights signposted to Ross On Wye. Proceed through the villages of Kilcot and Gorsley passing the entrance to the M50 on the left hand side taking the next left signposted to Linton. Proceed along here for approximately 1 mile and upon entering the village of Linton, go down to the triangle taking the next left continuing along passing The Alma Inn Public House where the property can be found on the right hand side in the centre of the village opposite the church.

Property Surveys - Qualified Chartered Surveyors (with over 20 years experience) available to undertake surveys (to include Mortgage Surveys/RICS Housebuyers Reports/Full Structural Surveys).

Awaiting Vendor Approval - These details are yet to be approved by the vendor. Please contact the office for verified details.

Property Ref: 34486529

Share:

Similar Properties

Redmarley

3 Bedroom Detached Bungalow | Guide Price £425,000

A DECEPTIVELY SPACIOUS and EXTENDED THREE BEDROOM DETACHED BUNGALOW in need of SOME UPDATING AND MODERNISATION with EN-S...

Gorsley, Ross-On-Wye

3 Bedroom Detached Bungalow | Guide Price £425,000

A RARELY AVAILABLE EXTENDED THREE BEDROOM LINK DETACHED BUNGALOW with THREE RECEPTIONS plus SUN ROOM, PRIVATE MATURE WES...

Redmarley Road, Pendock

5 Bedroom Plot | Guide Price £425,000

A FANTASTIC OPPORTUNITY TO ACQUIRE A BUILDING PLOT WITH PLANNING PERMISSION IN PLACE to erect a FIVE BEDROOM DETACHED FA...

West Field, Highnam

4 Bedroom Detached House | £435,000

BEAUTIFULLY PRESENTED and EXTENDED FOUR BEDROOM DETACHED FAMILY HOME ENJOYING CONSERVATORY TO THE REAR measuring in exce...

Chapel View, Gorsley, Ross-On-Wye

2 Bedroom Detached Bungalow | Guide Price £438,000

A 4 YEAR OLD TWO DOUBLE BEDROOM LINK DETACHED BUNGALOW, LARGELY UPGRADED to include NEW KITCHEN with BUILT-IN APPLIANCES...

Tibberton, Gloucestershire

4 Bedroom Detached House | Guide Price £449,950

A LARGELY EXTENDED FOUR BEDROOM DETACHED FAMILY HOUSE, with EN-SUITE to the MASTER BEDROOM, MATURE WEST FACING ENCLOSED...

Steve Gooch Estate Agents (Newent)

Newent, Gloucestershire, GL18 1AN

01531 820844

How much is your home worth?

Use our short form to request a valuation of your property.

Request a Valuation

Mortgage Calculator

Amount Borrowed: £
Total Amount Repayable: £
Total Monthly Payment: £
©2026 The Guild of Property Professionals. All rights reserved. Terms and Conditions | Privacy Policy | Cookie Policy | Complaints Policy | Members Login
The Guild of Property Professionals Trading Address: 121 Park Lane, London W1K 7AG. GPEA Limited. Registered in England & Wales.  Company No: 02819824.  Registered Office Address: 2 St. Stephen's Court, St. Stephen's Road, Bournemouth, Dorset, England, BH2 6LA.  VAT Registration No: 576 8795 61
Book a Property Valuation Update Cookies Preferences