Doncaster Road, Rotherham

Auction Guide Price
£55,000

2 Bedroom Flat for sale in Rotherham

1 2 1
  • VIEW, BID AND BUY! Two Bedroom first floor apartment
  • Ideal purchase for INVESTORS & FIRST TIME BUYERS!
  • Gas Fired Central Heating
  • Spacious Bedrooms
  • Kitchen / Diner with space for Dining table
  • Well Kept Communal Gardens To Front
  • Unallocated Off Road Parking to Rear or Permit Parking to Front
  • VIRTUAL TOUR AVAILABLE
  • Clifton Park Location - Close to Town Centre
  • Leasehold / Council Tax Band A / Conservation Area.

Guide Price: £79,000 to £85,000. Tucked away on the ever popular Lidum Terrace, this charming TWO Bedroom First Floor Apartment offers an ideal opportunity for both INVESTORS and FIRST TIME BUYERS alike. Brimming with character, the property combines comfortable living with a highly convenient location, just moments from Rotherham Town Centre, Parkgate Retail Park, the popular Clifton Park, and excellent transport links.

Situated within a Conservation Area, Lidum Terrace enjoys a peaceful and picturesque setting, renowned for its period charm and well-preserved architecture.

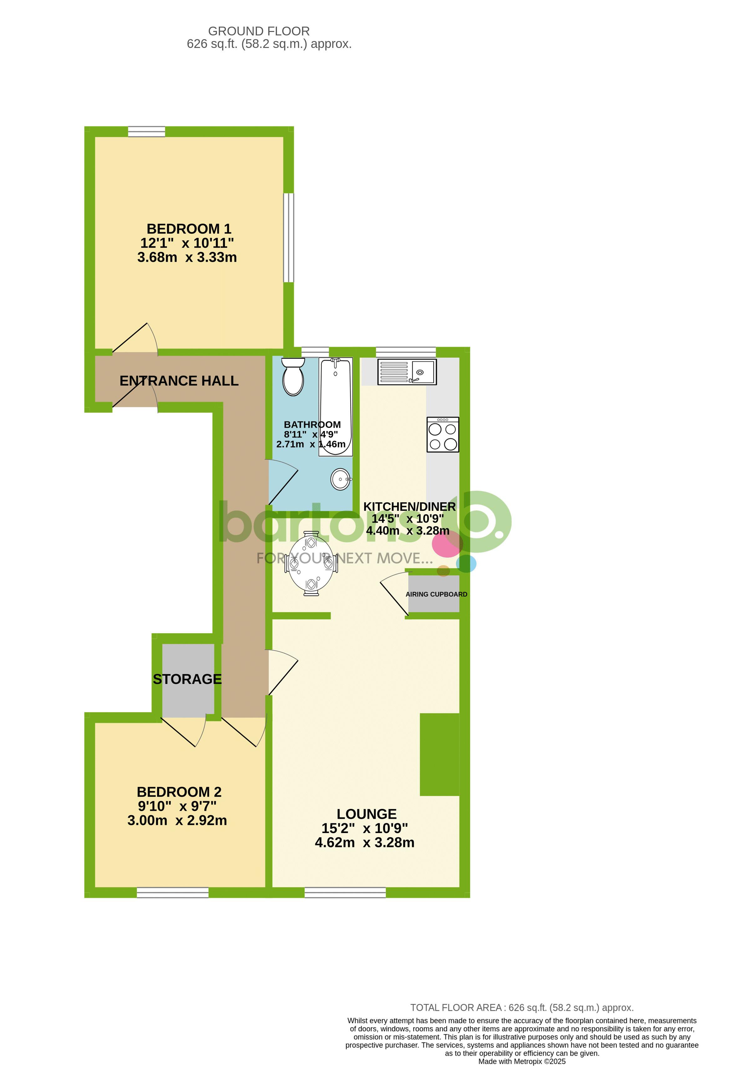
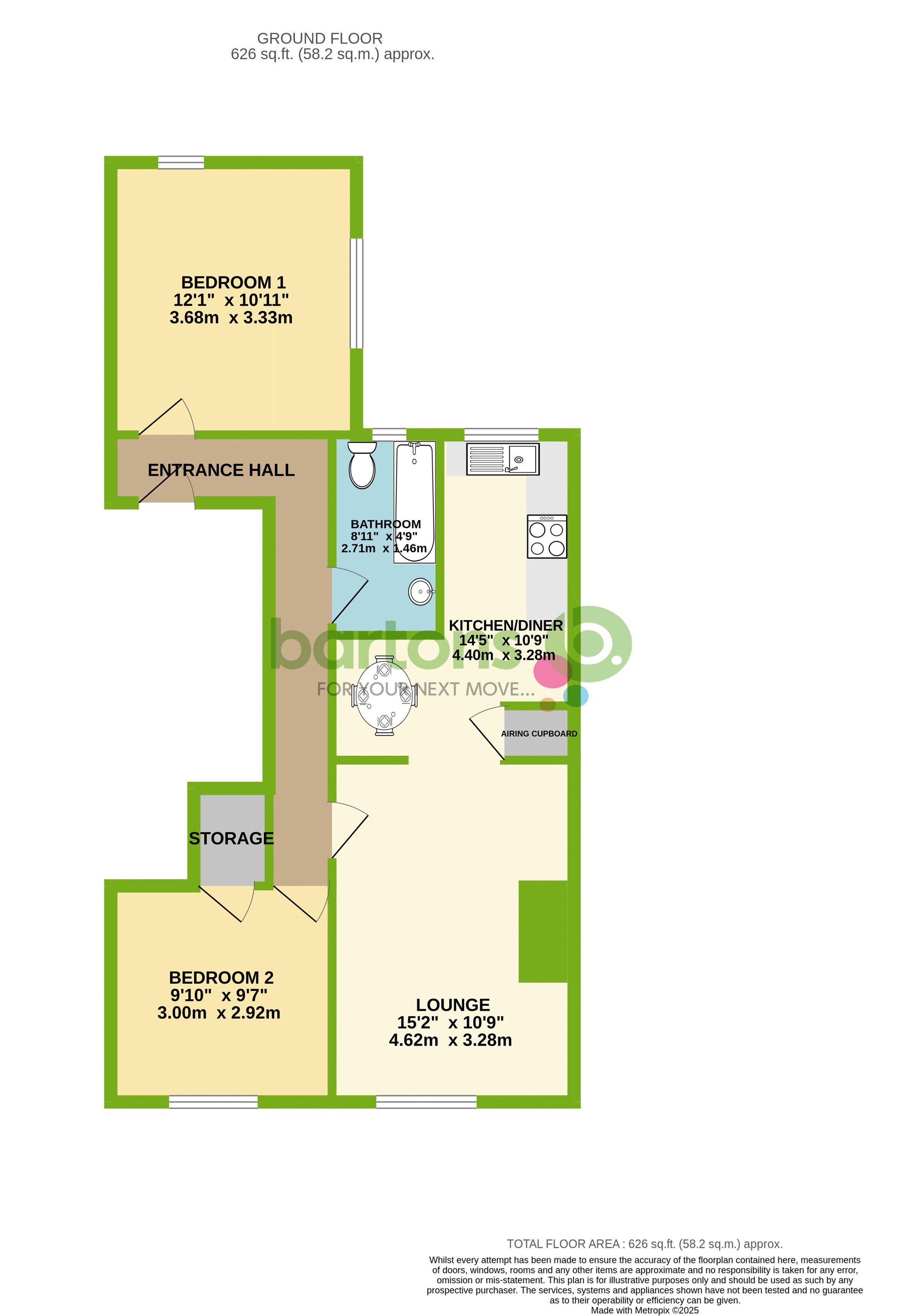
Inside, the accommodation briefly comprises an inviting Entrance Hallway leading to a bright and spacious Lounge, a fitted Kitchen/Diner with built-in oven, space for appliances and dining table, Two generously sized Bedrooms, and a neutral family Bathroom suite.

Outside, residents benefit from unallocated off-road parking to the rear, while on-street permit parking is available to the front. The property also enjoys a well tended communal lawned garden to the front, providing an attractive and welcoming outdoor space.

Early viewing is highly recommended!

AUCTIONEER COMMENTS

This property is for sale by the Modern Method of Auction, meaning the buyer and seller are to Complete within 56 days (the "Reservation Period"). Interested parties personal data will be shared with the Auctioneer (iamsold).
If considering buying with a mortgage, inspect and consider the property carefully with your lender before bidding.
A Buyer Information Pack is provided. The winning bidder will pay £349.00 including VAT for this pack which you must view before bidding.
The buyer signs a Reservation Agreement and makes payment of a non-refundable Reservation Fee of 4.50% of the purchase price including VAT, subject to a minimum of £6,600.00 including VAT. This is paid to reserve the property to the buyer during the Reservation Period and is paid in addition to the purchase price. This is considered within calculations for Stamp Duty Land Tax.
Services may be recommended by the Agent or Auctioneer in which they will receive payment from the service provider if the service is taken. Payment varies but will be no more than £450.00. These services are optional.

Important Information

  • This is a Leasehold property.

Property Ref: 00006312

Share:

Similar Properties

Beechwood Lodge, Clifton Park

2 Bedroom Apartment | Guide Price £50,000

Guide Price: £50,000 to £55,000. This TWO Bedroom fourth floor corner apartment has the benefits of a communal lift, off...

Doncaster Road, CLIFTON

1 Bedroom Apartment | Asking Price £50,000

This appealing, easy to run and maintain first floor studio apartment is situated within walking distance of Rotherham T...

Holmesfield, 3 Rosebery Street, HOLMES

2 Bedroom Terraced House | Guide Price £65,000

Guide Price £65,000 to £70,000 -This two bedroom mid-terrace is located within a popular residential location which prov...

Hartington Road, HOLMES

2 Bedroom Terraced House | Guide Price £65,000

Guide Price £65,000 to £70,000 -This REAR EXTENDED two bedroom mid-terrace is located within a popular residential locat...

Selborne Street, Eastwood

2 Bedroom Terraced House | Guide Price £65,000

Guide Price: £65,000 to £70,000. Freshly decorated throughout, this well presented TWO DOUBLE Bedroom mid terrace house...

Bartons (Rotherham)

Moorgate Street, Rotherham, South Yorkshire, S60 2EY

01709 515740

How much is your home worth?

Use our short form to request a valuation of your property.

Request a Valuation

Mortgage Calculator

Amount Borrowed: £
Total Amount Repayable: £
Total Monthly Payment: £
©2026 The Guild of Property Professionals. All rights reserved. Terms and Conditions | Privacy Policy | Cookie Policy | Complaints Policy | Members Login
The Guild of Property Professionals Trading Address: 121 Park Lane, London W1K 7AG. GPEA Limited. Registered in England & Wales.  Company No: 02819824.  Registered Office Address: 2 St. Stephen's Court, St. Stephen's Road, Bournemouth, Dorset, England, BH2 6LA.  VAT Registration No: 576 8795 61
Book a Property Valuation Update Cookies Preferences