Acacia Avenue, Ruislip, HA4

£875,000
SSTC
This property listing is now SSTC

4 Bedroom Semi-Detached House for sale in Ruislip

1 4 2
  • New build four bedroom semi detached home
  • Built & designed to a high specification throughout
  • Kitchen with integrated appliances, quartz worktops & induction hob
  • Ground floor underfloor heating & heat pumps
  • 10 year new home warranty
  • Heat pump

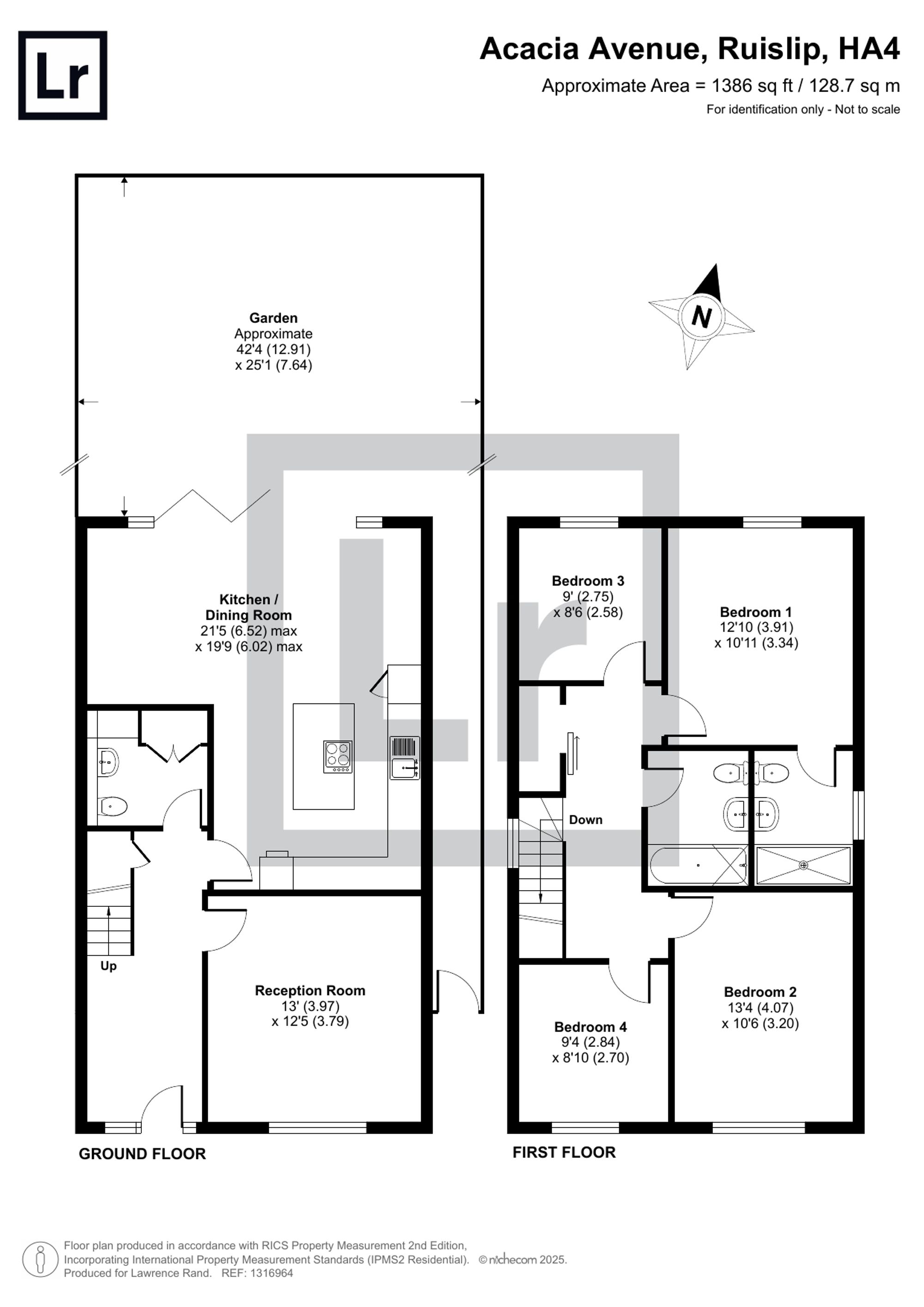
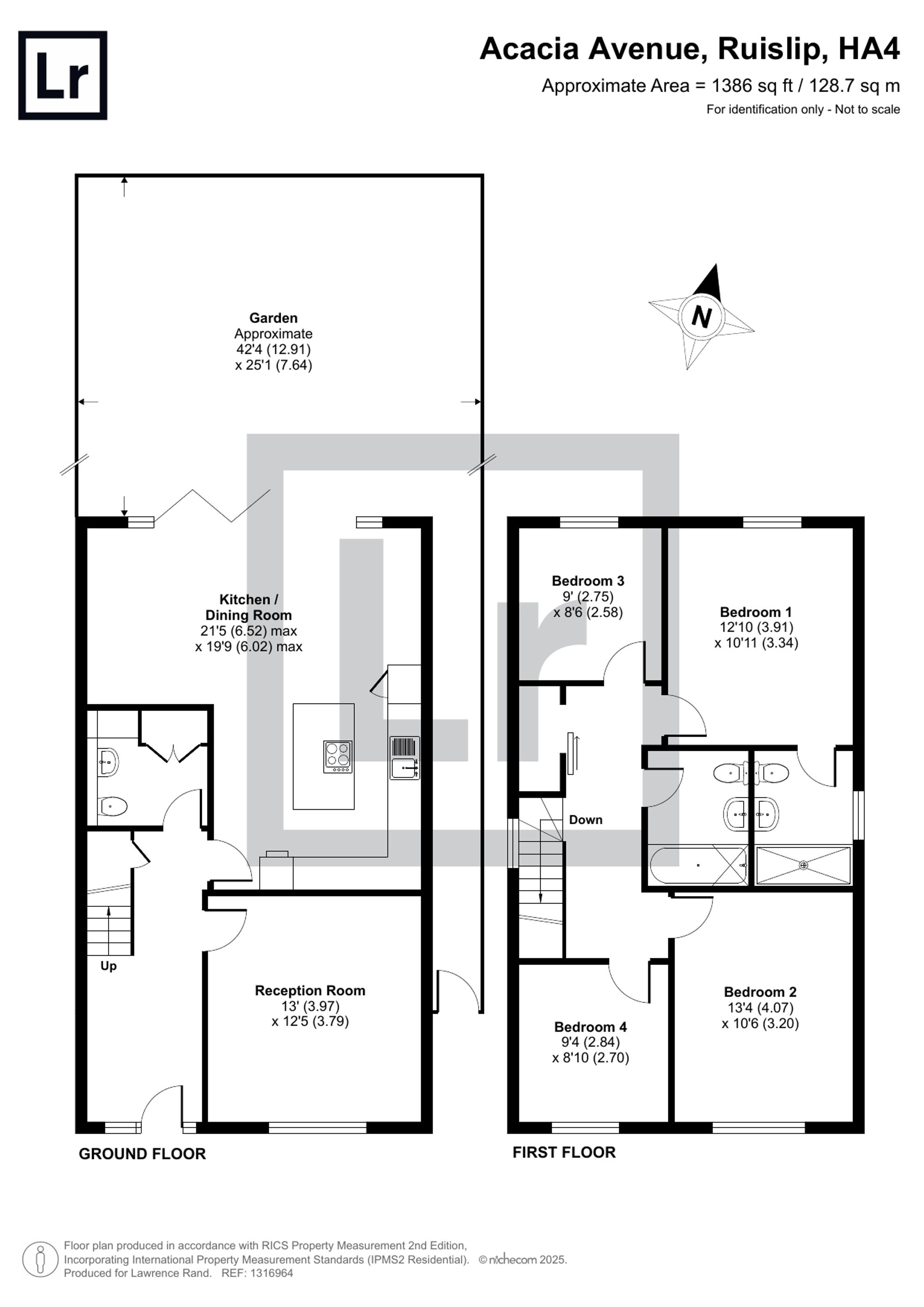
This exceptional, brand-new four-bedroom semi-detached house is ideally positioned on one of Ruislip’s most popular roads. Expertly designed to combine contemporary style with premium finishes, this elegant home offers the perfect environment for modern family living.

The ground floor features a generous open-plan kitchen, dining, and living area, beautifully appointed with high-specification integrated appliances, quartz worktops, an induction hob, and sleek bifold doors that lead out to a private rear garden mainly laid to lawn with a patio area ideal for outdoor entertaining. A bright front reception room provides a versatile second living space, while a guest cloakroom adds convenience. Underfloor heating throughout the ground floor ensures year-round comfort.

Upstairs, there are four well-proportioned bedrooms, including a principal bedroom with a stylish en-suite shower room. A modern family bathroom serves the remaining rooms, all designed with comfort in mind.

The property further benefits from off-street parking for two vehicles and is offered with the security of a 10-year New Homes Warranty.

Acacia Avenue is a quiet residential road close to the local amenities of Ruislip Manor and Eastcote with an array of shops, cafes, restaurant’s and good transport. (Metropolitan/Piccadilly line ) For the motorist the A40/Western Avenue is just a short drive providing swift access into Central London and the surrounding Home Counties. The property also falls within the catchment area of some of the areas highly regarded schools.

Photos have been AI generated with the furniture inside the property.

Verified Information:

Council tax band: TBC

Local authority: London Borough of Hillingdon

EPC rating: TBC

Tenure: Freehold

Comes with a 10-year New Homes Warranty

Suppliers:

Electricity supply: Mains, Water supply: Mains water, Sewerage: Mains

Heating: Gas central heating

Broadband & mobile coverage:

Broadband: FTTP (Fibre to the Premises)

Mobile coverage: O2 - Excellent, Vodafone - Excellent, Three - Excellent, EE - Excellent

Disclaimer:

While we have endeavoured to provide accurate information, we advise prospective buyers to verify all key details with relevant professionals to ensure complete transparency. This property presents immense potential for development, and we encourage interested parties to explore the possibilities that await with this remarkable opportunity.

Energy Efficiency Current: 64.0
Energy Efficiency Potential: 84.0

Important Information

  • This is a Freehold property.

Property Ref: 9926121b-39b3-45dd-ad64-a4a4f2735fcc

Share:

Similar Properties

West Hatch Manor Ruislip

3 Bedroom Detached Bungalow | Asking Price £850,000

An impressive detached bungalow set within this large plot with significant potential to enlarge and improve with a Sout...

Evelyn Avenue Ruislip

4 Bedroom Semi-Detached House | Asking Price £850,000

We are pleased to market this four-bedroom halls adjoining semi-detached property with the added benefit of having no up...

Myrtle Avenue Ruislip

3 Bedroom Detached Bungalow | Asking Price £850,000

Three double-bedroom detached bungalow tastefully designed to a high standard in one of the area’s most sought after roa...

Field End Ruislip

2 Bedroom Detached Bungalow | Asking Price £895,000

A potential building plot measuring 22m width X 21m deep located on a sought after and private road. The property is bei...

Rayners Lane Pinner

5 Bedroom Semi-Detached House | Asking Price £900,000

Presenting a distinctive and generously proportioned family home, this exceptional five-bedroom, three-bathroom semi-det...

Acacia Avenue, Ruislip, HA4

4 Bedroom Semi-Detached House | £900,000

Brand-new four-bedroom semi-detached house.

Lawrence Rand (Ruislip Manor)

Ruislip Manor, Middlesex, HA4 9BH

01895 632211

How much is your home worth?

Use our short form to request a valuation of your property.

Request a Valuation

Mortgage Calculator

Amount Borrowed: £
Total Amount Repayable: £
Total Monthly Payment: £
©2025 The Guild of Property Professionals. All rights reserved. Terms and Conditions | Privacy Policy | Cookie Policy | Complaints Policy | Members Login
The Guild of Property Professionals Trading Address: 121 Park Lane, London W1K 7AG. GPEA Limited. Registered in England & Wales.  Company No: 02819824.  Registered Office Address: 2 St. Stephen's Court, St. Stephen's Road, Bournemouth, Dorset, England, BH2 6LA.  VAT Registration No: 576 8795 61
Book a Property Valuation Update Cookies Preferences