Little Hill, Salcombe

Guide Price
£550,000

3 Bedroom Detached House for sale in Salcombe

1 3 1
  • Charming family home
  • Beautifully presented throughout
  • 3 Bedrooms
  • Light and airy accommodation
  • Sought after residential area
  • Sitting room with feature fireplace
  • Wonderful front and rear gardens
  • Garage, store, and ample driveway parking

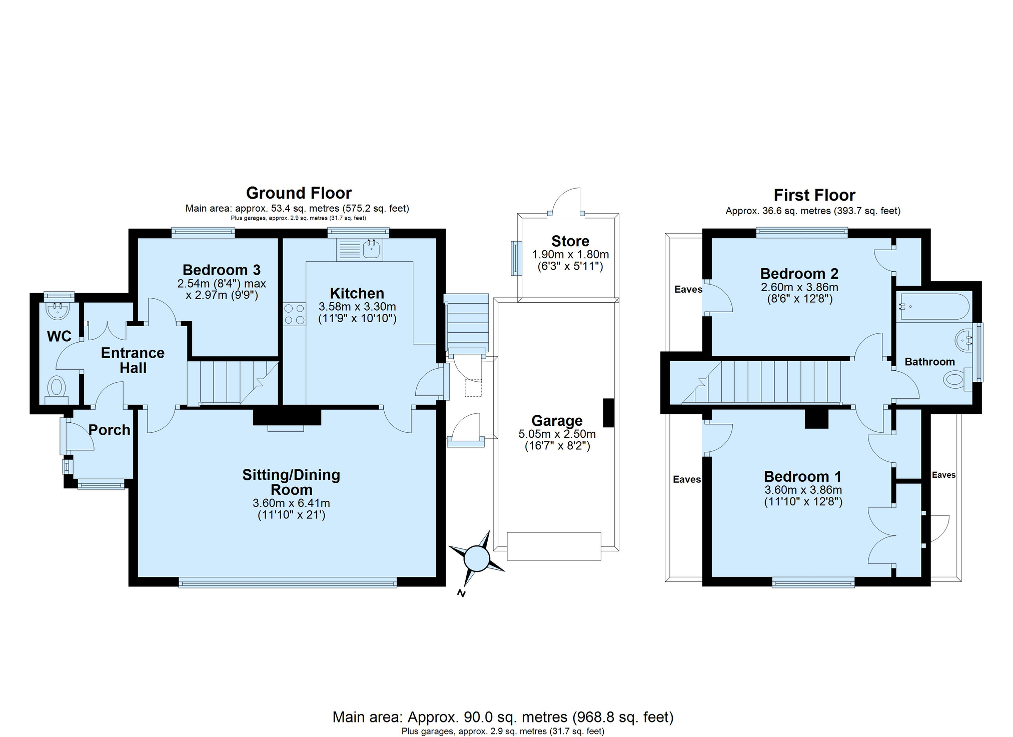
A beautifully presented detached home situated in the peaceful residential area of Beadon, just a short walk from the stunning North Sands Beach and within easy reach of Salcombe’s vibrant town centre and picturesque harbours.

8 Little Hill occupies a generous corner plot and offers spacious, well-balanced accommodation throughout. The recently renovated interior includes a stylish, well-equipped modern kitchen that opens into a bright and airy sitting/dining room, featuring a large picture window and a charming feature fireplace. The ground floor also benefits from a welcoming porch, a convenient cloakroom, and a versatile additional reception room - ideal as a formal dining room, home office, or third bedroom.

Upstairs, you’ll find two generously sized double bedrooms and a contemporary family bathroom, all finished to a high standard.

Externally, the property is approached via a tarmacadam driveway offering ample off-road parking and access to a single attached garage. Beautifully maintained gardens wrap around the home, providing a lovely setting for outdoor enjoyment.

Services
Mains electricity, water, and drainage. Electric heating. Underfloor heating in the kitchen and bathroom.

Fixtures and Fittings
All items in the written text of these particulars are included in the sale. All others are expressly excluded regardless of inclusion in any photographs. Purchasers must satisfy themselves that any equipment included in the sale of the property is in satisfactory order.

Viewings
Very strictly by appointment only through Marchand Petit (Salcombe Office) Tel: 01548 844473

Important Information

  • This is a Freehold property.
  • This Council Tax band for this property is: E

Property Ref: JMQ732329

Share:

Similar Properties

Alston Rise, Malborough, Kingsbridge, Devon

4 Bedroom Detached House | Guide Price £550,000

STAMP DUTY PAID!!! Finished to an exceptional standard, 15 Alston Rise is a stunning four-bedroom home set within the he...

Alston Rise, Malborough, Kingsbridge, Devon

4 Bedroom Detached House | Guide Price £550,000

STAMP DUTY PAID!!! Finished to an exceptional standard, 16 Alston Rise is a stunning four-bedroom home set within the he...

East Portlemouth,

4 Bedroom Cottage | Guide Price £550,000

Charming four-bedroom detached house in a picturesque village setting, just a short distance from the ferry to Salcombe...

Roborough Court, Bonaventure Road

3 Bedroom Apartment | Guide Price £575,000

A beautifully presented three-bedroom duplex apartment in an elevated and highly desirable position in Salcombe, enjoyin...

Ringrone, Sharpitor

3 Bedroom Flat | Guide Price £575,000

A spacious duplex 3 bedroom apartment in a superb early 20th-century property, overlooking Salcombe Estuary and close to...

Bolberry Road, Hope Cove

3 Bedroom Cottage | Guide Price £575,000

A charming 3 bedroom semi detached cottage located in a rural and tranquil setting on the edge of Hope Cove. Boasting a...

Marchand Petit (Salcombe)

24 Fore Street, Salcombe, Devon, TQ8 8ET

01548 844 473

How much is your home worth?

Use our short form to request a valuation of your property.

Request a Valuation

Mortgage Calculator

Amount Borrowed: £
Total Amount Repayable: £
Total Monthly Payment: £
©2026 The Guild of Property Professionals. All rights reserved. Terms and Conditions | Privacy Policy | Cookie Policy | Complaints Policy | Members Login
The Guild of Property Professionals Trading Address: 121 Park Lane, London W1K 7AG. GPEA Limited. Registered in England & Wales.  Company No: 02819824.  Registered Office Address: 2 St. Stephen's Court, St. Stephen's Road, Bournemouth, Dorset, England, BH2 6LA.  VAT Registration No: 576 8795 61
Book a Property Valuation Update Cookies Preferences