Ansty Coombe

Asking Price
£895,000

3 Bedroom House for sale in Salisbury

3 3 2
  • Character Cottage in Simply Stunning, Private Location
  • Breathtaking Countryside Views
  • Set in Grounds of just over Three Acres (Approximately)
  • Formal Gardens, Paddocks & Woodland
  • Kitchen Dining Room
  • Sitting Room with Wood Burning Stove
  • Three Bedrooms, One Bathroom, Plus Downstairs WC
  • Stunning Plankbridge Shepherds Hut Providing Additional Accommodation
  • Ample Off Road Parking
  • EPC: F

Situated on a plot of just over three acres (approximately), in what can only be described as a breath-taking location, Keepers Cottage sits within an elevated position, looking over its grounds, with simply stunning views of traditional Wiltshire countryside.

DESCRIPTION

Situated on a plot of just over three acres (approximately), in what can only be described as a breath-taking location, Keepers Cottage sits within an elevated position, looking over its grounds, with simply stunning views of traditional Wiltshire countryside.

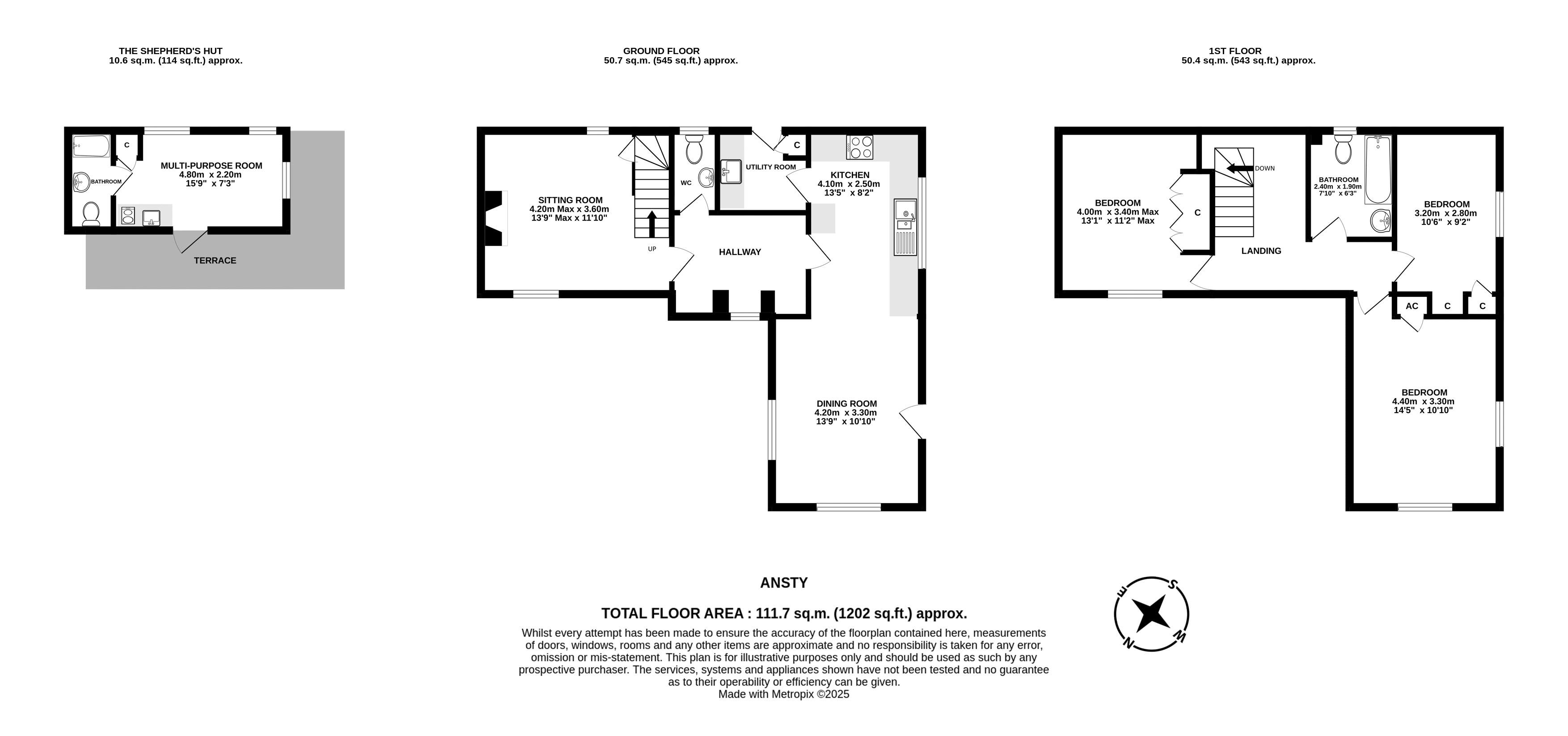
The accommodation includes a kitchen/dining room with AGA, separate utility room, sitting room with wood burning stove, downstairs WC, three bedrooms, two with built in storage and a family bathroom. In addition the current owner has put in a Plankbridge shepherds hut, providing further accommodation, which could serve a number of different uses.

The property, in our opinion has further scope for enhancement/extension (STPP).

THE GROUNDS

The property is located on a quiet Lane, in which a private sweeping driveway takes you through the grounds, up to the property itself which is in an elevated position, and has a tarmacadam driveway, providing parking for several vehicles.

The grounds, which expand over three acres (Approximately) consist of a mixture of formal gardens, a piece of woodland, as well as a grass paddock, all benefitting from spectacular countryside views, and an array of different colours throughout the four different seasons.

It really is the perfect balance of a stunning rural, countryside lifestyle, full of wildlife, whilst being less than 2.5 miles from the amenities of Tisbury and a mainline train station.

We would like to make potential purchasers aware, that a footpath does run through some of the grounds. Please give us a call for more details.

LOCATION

The village of Ansty /Ansty Coombe, in the Nadder Valley is mainly within a conservation area, set within the Cranborne and West Wiltshire area of outstanding natural beauty. It sits at the centre of beautiful rolling countryside with extensive walking. The village is steeped in history and has the beautiful 13th century St James Church and the Ansty Maypole one of the tallest in the country, that could well have been in existence since Saxon times; where May Day has been celebrated virtually unbroken every year down the centuries.

Ansty village which is listed in The Doomsday Book is located 2 miles south of the larger village of Tisbury; 7 miles north-east of Shaftesbury (Dorset) and 14 miles south west of the cathedral city of Salisbury (main line station to London Waterloo – 1 hr 28 mins).

Tisbury has an excellent range of facilities including independent butcher, tea rooms and cafes. There is also a convenience store and cash point, Post Office, public houses and inns, dentist & doctors’ surgery, leisure centre, recreation ground and several community groups. The area is well known for the excellent Chalke Valley History Festival, and exhibitions at Messums Wiltshire (Tisbury), Hauser & Wirth (Bruton) and Hatch House Ballet. There are a number of good local public houses nearby with the Royal Oak at Swallowcliffe within walking distance. Tisbury has been featuring in The Sunday Times Top 5 villages to live in outside of London since 2014.

There are many excellent state and independent schools within easy reach; the primary school of St John's Tisbury and Wardour Roman Catholic School numerous independent schools including Sandroyd, Clayesmore and Port Regis At senior level there are the highly thought of Salisbury Grammar Schools (Bishop Wordsworth’s and South West Wiltshire Grammar) and Shaftesbury and Gillingham – as well as the independent schools of Sherborne (Sherborne School and Sherborne School for Girls) and Bryanston.
Trains: Tisbury (London Waterloo 1hr 45mins), Tisbury (Exeter St Davids 1hr 36mins).

SERVICES

The property is connected to mains electricity and water. Drainage is in the form of septic tank. There is electric heating, along with a wood burning stove in the sitting room.

LOCAL AUTHORITY

Wiltshire Council Tax, Band F

TENURE

Freehold

VIEWINGS

Strictly by appointment, only with Boatwrights.

01747 859 359.
www.boatwrights.co.uk

Important Information

  • This is a Freehold property.

Property Ref: EAXML16942_7701915

Share:

Similar Properties

Ebbesbourne Wake

4 Bedroom House | Guide Price £895,000

A stunning, interesting and unique home located within Wiltshire's ever popular Chalke Valley that has been significantl...

Hartgrove, North Dorset

4 Bedroom Detached House | Guide Price £895,000

An absolutely wonderful, contemporary, beautifully appointed rural home offering a fantastic level of accommodation as w...

East Knoyle

5 Bedroom House | Guide Price £775,000

A substantial and immaculately presented family home located within the pretty village of East Knoyle which is situated...

Stour Row

5 Bedroom House | Guide Price £995,000

A simply stunning Farmhouse located within a highly regarded North Dorset village occupying an enviable plot with beauti...

Elm Hill, Motcombe

5 Bedroom House | Guide Price £995,000

A superb smallholding located within the heart of this highly regarded North Dorset Village.

Shaftesbury

5 Bedroom House | Guide Price £1,150,000

A quite simply stunning Grade II Listed Barn Conversion on the outskirts of Shaftesbury. Offering a significant level of...

Boatwrights Estate Agents (Shaftesbury)

Shaftesbury, Dorset, SP7 8JG

01747 213106

How much is your home worth?

Use our short form to request a valuation of your property.

Request a Valuation

Mortgage Calculator

Amount Borrowed: £
Total Amount Repayable: £
Total Monthly Payment: £
©2025 The Guild of Property Professionals. All rights reserved. Terms and Conditions | Privacy Policy | Cookie Policy | Complaints Policy | Members Login
The Guild of Property Professionals Trading Address: 121 Park Lane, London W1K 7AG. GPEA Limited. Registered in England & Wales.  Company No: 02819824.  Registered Office Address: 2 St. Stephen's Court, St. Stephen's Road, Bournemouth, Dorset, England, BH2 6LA.  VAT Registration No: 576 8795 61
Book a Property Valuation Update Cookies Preferences