Town Farm Place, Sixpenny Handley

Guide Price
£375,000

4 Bedroom House for sale in Salisbury

2 4 2
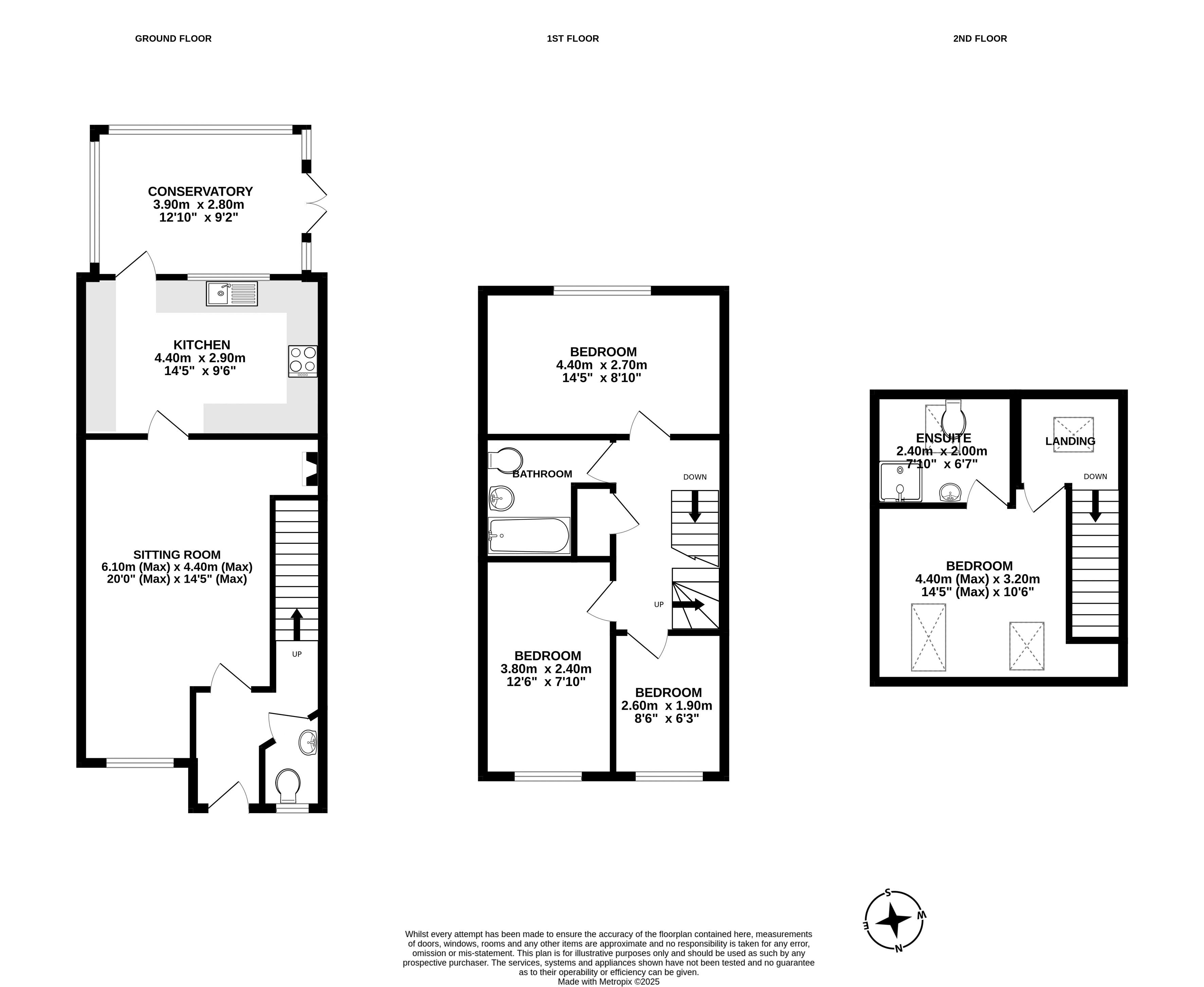
  • Extended Four Bedroom Home Over Three Floors
  • Newly Refurbished Kitchen
  • Enclosed Rear Garden
  • Driveway & Garage
  • Popular Village Location
  • EPC: D

An extended, four bedroom home complete with driveway parking and a garage, all situated within the popular village of Sixpenny Handley complete with its array of amenities.

The Property

The ground floor comprises a spacious sitting room complete with a newly installed wood burner before leading through to the kitchen of which has been newly installed to feature plentiful storage cupboards, work surface and appliance spaces. Furthermore, the conservatory makes for an ideal dining space or family room. Located on the first floor are three comfortable sized bedrooms as well as the modern, family bathroom whilst the principal bedroom is situated on the second floor and takes benefit from an ensuite shower room.

Outside

Rear: Positioned to the rear of the property and within a block is a single garage, complete with driveway parking.

The garden itself is a low maintenance area, fully enclosed with two gates giving access to either the front or rear of the property. Additionally, there are a combination of patio seating areas, flower beds and shingle.

Location

The thriving village of Sixpenny Handley is in the heart of The Cranborne Chase, an 'Area of Outstanding Natural Beauty'. It is conveniently situated between Shaftesbury, Fordingbridge, Blandford Forum and Salisbury. Sixpenny Handley has a full range of services including a church, medical centre, primary school, sports pavilion, pub, recreation ground and a garage. It also enjoys local shops including a general store/grocers, hairdressers and a popular family butcher. A354 (Blandford) 10m, Fordingbridge 11m, Shaftesbury 11m, Salisbury 14m, Ringwood 14.5m, Bournemouth 24m. Trains: Salisbury (London Waterloo 85 mins).

Council Tax

Dorset Council Tax Band C.

Tenure

Freehold.

Services

Oil central heating. Mains water, drainage and electric.

What3Words

///pulled.reinvest.outcasts

Viewings

Strictly by appointment only via Boatwrights Estate Agents.
01747 213106
sales@boatwrights.co.uk
www.boatwrights.co.uk

Important Information

  • This is a Freehold property.

Property Ref: EAXML16942_12749566

Share:

Similar Properties

Brinscombe Lane, Shaftesbury

3 Bedroom Bungalow | Asking Price £350,000

An exciting opportunity to purchase a three-bedroom, detached bungalow with panoramic across the Blackmore Vale.

Prideaux Drive, Motcombe

3 Bedroom House | Asking Price £335,000

A spacious three bedroom semi-detached house, situated within a quiet cul-de-sac close to countryside walks.

Salisbury Road, Shaftesbury

5 Bedroom House | Guide Price £335,000

A spacious and well-presented five bedroom semi-detached house, offering a low maintenance and spacious corner plot gar...

Melbury Beacon View, Shaftesbury

4 Bedroom House | Asking Price £385,000

An immaculately presented four bedroom detached house with a double garage, benefitting from the remainder of an NHBC g...

Parsons Pool, Shaftesbury

2 Bedroom Terraced House | Guide Price £395,000

A charming terraced cottage located within the heart of Shaftesbury offering a surprising level of accommodation arrange...

Littledown, Shaftesbury

4 Bedroom House | Offers in excess of £399,950

A spacious and well-appointed Redrow constructed home located in the popular Blackmore Down development on the outskirt...

Boatwrights Estate Agents (Shaftesbury)

Shaftesbury, Dorset, SP7 8JG

01747 213106

How much is your home worth?

Use our short form to request a valuation of your property.

Request a Valuation

Mortgage Calculator

Amount Borrowed: £
Total Amount Repayable: £
Total Monthly Payment: £
©2026 The Guild of Property Professionals. All rights reserved. Terms and Conditions | Privacy Policy | Cookie Policy | Complaints Policy | Members Login
The Guild of Property Professionals Trading Address: 121 Park Lane, London W1K 7AG. GPEA Limited. Registered in England & Wales.  Company No: 02819824.  Registered Office Address: 2 St. Stephen's Court, St. Stephen's Road, Bournemouth, Dorset, England, BH2 6LA.  VAT Registration No: 576 8795 61
Book a Property Valuation Update Cookies Preferences