North Lane, Nomansland, Salisbury, SP5

Guide Price
£900,000

5 Bedroom Detached House for sale in Salisbury

5

Directions
Proceed to Ower and take the A36 towards Salisbury. Proceed through the villages of West Wellow and Plaitford. Turn left just after the BP filling station into New Road. Continue along New Road until the crossroads is reached, proceed straight across over the cattlegrid and into Nomansland taking the first turning on the right into North Lane. Redwood will be found on the right hand side.
What3words///zoomed.cooked.powerful

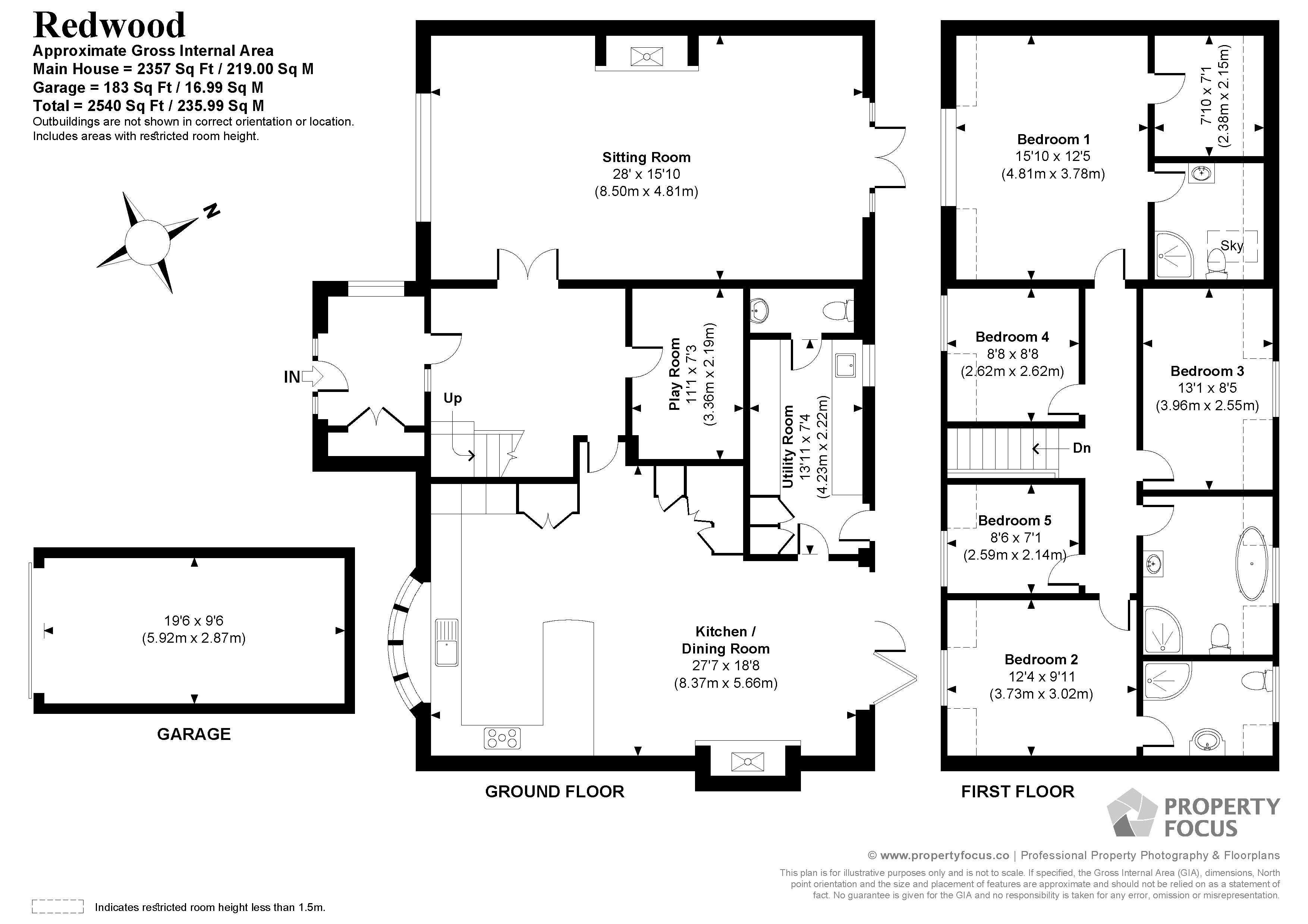
Substantial Family Home
Approx. 2350sqft
Five Bedrooms & Three Bathrooms
Kitchen/Breakfast Room & Separate Utility
Two Reception Rooms
Rear Terrace
Front & Rear Gardens
Parking for several vehicles
Garage
Remarkable location, just a stone's throw from the open New Forest

Important Information

  • This is a Freehold property.

Property Ref: 5303_ROM210123

Share:

Similar Properties

Mountbatten Park, North Baddesley, Southampton, Hampshire, SO52

5 Bedroom Detached House | Guide Price £900,000

** 5% CASH BACK INCENTIVE **An outstanding family home of almost 2000sqft, occupying the most coveted position on the sc...

North Lane, Nomansland, Salisbury, Wiltshire, SP5

4 Bedroom Detached House | Guide Price £900,000

An absolutely outstanding home located just a short walk from the open New Forest and about 140,000 acres of heathland a...

Southampton Road, Whiteparish, Salisbury, Wiltshire, SP5

4 Bedroom Detached House | Guide Price £900,000

A wonderful detached home set in manicured grounds of about 3.5 acre and within the coveted New Forest National Park.Fre...

Nether Wallop, Stockbridge, Hampshire, SO20

3 Bedroom Detached House | Guide Price £995,000

A simply charming Grade II Listed 16th century cottage with an abundance of character in this sought after village.Freeh...

New Road, Landford, Salisbury, Wiltshire, SP5

4 Bedroom Detached House | Guide Price £999,950

A beautiful Victorian home of almost 2100sqft, set in manicured grounds of about 1 acre and within the coveted New Fores...

Enmill Lane, Pitt, Winchester, Hampshire, SO22

6 Bedroom Detached House | Guide Price £1,000,000

With 360 degree views over fine Hampshire countryside, a fantastic family home in almost 0.5 acre.Freehold

Woolley & Wallis (Romsey) (Romsey)

Romsey, Hampshire, SO51 8ZN

01794 512129

How much is your home worth?

Use our short form to request a valuation of your property.

Request a Valuation

Mortgage Calculator

Amount Borrowed: £
Total Amount Repayable: £
Total Monthly Payment: £
©2025 The Guild of Property Professionals. All rights reserved. Terms and Conditions | Privacy Policy | Cookie Policy | Complaints Policy | Members Login
The Guild of Property Professionals Trading Address: 121 Park Lane, London W1K 7AG. GPEA Limited. Registered in England & Wales.  Company No: 02819824.  Registered Office Address: 2 St. Stephen's Court, St. Stephen's Road, Bournemouth, Dorset, England, BH2 6LA.  VAT Registration No: 576 8795 61
Book a Property Valuation Update Cookies Preferences