Bethany, Saltash - Cornwall

£995,000
Sold
This property listing is now Sold

4 Bedroom Country House for sale in Saltash

4 2
  • Character Country House
  • 4 Bedrooms
  • 4 Reception Rooms
  • Barns with potential
  • Large Modern Garage with potential
  • 22 Acres grassland
  • Wildlife Lake
  • Easy Access to the A38

Character 4 bedroom, 4 reception room country house, a hidden gem amongst picturesque countryside. Traditional barns and large modern garage with potential. 22 acres of paddocks, wildlife lake. Easy access to A38.

Berry Farm - Berry Farm is a hidden gem nestled within the picturesque Cornish countryside. The homestead is well positioned in the centre of its land with far reaching views over the Cornish countryside. A particular feature is the south facing, triple aspect garden room at the front of the house with an appealing vista across the land, and lake to see the occasional passing train.

Berry Farm extends to approximately 22 acres of productive pastureland with a feature amenity lake. The buildings offer much potential with the traditional barns for conversion to holiday letting or secondary accommodation. The garage was built with future dwelling in mind, of concrete block cavity wall insulated elevations and there is a staircase leading to the first floor which would readily provide accommodation subject to the necessary consents. The property is connected to mains water supply but also benefits from two wells and a spring for livestock and garden watering.

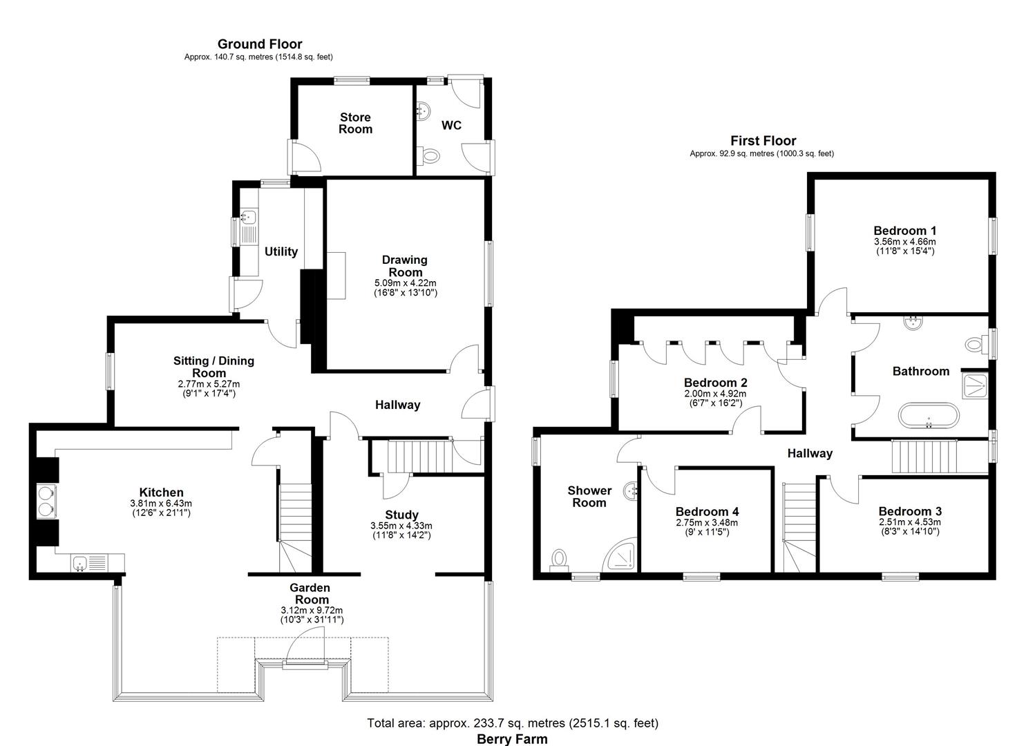
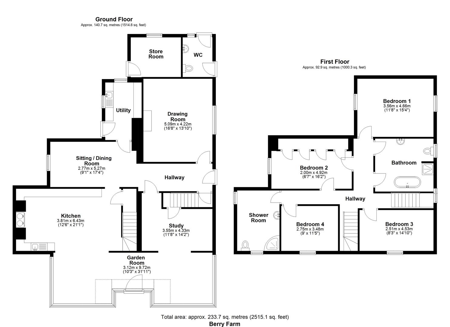
Berry Farm was originally part of the Port Eliot estate and parts of the house and believed to date back to medieval times with slate flagstone floors on the ground floor and solid wood exposed timber flooring on the first floor. The accommodation benefits from oil fired central heating and mainly double glazed windows and briefly comprises: - Full width triple aspect garden / dining room; kitchen, fitted wall and base units, Heritage range cooker, slate flagstone floor. Sitting / dining room, slate flagstone floor; utility room, fitted base units, door to the rear. Study, opening to the garden room; entrance hall, tiled floor, door to the side. Drawing room, open fireplace, slate flagstone floor, window to the side overlooking the garden. On the first floor, master bedroom; bathroom, 2 further double bedrooms, shower room and a single bedroom.

The Gardens - The gardens are arranged to the front and side of the house, and are mainly lawned terraces. A gravelled terrace along the front of the house which is ideal for alfresco dining and entertaining whilst enjoying the views and the passing trains. The lawned gardens are interspersed with a variety of specimen trees, shrubs and an ornamental fish pond.

Traditional Barn: - 21.90m x 5.70m (71'10" x 18'8" ) -

Lean-To To The Rear: - 4m x 6m (13'1" x 19'8" ) - A two storey traditional barn potential for conversion

Storage Building: - 8.80m x 5.40m (28'10" x 17'8" ) - Single storey with potential for conversion

Livestock / General Purpose Building: - 8.00m x 5.10m (26'2" x 16'8" ) -

General Purpose Store: - 11.30m x 5.35m (37'0" x 17'6" ) - Single storey with potential for stabling with small turnout yard to the side

Garage / Store: - 13m x 10m (42'7" x 32'9" ) - Cavity wall, concrete block construction under pitch box profile roof. Space to easily house 7 SUV size vehicles incorporating in the Lobby Area: 4.41m x 3.38m (14'5" x 11'1") staircase to the first floor with a useable space of 13m x 4.50m (42'7" x 14'9") with full width double glazed windows and French doors with Juliette balcony to the front and rear. Potential to be easily converted to living accommodation subject to the necessary consents.

Livestock / General Purpose Store: - 7.50m x 5.35m (24'7" x 17'6" ) -

The Land - The land extends to approximately 22 acres of level or gently sloping paddocks which surrounds the house and buildings. In the field below the house is a large feature lake which provides a haven for visiting wildlife including Heron, Duck, Deer and amphibians. The paddocks are enclosed within traditional Cornish bank hedging and interspersed with a variety of native deciduous trees.

Services & Information - Water - Mains
Drainage - Private septic tank
Electricity - Mains
Heating - Oil fired central heating
Telephone & Broadband - Fibre To The Property - Openreach connection. checker.ofcom.org.uk/
Mobile Availability - checker.ofcom.org.uk
Council Tax Band - D
EPC - E45
Construction - Mixed construction

Local Authority - Cornwall Council, County Hall, Treyew Road, Truro, Cornwall, TR1 3AY
0300 1234 100

Tenure - The property is offered for sale freehold with vacant possession on completion.

Viewing Arrangements - Strictly by appointment with D. R. Kivell Country Property 01822 810810. All viewings are to be accompanied without exception.

Agent's Notes - None of the services or appliances, plumbing, heating or electrical installations have been tested by the selling agent. Any maps used on the details are to assist identification of the property only and are not an indication of the actual surroundings, which may have changed since the map was printed. None of the statements contained in these particulars as to this property are to be relied on as statements or representations of fact. There are numerous power points throughout the property although not individually listed. All figures, measurements, floor plans and maps are for guidance purposes only. They are prepared and issued in good faith and are intended to give a fair description of the property but do not constitute any part of any offer or contract. The property is sold subject to and with the benefit of all outgoings, rights of way, easements and wayleaves there may be, whether mentioned in these general remarks and stipulations or particulars of sale or not.

Property Ref: 9200_34360894

Share:

Similar Properties

Callington, Cornwall

8 Bedroom Country House | £995,000

Impressive and very spacious 6 bedroom country house presented to a high standard. Detached 2 bedroom annexe with a cont...

Callington, Cornwall

8 Bedroom Country House | £995,000

*SOLD* Impressive and very spacious 6 bedroom country house presented to a high standard. Detached 2 bedroom annexe with...

Bethany, Saltash - Cornwall

4 Bedroom Country House | £995,000

*SOLD* Character 4 bedroom, 4 reception room country house, a hidden gem amongst picturesque countryside. Traditional ba...

Lewdown, Okehampton - Devon

4 Bedroom Country House | £1,000,000

Impressive 16th century 4 bedroom period manor house full of character and charm, complemented by a holiday cottage and...

Peter Tavy , Tavistock - Devon

5 Bedroom Detached House | £1,000,000

In a magnificent location within the Dartmoor National Park with unspoilt far reaching views. 5 bedroom, 4 reception roo...

Hatt, Saltash - Cornwall

5 Bedroom Country House | £1,000,000

The Owner said - "Extraordinary Country Property Agent, I am an extremely happy, satisfied client of D.R. Kivell Country...

D. R. Kivell Country Property (Tavistock)

Tavistock, Devon, PL19 0NW

01822 810810

How much is your home worth?

Use our short form to request a valuation of your property.

Request a Valuation

Mortgage Calculator

Amount Borrowed: £
Total Amount Repayable: £
Total Monthly Payment: £
©2026 The Guild of Property Professionals. All rights reserved. Terms and Conditions | Privacy Policy | Cookie Policy | Complaints Policy | Members Login
The Guild of Property Professionals Trading Address: 121 Park Lane, London W1K 7AG. GPEA Limited. Registered in England & Wales.  Company No: 02819824.  Registered Office Address: 2 St. Stephen's Court, St. Stephen's Road, Bournemouth, Dorset, England, BH2 6LA.  VAT Registration No: 576 8795 61
Book a Property Valuation Update Cookies Preferences