Hook Hill, Sanderstead, Surrey, CR2 0LB

£1,300,000

6 Bedroom Detached House for sale in Sanderstead

6
  • Sought After Road
  • Large Plot Approaching Half Acre
  • Excellent Accommodation Throughout
  • Kitchen / Breakfast Room / Utility / Wc
  • Two Further Reception Rooms
  • Six Bedrooms
  • Detached Garage
  • Long Driveway With Generous Parking
  • Viewing Recommended

Council tax band: G

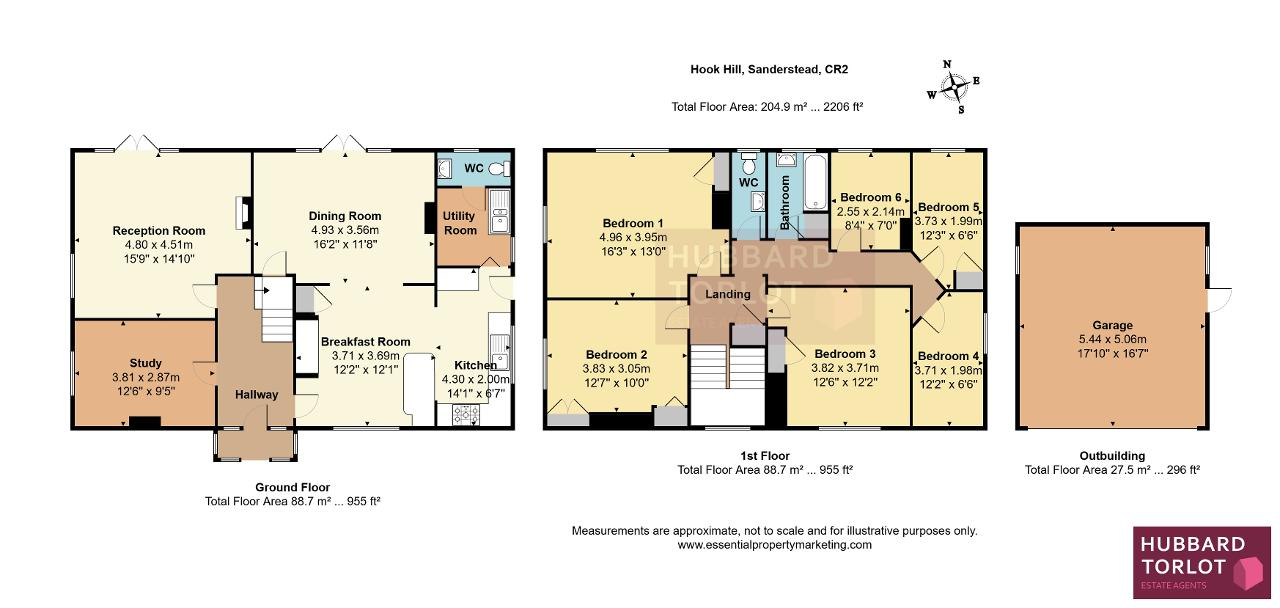
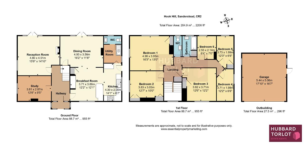
Hubbard Torlot are delighted to bring to the market this most appealing 6 bedroom detached family residence which is understood to have been the first property property built in this particularly sought after road and is set within substantial, secluded and mature gardens approaching half an acre.
This splendid family home of generous proportions boasts a truly appealing interior throughout and comprises a lovely welcoming entrance hall, spacious kitchen / breakfast room with access to cloakroom, utility room and opens out into a delightful dining room which enjoys an abundance of natural light from the French doors that lead out onto a decked area overlooking the garden. The accommodation continues to impress with a super dual aspect lounge with fireplace and doors leading out to the rear decked area and completing the ground floor is a useful study / home office.
On the first floor are 6 bedrooms along with a family bathroom, separate wc and stairs up to a generous size loft.
Complimenting this lovely family home as mentioned prior is the large lawned garden which enjoys a high degree of privacy from mature tress and bushes to the boundaries along with a wide decked area running across the width of the house. The property is approached from a long driveway to the side offering access to a detached double garage, generous parking area and entrance to the home.

NB: The family are selling this property along with next door offering potential to buy both which then would offer an incredibly large plot of land !

Council Tax Band G

Adding to the appeal of this lovely family home are the superb local and surrounding amenities on offer including Sanderstead and Purley Oaks train stations providing an excellent service up to London on separate lines, frequent 403 bus service offering access into Croydon and Sanderstead Village where you will find Gresham Primary School, Waitrose, Costa, Filtr coffee shop and the lovely recreation ground. The area is well served by a further choice of excellent state and private schools for all ages including Atwood, Riddlesdown Collegiate, Whitgift, Trinity and Royal Russell. The M25 junction 6 can be located at Godstone and links Gatwick / Heathrow airports, south coast and Bluewater shopping centre.

Important Information

  • This is a Freehold property.

Property Ref: 2-58508_703735

Share:

Similar Properties

Church Road, Woldingham, Surrey, CR3 7LQ

4 Bedroom Detached House | £1,200,000

Hubbard Torlot are pleased to bring to the market this true one off home, being the original 'porters house' for Wolding...

Hook Hill, Sanderstead, Surrey, CR2 0LB

4 Bedroom Detached House | £1,200,000

Enjoying an enviable residential location and set within lovely mature secluded gardens of around half an acre is this m...

Beech Avenue, Sanderstead, South Croydon, CR2 0NL

5 Bedroom Detached House | Guide Price £1,200,000

Nestled on a peaceful private road, just off Beech Avenue, this fabulous detached home offers a perfect blend of modern...

East Hill, Sanderstead, Surrey, CR2 0AL

5 Bedroom Detached House | £1,400,000

Exclusive to Hubbard Torlot is this attractive, detached, well-designed home, located in a prestigious enclave in the he...

Arkwright Road, Sanderstead, CR2 0LL

6 Bedroom Detached House | £1,450,000

We are excited to present this exceptionally spacious and beautifully presented six-bedroom detached home, offering mode...

High Beech, South Croydon, Surrey, CR2 7QB

5 Bedroom Detached House | £1,500,000

This outstanding and extensively extended chain free FIVE/SEVEN bedroom detached family residence is located in High Bee...

Hubbard Torlot (Sanderstead)

335 Limpsfield Road, Sanderstead, Surrey, CR2 9BY

0208 6516 679

How much is your home worth?

Use our short form to request a valuation of your property.

Request a Valuation

Mortgage Calculator

Amount Borrowed: £
Total Amount Repayable: £
Total Monthly Payment: £
©2025 The Guild of Property Professionals. All rights reserved. Terms and Conditions | Privacy Policy | Cookie Policy | Complaints Policy | Members Login
The Guild of Property Professionals Trading Address: 121 Park Lane, London W1K 7AG. GPEA Limited. Registered in England & Wales.  Company No: 02819824.  Registered Office Address: 2 St. Stephen's Court, St. Stephen's Road, Bournemouth, Dorset, England, BH2 6LA.  VAT Registration No: 576 8795 61
Book a Property Valuation Update Cookies Preferences