Purley Oaks Road, Sanderstead, CR2 0NW

£535,000
SSTC
This property listing is now SSTC

4 Bedroom Semi-Detached House for sale in Sanderstead

4 1
  • No Onward Chain
  • 4 Bedroom Period Property
  • Two Reception Rooms
  • Breakfast Room
  • Off Street Parking to rear
  • Corner Plot
  • Walking Distance to Two Train Stations
  • Close to Schools & Amenities
  • Scope to extend STPP
  • EPC Rating: E

Council tax band: E

NO ONWARD CHAIN

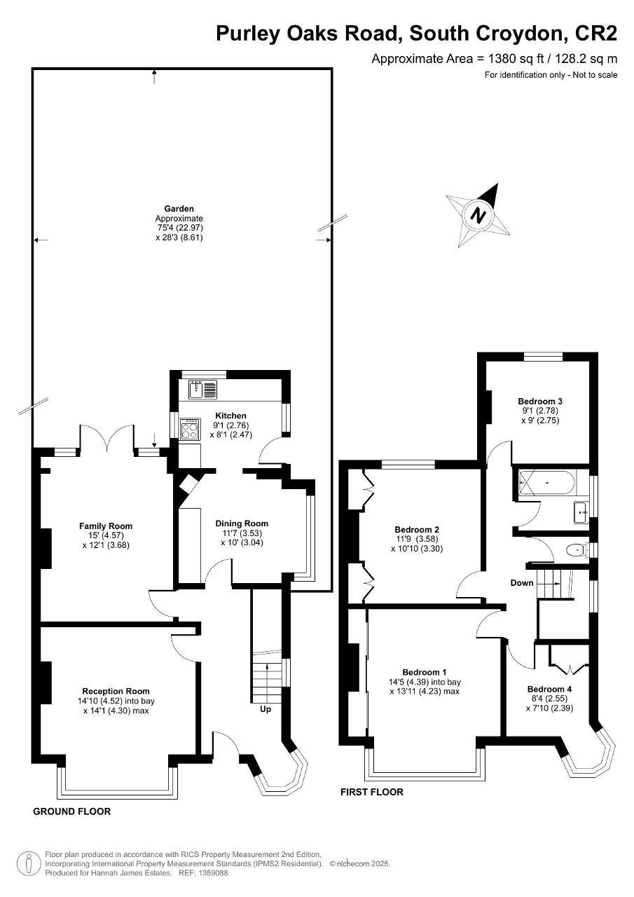
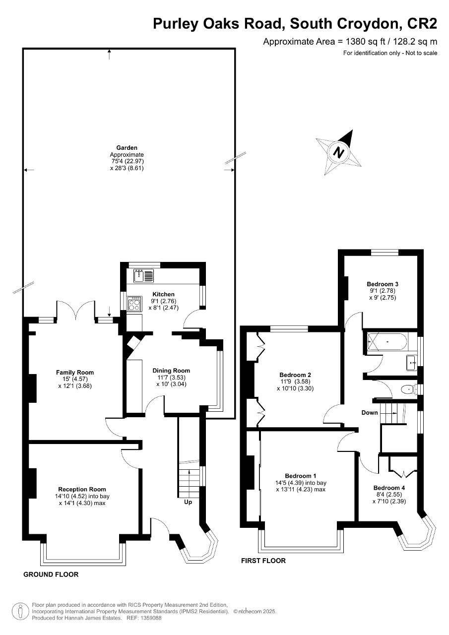
Hannah James Estates are delighted to present to the market this spacious, period, four-bedroom, semi-detached family home situated on Purley Oaks Road, a quiet tree lined residential road which is very conveniently located for both Purley Oaks and Sanderstead Train Stations. The homes retains many sought after original features and also offers the convenience of double-glazed windows and gas fired central heating.

This wonderful family home benefits from a large, light-filled, dual aspect entrance hallway, which includes a pretty oriel window. There is a large reception room to the front of the property and a second reception room to the rear, currently being used as a dining room, with an attractive decorative arch and with patio doors leading to the garden. These 3 areas all benefit from desirable high ceilings. Furthermore there is a breakfast room with a large window to the side and a separate kitchen looking towards the rear and side of the garden and with scope to extend (STPP).

The first floor offers 3 good sized double bedrooms, two with fitted wardrobes and a 4th single bedroom with another oriel window. There is a family bathroom with window to the side and a separate WC.

There is a large garden to the rear which is mainly laid to lawn and with 2 sheds and also a small garden to the front. At the back of the rear garden there is a gated hard standing which offers off street parking.

This property is located within a 2 minute walk of Purley Oaks and a 5 minute walk of Sanderstead train stations, with frequent direct services to London Bridge and London Victoria respectively in 25 minutes or less. East Croydon is one stop away with onward transfers to London Gatwick and the South Coast.

There are many local amenities nearby such as a Tesco Express, Indian restaurants, coffee shops, a pharmacy and a convenience store. The property is surrounded by greenery with Purley Downs Golf Club, Purley Beeches and Wettern Tree Garden all being close by.

Offered to the market with no onward chain, please call now to secure your viewing.

Sanderstead is renowned for its open spaces and community spirit. There are lots of clubs and groups within walking distance, such as Purley Downs Golf Club, the Scouts and the Girl Guides. Sanderstead village provides a range of shops that include a Costa Coffee, barbers, Post Office, dry cleaners, opticians, pharmacy, a 'Cook' foodstore and a range of restaurants and a Waitrose Supermarket.

There is also a good range of both state and independent schools nearby including Riddlesdown Secondary school, Purley Oaks Primary, Cumnor House School, Harris Academy and Ridgeway Nursery and Primary.

Purley Beeches, which is perfect for dog walkers, is just a short walk away. It has tennis courts, a woodland area and seating areas at Wettern Tree Gardens which it leads onto. For golfers there are several clubs to choose from, the nearest being the very scenic Purley Downs Golf Club which is within 5 minutes walking distance.

There is a bus service on Purley Downs Road which takes you into Purley, where there are many more shops and another train station with further links to Gatwick.

Important Information

  • This is a Freehold property.

Property Ref: 58823_630401

Share:

Similar Properties

Avondale Road, South Croydon, CR2 6JE

3 Bedroom Terraced House | £525,000

Hannah James Estates are proud to present this beautiful 3-bedroom home, offering bundles of character and period featur...

Limpsfield Road, South Croydon, Surrey, CR2 9DE

2 Bedroom End of Terrace House | £500,000

This beautiful cottage, built in the Victoria era, and thoughtfully extended by the current owners, will charm those int...

Mallard Road, Selsdon Vale, Surrey, CR2 8PX

3 Bedroom Semi-Detached House | £475,000

NO ONWARD CHAINHannah James Estates are delighted to present to the market this beautifully presented, three-bedroom, se...

Leighton Gardens, Sanderstead, CR2 9DY

4 Bedroom Semi-Detached House | £540,000

Hannah James Estates are proud to present this spacious four bedroom semi-detached property desirably located on Leighto...

Glossop Road, Sanderstead, Surrey, CR2 0PW

3 Bedroom Detached House | £550,000

NO ONWARD CHAINHannah James Estates are proud to present thus 3 bedroom detached home in a very popular residential quie...

Tindale Close, Sanderstead, CR2 0RT

3 Bedroom Semi-Detached House | Offers in region of £590,000

A 'Must See' unique property offering flexible living accommodation over two floors.The property was built as a 4 bed an...

Hannah James Estates (Sanderstead)

Limpsfield Road, Sanderstead, Surrey, CR2 9LA

0208 6575599

How much is your home worth?

Use our short form to request a valuation of your property.

Request a Valuation

Mortgage Calculator

Amount Borrowed: £
Total Amount Repayable: £
Total Monthly Payment: £
©2026 The Guild of Property Professionals. All rights reserved. Terms and Conditions | Privacy Policy | Cookie Policy | Complaints Policy | Members Login
The Guild of Property Professionals Trading Address: 121 Park Lane, London W1K 7AG. GPEA Limited. Registered in England & Wales.  Company No: 02819824.  Registered Office Address: 2 St. Stephen's Court, St. Stephen's Road, Bournemouth, Dorset, England, BH2 6LA.  VAT Registration No: 576 8795 61
Book a Property Valuation Update Cookies Preferences