Allison Close, Messingham, DN17

£195,000

2 Bedroom Not Specified for sale in Scunthorpe

1 2 1
  • 2 DOUBLE BEDROOMS
  • NOT TO BE MISSED
  • HIGHLY SOUGTH AFTER LOCATION
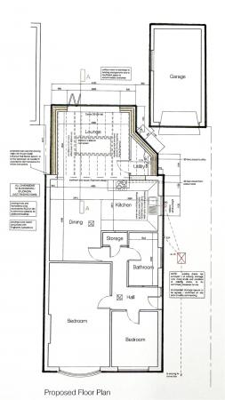
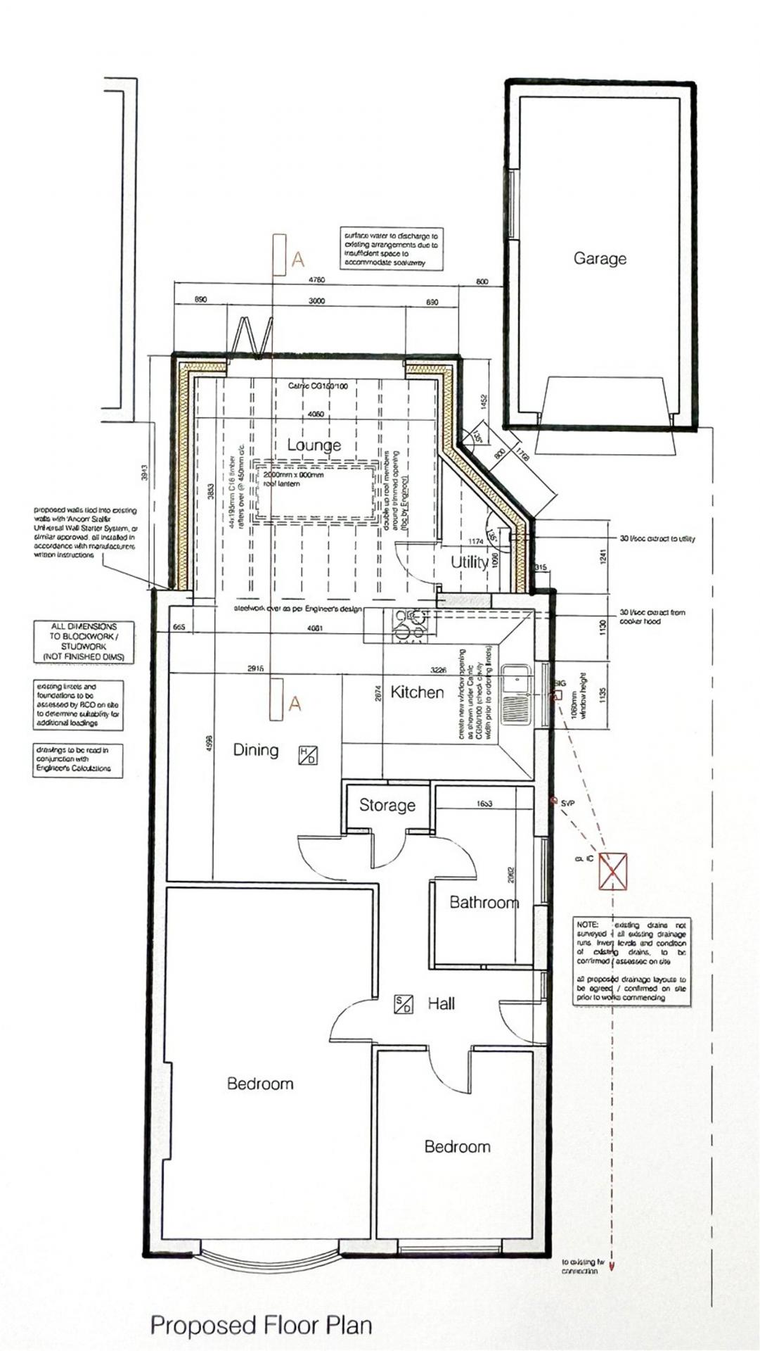
  • PA/2024/283
  • A DESIRABLE MODERN DETACHED BUNGALOW
  • DEEP DRIVEWAY & DETACHED BRICK GARAGE
  • NO UPWARD CHAIN
  • PRIVATE ENCLOSED REAR GARDEN
  • PLANNING PERMISSION FOR A REAR EXTENSION

A sought after modern detached bungalow located within a well regarded area offering well proportioned accommodation that benefits from planning permission for a rear extension. The current layout comprises, side entrance hallway, fitted kitchen, large main living room, 2 double bedrooms and a bathroom. A deep driveway allows parking for an excellent number of vehicles with direct access to a detached brick built garage. Gated access between the property and garage leads to a private enclosed rear garden that enjoys a south/westerly aspect. Finished with full double glazing, with the front and side units having been recently replaced and a modern gas fired central heating system. Viewing comes with the agents highest of recommendations. View via our Scunthorpe office.

Important Information

  • This is a Freehold property.
  • This Council Tax band for this property is: C
  • EPC Rating is D

Property Ref: a1446a6b-0972-4ca0-89d6-1ce94058bfa6

Share:

Similar Properties

St. Augustine Crescent, Scunthorpe, DN16

2 Bedroom Detached Bungalow | £195,000

**NO CHAIN****SPACIOUS DETACHED BUNGALOW****HIGHLY REGARDED RESIDENTIAL LOCATION****QUIET CUL-DE-SAC POSITION****CLOSE T...

Westerdale Road, Scunthorpe, DN16

3 Bedroom Not Specified | £195,000

**BEAUTIFULLY PRESENTED SEMI-DETACHED FAMILY HOME**STUNNING OPEN PLAN KITCHEN DINER**STYLISH SHOWER ROOM**CORNER PLOT

Ashfield Park, Scunthorpe, DN17

2 Bedroom Mobile Home | £194,950

**STUNNING BRAND NEW RESIDENTIAL PARK HOME****MODERN FITTED KITCHEN WITH INTEGRAL APPLIANCES**

Ashfield Park, Scunthorpe, DN17

2 Bedroom Mobile Home | £197,500

**STUNNING BRAND NEW RESIDENTIAL PARK HOME****MODERN FITTED KITCHEN WITH INTEGRAL APPLIANCES**

Cliff Closes Road, Scunthorpe, DN15

3 Bedroom Not Specified | £199,950

**BEAUTIFULLY PRESENTED SEMI-DETACHED FAMILY HOME**EXTENDED TO SIDE & REAR**STUNNING OPEN PLAN KITCHEN DINER & ORANGERY

Endcliffe Avenue, Scunthorpe, DN17

3 Bedroom Semi-Detached House | £199,950

** SUBSTANTIAL DETACHED GARAGE **

Paul Fox (Scunthorpe)

Scunthorpe, North Lincolnshire, DN15 7PN

01724 282868

How much is your home worth?

Use our short form to request a valuation of your property.

Request a Valuation

Mortgage Calculator

Amount Borrowed: £
Total Amount Repayable: £
Total Monthly Payment: £
©2026 The Guild of Property Professionals. All rights reserved. Terms and Conditions | Privacy Policy | Cookie Policy | Complaints Policy | Members Login
The Guild of Property Professionals Trading Address: 121 Park Lane, London W1K 7AG. GPEA Limited. Registered in England & Wales.  Company No: 02819824.  Registered Office Address: 2 St. Stephen's Court, St. Stephen's Road, Bournemouth, Dorset, England, BH2 6LA.  VAT Registration No: 576 8795 61
Book a Property Valuation Update Cookies Preferences