East Ferry Road, Susworth, DN17

£350,000
SSTC
This property listing is now SSTC

4 Bedroom Detached House for sale in Scunthorpe

3 4 4
  • A UNIQUE OPPORTUNITY TO PURCHASE A FORMER PUBLIC HOUSE
  • CURRENTLY OFFERS LARGE FIRST FLOOR ACCOMMODATION WITH 4 BEDROOMS
  • NO UPWARD CHAIN
  • SUBSTANTIAL PRIVATE PLOT
  • MANY CHARMING FEATURES THROUGHOUT
  • VIEWING IS ESSENTIAL TO FULLY APPRECIATE
  • FULL PLANNING PERMISSION TO CONVERT TO TWO LARGE SEMI-DETACHED HOUSES

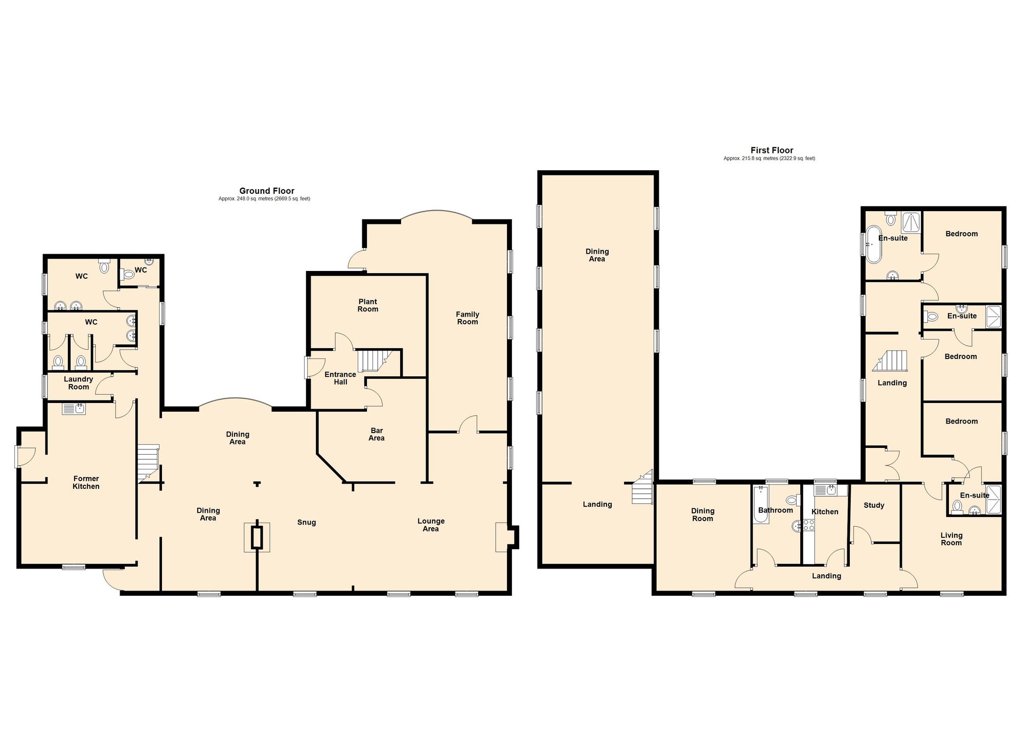
FULL PLANNING PERMISSION ACCOMMODATION APPROACHES 5000 SQ FT ** An extremely rare opportunity to purchase a large detached former public house known as 'The Jenny Wren' retaining many charming features. The property comes with full planning permision, with conditions, to converted into two large semi detached dwellings (ref - WL/2025/00578). The property is available for immediate occupation enjoying large first floor accommodation providing 2 reception rooms, fitted kitchen, a family bathroom and 3 bedrooms all with en-suites. Enjoying enclosed private hardstanding gardens with extensive parking. Viewing is essential to fully appreciate. For further information or to arrange a viewing please contact our Scunthorpe office.

Important Information

  • This is a Freehold property.
  • This Council Tax band for this property is: A

Property Ref: a1446a6e-14c8-403a-8978-07252dbb37e6

Share:

Similar Properties

Hales Close, Bottesford DN16 3RZ

3 Bedroom Detached House | £350,000

**HIGHLY REGARDED RESIDENTIAL LOCATION****BEAUTIFULLY PRESENTED & EXTENDED DETACHED FAMILY HOME****SOUTH FACING REAR GAR...

High Leys Road, Scunthorpe, DN17

4 Bedroom Detached Bungalow | £350,000

Stunning 3-bed detached bungalow in Bottesford with large private plot, modern kitchen, versatile rooms, ample parking,...

College Close, Alkborough, DN15

4 Bedroom Detached House | Offers in excess of £350,000

**QUIET CUL-DE-SAC POSITION****TURN KEY DETACHED FAMILY HOME****IMMACULATELY MAINTAINED THROUGHOUT****OPEN FIELD VIEWS T...

Ermine Street, Winterton, DN15

3 Bedroom Semi-Detached House | £360,000

Charming 3-bed semi-detached house on 3.7 acres with 2.75-acre paddock, large gardens, woodland, ample parking, uPVC dou...

Brigg Road, Messingham, DN17

5 Bedroom Detached Bungalow | £365,000

**NO CHAIN ** LARGE SOUTH FACING PLOT APPROACHING 0.5 OF AN ACRE ** A fine traditional detached bungalow offering beauti...

Mountcastle Bungalow, 1 Laughton Road, Scotton, Lincolnshire, DN21 3QH

3 Bedroom Detached Bungalow | £369,950

** PRIME VILLAGE LOCATION ** NO UPWARD CHAIN ** EXCELLENT POTENTIAL **

Paul Fox (Scunthorpe)

Scunthorpe, North Lincolnshire, DN15 7PN

01724 282868

How much is your home worth?

Use our short form to request a valuation of your property.

Request a Valuation

Mortgage Calculator

Amount Borrowed: £
Total Amount Repayable: £
Total Monthly Payment: £
©2026 The Guild of Property Professionals. All rights reserved. Terms and Conditions | Privacy Policy | Cookie Policy | Complaints Policy | Members Login
The Guild of Property Professionals Trading Address: 121 Park Lane, London W1K 7AG. GPEA Limited. Registered in England & Wales.  Company No: 02819824.  Registered Office Address: 2 St. Stephen's Court, St. Stephen's Road, Bournemouth, Dorset, England, BH2 6LA.  VAT Registration No: 576 8795 61
Book a Property Valuation Update Cookies Preferences