The Street, Ash, Sevenoaks, Kent, TN15

£350,000
SSTC
This property listing is now SSTC

Land for sale in Sevenoaks

  • Rare Development Opportunity
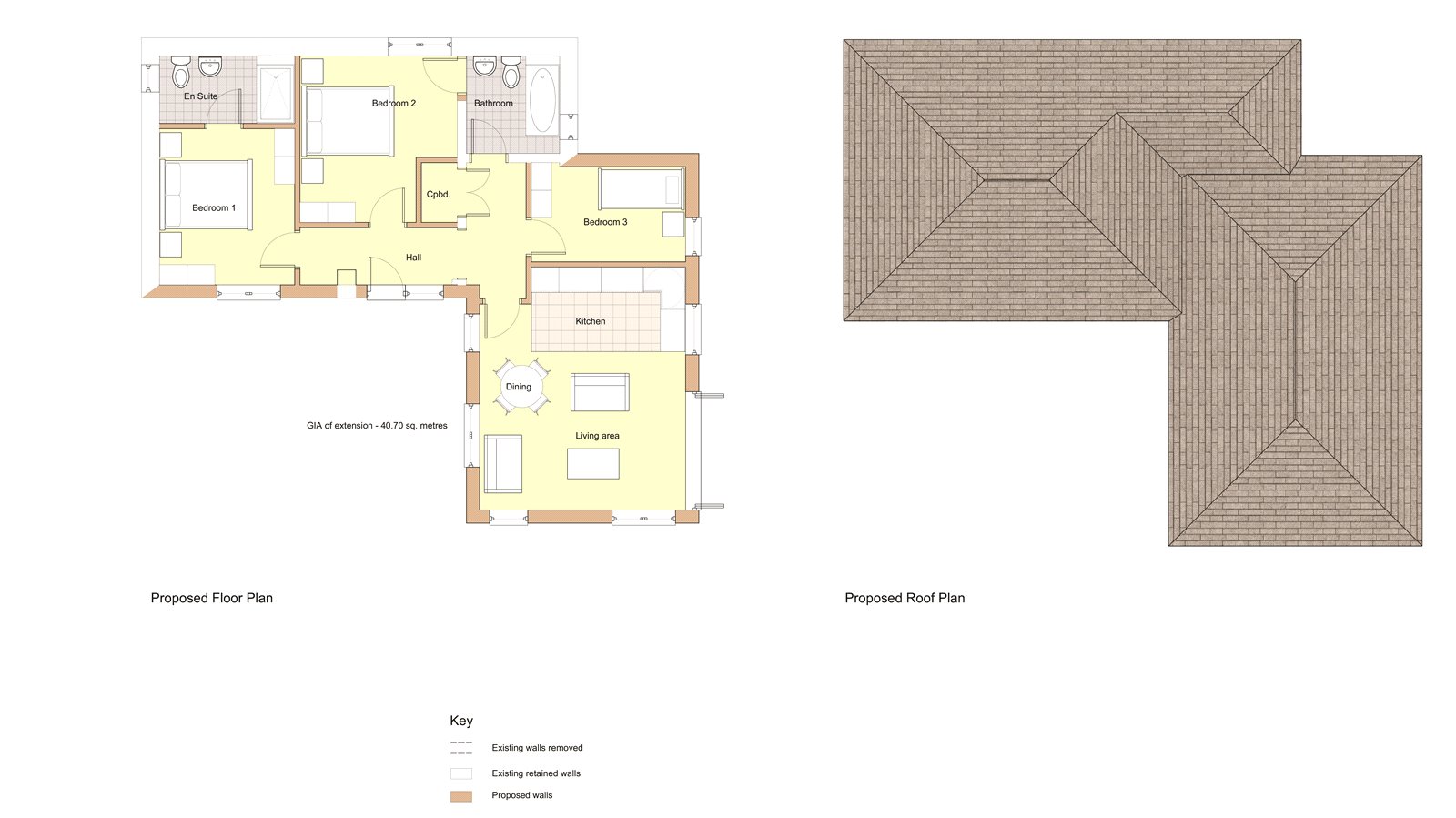
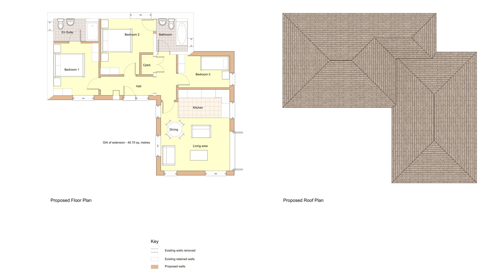
  • Planning Permission Granted for Conversion of Existing Garage to Residential
  • Private Sub-Divided Plot of Approximately 0.5 Acre
  • Proposed 3 Bedroom Single Storey Dwelling
  • Green Belt Rural Location
  • Vacant Possession

SOLD VIA CLIFTON & CO

An exceptional opportunity awaits with this rare plot in the sought-after green-belt village of Ash, Kent. Planning permission has been granted for the conversion of the existing garage structure into a three-bedroom bungalow, all set within a private sub-divided plot of approximately half an acre.

Redevelopment opportunities in this charming and protected rural location are exceedingly rare, making this a truly unique find. This plot offers a fantastic blank canvas for those wishing to create a custom single-story home nestled in serene surroundings. With the potential to craft a bespoke bungalow tailored to your vision, this property is perfect for discerning buyers seeking the tranquillity of a countryside setting while still enjoying the local village amenities.

Ash and the surrounding area provide a blend of countryside living and convenient access to nearby amenities. The popular village of New Ash Green is just a short distance away, offering a variety of local shops, cafes, and essential services. For those looking for more extensive amenities, Longfield offers supermarkets, restaurants, and retail options. Families will appreciate the well-regarded local schools and community activities available in the area.

Commuters are well-served by Longfield Station, providing direct rail links to London Victoria, making this an ideal location for those who wish to escape to the countryside without losing easy access to the city. Road networks also provide quick connections to the M20 and M25, opening routes to London, the Kent coast, and beyond.

Whether you are looking for a unique development project or the chance to create a private, personalised residence in a Kentish rural locale then this rarely found plot offers endless potential for future value and enjoyment.

Important Information

  • This is a Freehold property.

Property Ref: 321455_HAR240122

Share:

Similar Properties

Highcross Road, Southfleet, Kent, DA13

2 Bedroom Terraced House | Offers in excess of £350,000

SOLD VIA CLIFTON & COWe are pleased to offer for sale this pretty cottage situated in the semi rural village of Southfle...

Maidstone Road, Borough Green, Kent, TN15

1 Bedroom Bungalow | Guide Price £350,000

Whiffens Farm Barns is an exclusive development of four individual barn conversions built to an exacting standard in a s...

Saxon Road, Faversham, Kent, ME13

2 Bedroom Semi-Detached House | Guide Price £350,000

SOLD VIA CLIFTON & COGUIDE PRICE £350,000 - £375,000. This niche development comprising of two contemporary houses and t...

Otford Road, Sevenoaks, Kent, TN14

2 Bedroom End of Terrace House | Offers in excess of £360,000

OFFERS IN EXCESS OF £360,000This well-presented two bedroom end of terrace house, within easy reach of all local ameniti...

Seven Acres, New Ash Green, Kent, DA3

3 Bedroom Semi-Detached House | Offers in excess of £360,000

SOLD SUBJECT TO CONTRACT VIA CLIFTON & COThis lovely three bedroom semi-detached 1980’s Wards built home has been i...

Hatham Green Lane, Stansted, Sevenoaks, Kent, TN15

2 Bedroom Terraced House | Guide Price £365,000

GUIDE PRICE £365,000 - £385,000Field View is one of four newly built two double bedroom stable style cottage homes that...

Clifton & Co Estate Agents (Hartley)

Hartley, Kent, DA3 8DL

01474 700101

How much is your home worth?

Use our short form to request a valuation of your property.

Request a Valuation

Mortgage Calculator

Amount Borrowed: £
Total Amount Repayable: £
Total Monthly Payment: £
©2025 The Guild of Property Professionals. All rights reserved. Terms and Conditions | Privacy Policy | Cookie Policy | Complaints Policy | Members Login
The Guild of Property Professionals Trading Address: 121 Park Lane, London W1K 7AG. GPEA Limited. Registered in England & Wales.  Company No: 02819824.  Registered Office Address: 2 St. Stephen's Court, St. Stephen's Road, Bournemouth, Dorset, England, BH2 6LA.  VAT Registration No: 576 8795 61
Book a Property Valuation Update Cookies Preferences