Basted Lane, Borough Green, Sevenoaks, Kent, TN15

£435,000
SSTC
This property listing is now SSTC

End of Terrace House for sale in Sevenoaks

  • Beautiful end of terrace cottage
  • Three Bedrooms
  • Exclusive Development by the river Bourne
  • Sitting room overlooking the green.
  • Conservatory with central heating
  • Well established gardens
  • En bloc garage with utility area
  • EPC C

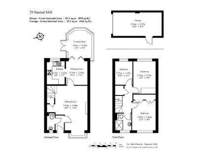
A delightful and beautifully presented three bedroom end of terrace cottage style property enclosed within extremely well maintained grounds with timber bridge walkways across the river.

The property is accessed via a private front pathway and faces out over the green and the River Bourne. There is a pitched roof en-bloc garage to the rear with private pedestrian access from the rear garden



A delightful and beautifully presented three bedroom end of terrace cottage style property enclosed within extremely well maintained grounds with timber bridge walkways across the river.

The property is accessed via a private front pathway and faces out over the green and the River Bourne. There is a pitched roof en-bloc garage to the rear with private pedestrian access from the rear garden


Basted Mill is an award winning collection of 29 houses built by Crest Homes in 1999 around the site of an old mill. The development nestles in a wooded valley with fine walks through the adjacent woods and nearby lakes. The village of Borough Green with its variety of shops, restaurants, public house, bar, churches, popular primary school, dentists, doctors and mainline station (with services to London Victoria, Blackfriars, Maidstone and Ashford International) is within walking distance. Nearby are the villages of Plaxtol, Crouch and Ightham to name just a few. Sevenoaks Town Centre is approx.3 miles.

Property Ref: 321455_HAR190075

Share:

Similar Properties

Main Road, Longfield, Kent, DA3

3 Bedroom Semi-Detached Bungalow | Guide Price £435,000

SOLD VIA CLIFTON & COThis three bedroom extended semi-detached chalet bungalow sits back from the roadside in a location...

Edmund Close, Meopham, Kent, DA13

3 Bedroom Terraced House | Offers in excess of £425,000

SOLD SUBJECT TO CONTRACT VIA CLIFTON & CO.This three bedroom family home is situated in a quiet cul-de-sac lined with ma...

Gresham Avenue, Hartley, DA3

2 Bedroom Detached Bungalow | Guide Price £425,000

GUIDE PRICE £425,000 - £450,000. Offering end of chain sale this two bedroom detached bungalow set in cul-de-sac positio...

Main Road, Longfield, DA3

3 Bedroom Terraced House | £440,000

SOLD VIA CLIFTON & CO Set in the heart of this thriving village this bright and airy three bedroom house boasts spacious...

The Street, Horton Kirby, Kent, DA4

3 Bedroom End of Terrace House | Offers in excess of £450,000

This beautifully refurbished and extended three bedroom end of terrace home forms part of Bexley Cottages, built circa 1...

St Margarets, Larks Field, Hartley, DA3

2 Bedroom Semi-Detached Bungalow | £460,000

SOLD VIA CLIFTON & COOffering end of chain sale this rarely available two bedroom bungalow sits on large south facing pl...

Clifton & Co Estate Agents (Hartley)

Hartley, Kent, DA3 8DL

01474 700101

How much is your home worth?

Use our short form to request a valuation of your property.

Request a Valuation

Mortgage Calculator

Amount Borrowed: £
Total Amount Repayable: £
Total Monthly Payment: £
©2025 The Guild of Property Professionals. All rights reserved. Terms and Conditions | Privacy Policy | Cookie Policy | Complaints Policy | Members Login
The Guild of Property Professionals Trading Address: 121 Park Lane, London W1K 7AG. GPEA Limited. Registered in England & Wales.  Company No: 02819824.  Registered Office Address: 2 St. Stephen's Court, St. Stephen's Road, Bournemouth, Dorset, England, BH2 6LA.  VAT Registration No: 576 8795 61
Book a Property Valuation Update Cookies Preferences