Ludwell

Guide Price
£450,000

2 Bedroom Detached House for sale in Shaftesbury

4 2 1
  • Charming & Characterful Detached Cottage
  • Enviable Plot Totalling Approx. 0.2 Of An Acre
  • Abundance Of Period Features Throughout
  • Two Bedrooms & One Bathroom
  • Attractive Gardens
  • Exceptional Views Of Surrounding Countryside
  • Off Road Parking
  • EPC: E

Enjoying uninterrupted views of surrounding countryside as well as a Win Green Down, this utterly charming thatch cottage offers a variety of living spaces as well as numerous outbuildings and workshops positioned throughout the plot.

LOCATION

The beautiful village of Ludwell is tucked away in a sheltered valley and benefits from a prize winning Post Office and General Store, family butcher, pub, farm shop and an excellent Primary School. Further benefits include stunning countryside walks, riding, fishing and cycling. The Saxon market town of Shaftesbury is located just 2 miles away and has an extensive variety of services to cater for many requirements including supermarkets, a hospital, doctors surgery, post office, green grocers and restaurants and an arts centre to name but a few.

The area has strong communication links with the A30 providing access to both the A350 leading to the coast and the A303 providing access to London and the South West. A mainline railway station serving London Waterloo is located in the nearby village of Tisbury and a regular bus service to Shaftesbury and Salisbury can be found in nearby Donhead St Mary.

DESCRIPTION

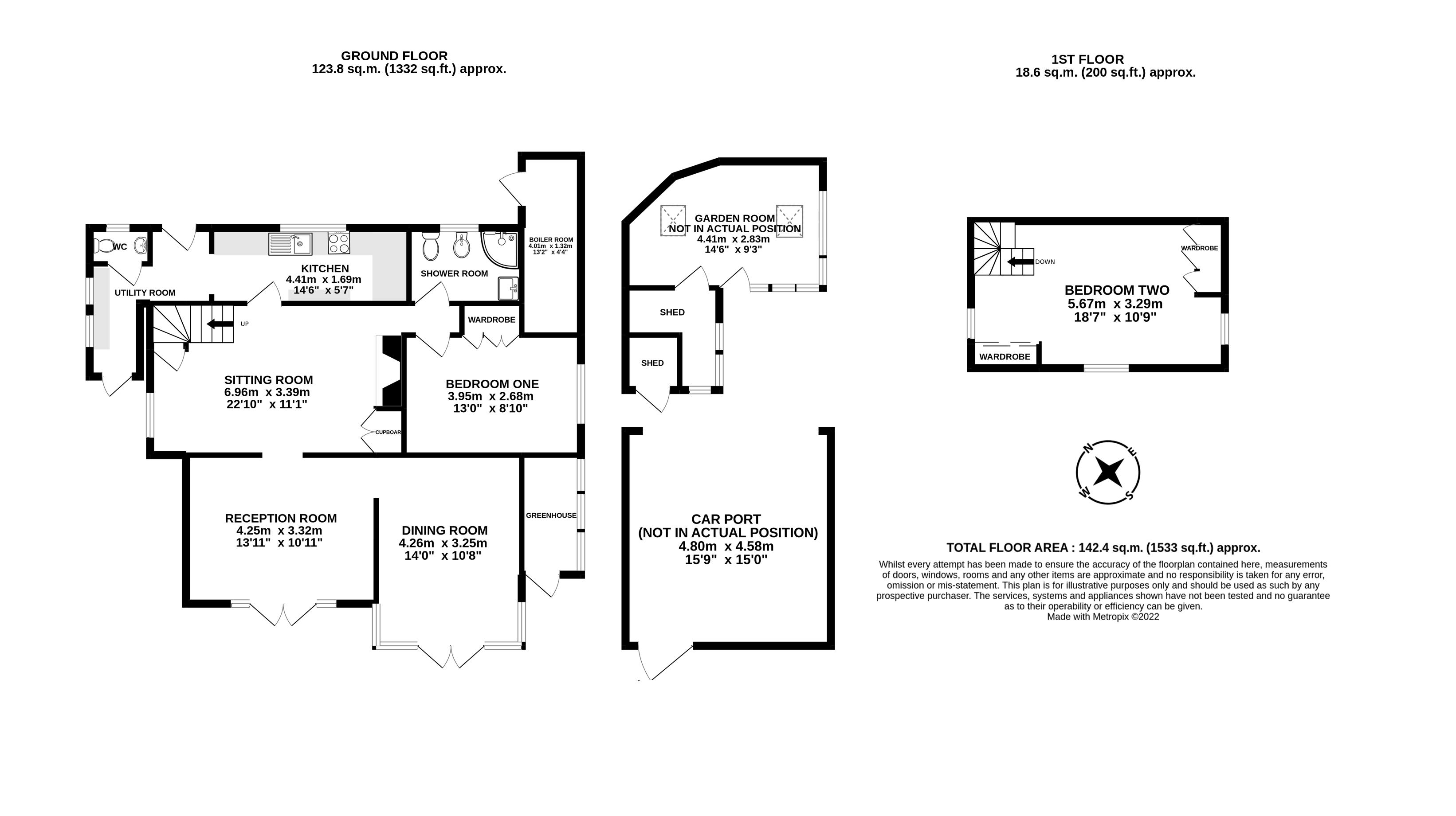
The accommodation itself is steeped in character and charm with plentiful features such as the low cottage ceilings, exposed beams and open fireplace whilst still offering a warm and inviting atmosphere. Predominantly laid over one floor, the rooms include a kitchen with separate utility room, sitting room and further dining room, comfortable double bedroom and shower room. Upstairs boasts a further double bedroom with inviting views.

OUTSIDE

Externally, the charm and heart-warming spaces continue with a
stunning sun terrace covered by a beautiful wisteria that can be
accessed from the additional reception room. In turn is an absolutely
wonderful garden bursting with colour and vibrant planting as well as
established lawn and specimen trees including several soft fruit
trees.
The garden presents a private and welcoming outside space that can
be enjoyed throughout the seasons. To the south east is a breathtaking view countryside view looking to Win Green Down, Compton
Abbas Airfield and beyond. In addition, the garden offers numerous
timber framed structures ideal for storage or space for workshops

SERVICES

Main water and electricity is present at the Cottage. Drainage is in the form of a septic tank and there is also a well maintained oil fired central heating system.

TENURE

Freehold.

LOCAL AUTHORITY

Wiltshire Council Tax Band B.

VIEWINGS

Strictly by appointment, only with Boatwrights Estate Agents.

01747 213 106
sales@boatwrights.co.uk
www.boatwrights.co.uk

Important Information

  • This is a Freehold property.

Property Ref: EAXML16942_11573997

Share:

Similar Properties

Linden Park, Shaftesbury

4 Bedroom Detached House | Asking Price £435,000

A handsome, modern home located in the ever-popular Linden Park Development of Shaftesbury. The home offers four bedroo...

Sandilands Close, East Stour

4 Bedroom Detached House | Asking Price £425,000

A well presented three/four bedroom detached house, with fantastic rural views and flexible living accommodation.

Nursery Gardens, Mere

3 Bedroom Detached House | Asking Price £415,000

A very-well presented, spacious and modern three-bedroom detached home situated within a quiet cul-de-sac of Mere. The...

White Pit Lane, East Melbury

3 Bedroom Semi-Detached House | Asking Price £575,000

Set against a fabulous backdrop of the Dorset countryside is this charming three-bedroom semi-detached cottage that has...

Leigh Lane, East Knoyle

3 Bedroom Detached House | Guide Price £575,000

A beautifully presented, high quality cottage constructed in 2019 by award winning local builders situated within the he...

Bleke Street, Shaftesbury

4 Bedroom Bungalow | Guide Price £595,000

A stunning, spacious home located within a short distance of Shaftesbury's Town Centre offering a fantastic amount of li...

Boatwrights Estate Agents (Shaftesbury)

Shaftesbury, Dorset, SP7 8JG

01747 213106

How much is your home worth?

Use our short form to request a valuation of your property.

Request a Valuation

Mortgage Calculator

Amount Borrowed: £
Total Amount Repayable: £
Total Monthly Payment: £
©2026 The Guild of Property Professionals. All rights reserved. Terms and Conditions | Privacy Policy | Cookie Policy | Complaints Policy | Members Login
The Guild of Property Professionals Trading Address: 121 Park Lane, London W1K 7AG. GPEA Limited. Registered in England & Wales.  Company No: 02819824.  Registered Office Address: 2 St. Stephen's Court, St. Stephen's Road, Bournemouth, Dorset, England, BH2 6LA.  VAT Registration No: 576 8795 61
Book a Property Valuation Update Cookies Preferences