Sheringham

Guide Price
£425,000
SSTC
This property listing is now SSTC

3 Bedroom Detached House for sale in Sheringham

3 1
  • Character detached house
  • Bay front sitting room
  • Open plan kitchen dining room and conservatory
  • Downstairs cloakroom
  • Study and separate modern studio
  • 3 bedrooms
  • uPVC double glazing
  • Gas central heating
  • Solar panels
  • Cottage courtyard gardens

Location Sheringham is a picturesque town nestled in an Area of Outstanding Natural Beauty on the stunning North Norfolk coast, perfectly positioned between the sea and beautiful woodland of Pretty Corner. A highly sought-after destination for both holidaymakers and retirees, the town offers exceptional coastal and woodland walks, with Sheringham beach proudly holding Blue Flag status. The beach is complemented by a wide promenade that stretches the length of the town, ideal for seaside strolls.

Sheringham boasts a vibrant town centre with a fantastic range of independent shops, well-known brands, and a Tesco supermarket offering convenient short-term parking. Excellent bus and rail links provide easy access to Norwich, the lively cultural hub just 27 miles south, the charming Georgian town of Holt, 6 miles away, and Cromer, a delightful Victorian seaside town 4 miles along the coast.

Sheringham is well-equipped with modern amenities including a state-of-the-art health centre, dental services, theatre, schools for all ages and library. The Reef Leisure Centre and the town's renowned 18-hole cliff-top golf course offer further opportunities for recreation. Throughout the year, Sheringham hosts a variety of popular events such as the Viking Festival, Crab and Lobster Festival, Carnival, and the celebrated 1940s Weekend, ensuring there's always something to enjoy.

Sheringham combines coastal charm, natural beauty, and a warm community spirit, making it an exceptional place to visit or call home 

Description This handsome detached Arts and Crafts home, dating from the 1920s, is brimming with character and period detail, including rare strapwork ceilings and beautifully preserved woodwork. From the moment you step into the welcoming reception hall with its stripped pine doors and Art Deco leaded lights, the property exudes warmth and individuality.

The house offers a superb balance of traditional charm and modern convenience, with light-filled living spaces including a bay-fronted sitting room, a dining room with woodburner, and a versatile study. The kitchen, dining room and connect seamlessly with the mature, secluded garden, while a large separate studio provides the perfect space for creative pursuits or a home office.

Recent updates ensure comfort and efficiency, with a modern gas-fired boiler and solar panels complementing the home's traditional fabric. Upstairs, three bedrooms are served by a stylish shower room, while outside the distinctive Arts and Crafts influence continues with decorative gates, brickweave driveway, and thoughtfully landscaped gardens, offering private corners to relax and enjoy.

Rich in period features yet adapted for contemporary living, this is a rare opportunity to own a home of both architectural interest and everyday comfort.

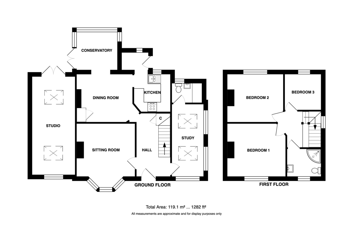
Storm porch entrance with pitch tiled roof, entrance door to: 

Reception Hall 13' 3" x 4' 5" (4.04m x 1.35m) Stripped boarded floor, carpeted stairs to the first floor with pine bannister, stripped pine doors with leaded lights in Art Deco style, open under stairs storage area. 

Sitting Room 13' 5" into bay x 12' 2" (4.09m x 3.71m) Stripped boarded floor, radiator, uPVC sealed unit double glazed walk-in bay window. 

Study 15' 2" x 6' 7" (4.62m x 2.01m) pine boarded floor, uPVC sealed unit double glazed windows and twin velux windows, inset ceiling lighting, radiator, door to: 

CLOAKS/UTILITY ROOM 6' 3" x 4' 6" (1.91m x 1.37m) Fitted worktop with plumbing for automatic washing machine beneath, wash basin and low level wc, radiator, ceramic tiled floor, uPVC sealed unit double glazed window. 

Dining Room 10' x 11' 7" (3.05m x 3.53m) Woodburner recessed to chimney breast with tiled hearth and mantel surround, built-in storage cupboard, picture rail, radiator, open to conservatory, open plan to: 

Kitchen 7' 10" x 7' 7" (2.39m x 2.31m) White glazed 1.5 bowl sink unit inset to low profile worktop shaker style fitted units comprising base units and wall mounted cupboards, built-in electric oven and 4 ring ceramic hob with integrated hood above, inset ceiling lights, doorway to: 

Rear Lobby 5' 7" x 3' 11" (1.7m x 1.19m) uPVC sealed unit double glazed window, stable type door to garden, space for tall fridge/freezer. 

Conservatory 8' 6" x 7' 11" (2.59m x 2.41m) With double glazed windows, french doors to garden and double glazed roof, boarded floor. 

STUDIO 20' 7" x 9' (6.27m x 2.74m) Radiator, uPVC sealed unit double glazed window and double glazed doors to the garden, laminate floor twin velux windows and inset ceiling lights, cupboard housing gas fired boiler. 

Landing uPVC sealed unit double glazed window, access hatch to loft space. 

Bedroom 1 11' x 12' 1" (3.35m x 3.68m) Radiator, stripped boarded floor, uPVC sealed unit double glazed window. 

Bedroom 2 11' 8" x 10' 1" (3.56m x 3.07m) Radiator, fitted carpet, uPVC sealed unit double glazed window. 

Bedroom 3 7' 11" x 7' 7" (2.41m x 2.31m) Radiator, fitted carpet, uPVC sealed unit double glazed window. 

Shower Room 6' 11" x 5' 9" (2.11m x 1.75m) White 3 piece suite comprising quadrant shower cubicle with chrome mixer shower, marble effect splashback, low level wc and pedestal wash basin, uPVC sealed unit double glazed window, ceramic tiled floor with underfloor heating, chrome ladder radiator. 

Outside Front garden with "sunburst" design personal and vehicle gates, opening to a brickweave parking space and matching winding path to the front entrance. There is mature planting and a well secluded front patio area.

The small rear garden enjoys extensive mature planting, with 2 paved patio areas either side of the conservatory and including timber store and potting sheds. 

Services Mains gas water electricity and drainage are available. 

Local Authority/Council Tax North Norfolk District Council
Council Tax Band D 

EPC Rating The Energy Rating for this property is B. A full Energy Performance Certificate available on request. 

Important Agent Note Intending purchasers will be asked to provide original Identity Documentation and Proof of Address before solicitors are instructed.
The bespoke stained glass artwork in the front and internal doors may be available by separate negotiation. 

We Are Here To Help If your interest in this property is dependent on anything about the property or its surroundings which are not referred to in these sales particulars, please contact us before viewing and we will do our best to answer any questions you may have.

The price quoted for the property does not include Stamp Duty or Title Registration fees, which purchasers will normally pay as part of the conveyancing process. Please ask us if you would like assistance calculating these charges. 

Property Ref: 101301034558

Share:

Similar Properties

Sheringham

3 Bedroom Apartment | Guide Price £425,000

Completely renovated to a high specification, a luxurious three bedroomed first floor apartment, situated in an exclusiv...

Holt

4 Bedroom Detached House | Guide Price £425,000

An attractive and well presented detached family house arranged over three floors with no onward chain in a sought after...

Swanton Abbott, Nr North Walsham

3 Bedroom Detached House | Guide Price £425,000

A most attractively refurbished and extended, established detached house in peaceful setting with south facing rear gard...

Thorpe Road, Southrepps

3 Bedroom Detached Bungalow | Guide Price £440,000

A mature detached bungalow with extended open plan living space, situated in mature gardens extending to 0.24 acres (stm...

West Runton

3 Bedroom Detached House | Offers in excess of £450,000

A detached family home with superb sea views, situated within a level walk of the local shops and conveniently close to...

Sheringham

4 Bedroom Maisonette | Guide Price £450,000

Offering 1937 square feet of contemporary accommodation, this fabulous apartment is conveniently located in the town cen...

Watsons (Sheringham)

Sheringham, Norfolk, NR26 8RG

01263 823201

How much is your home worth?

Use our short form to request a valuation of your property.

Request a Valuation

Mortgage Calculator

Amount Borrowed: £
Total Amount Repayable: £
Total Monthly Payment: £
©2026 The Guild of Property Professionals. All rights reserved. Terms and Conditions | Privacy Policy | Cookie Policy | Complaints Policy | Members Login
The Guild of Property Professionals Trading Address: 121 Park Lane, London W1K 7AG. GPEA Limited. Registered in England & Wales.  Company No: 02819824.  Registered Office Address: 2 St. Stephen's Court, St. Stephen's Road, Bournemouth, Dorset, England, BH2 6LA.  VAT Registration No: 576 8795 61
Book a Property Valuation Update Cookies Preferences