Sheringham

Guide Price
£450,000

4 Bedroom Maisonette for sale in Sheringham

4 2
  • Generous private garden and balcony
  • Flexible and extensive accommodation
  • Contemporary open plan living space with bifold doors to balcony
  • Fitted kitchen and utility room
  • 4/5 double bedrooms
  • Generous principal bedroom with modern en-suite
  • Study/snug
  • Family bathroom
  • Covered pergola wired for a hot tub
  • Beautifully refurbished with modern loft conversion

Location Sheringham is a picturesque town nestled in an Area of Outstanding Natural Beauty on the stunning North Norfolk coast, perfectly positioned between the sea and the enchanting Pretty Corner woods. Known for its bustling atmosphere, Sheringham boasts a vibrant town centre with a fantastic range of independent shops, well-known brands, and a Tesco supermarket offering convenient short-term parking. Excellent bus and rail links provide easy access to Norwich, the lively cultural hub just 27 miles south, the charming Georgian town of Holt, 6 miles away, and Cromer, a delightful Victorian seaside town 4 miles along the coast.

A highly sought-after destination for both holidaymakers and retirees, the town offers exceptional coastal and woodland walks, with Sheringham beach proudly holding Blue Flag status. The beach is complemented by a wide promenade that stretches the length of the town, ideal for seaside strolls.

Sheringham is well-equipped with modern amenities including a health centre, dental services, theatre, and library. The Reef Leisure Centre and the town's renowned 18-hole cliff-top golf course offer further opportunities for recreation. Throughout the year, Sheringham hosts a variety of popular events such as the Viking Festival, Crab and Lobster Festival, Carnival, and the celebrated 1940s Weekend, ensuring there's always something to enjoy.

There are pre-school clubs, reception, primary and secondary schools in Sheringham and many private schools within a few miles.

Sheringham combines coastal charm, natural beauty, and a warm community spirit, making it an exceptional place to visit or call home. 

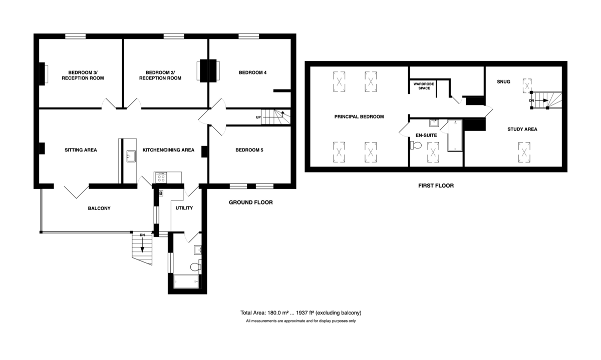
Description This unique and impressive contemporary duplex apartment sits above the shops in the heart of the town, yet offers a wonderfully calm and private atmosphere, with its living spaces arranged to make the most of the lovely rear garden.

A sturdy external staircase rises to a generous balcony that provides an inviting seating area overlooking the garden and opens into a stylish open‑plan living space, via a glazed door into a beautifully fitted kitchen and dining area separated from sitting area by a peninsular unit and complemented by bi‑fold doors leading back out to the balcony. From here, two well‑proportioned rooms branch off, ideal as bedrooms or additional reception rooms, along with a utility room finished to match the kitchen and a modern shower room beyond. A further glazed door leads to an inner hallway, where two additional double bedrooms can be found, together with stairs rising to the upper floor. At the top, a cosy snug or study opens into a spacious principal bedroom offering excellent storage and an elegant en‑suite shower room.

The loft conversion was completed 5 years ago and the property benefits from a fire‑sprinkler system, uPVC double glazing and gas‑fired central heating.

With its flexible layout and generous proportions, this superb home is ideally suited to extended families, couples welcoming visiting relatives or those seeking a stylish pied‑à‑terre by the sea. Internal viewing is highly recommended to fully appreciate the quality of the interior, the extensive accommodation and the lovely landscaped garden.

The accommodation comprises;
 

Balcony 19' 9" x 9' 9" (6.02m x 2.97m) Iron railings, wood flooring, uPVC fully glazed front door with matching window to; 

Open Plan Living Accommodation Comprising; 

Kitchen/Dining Area 14' 5" x 12' 9" (4.39m x 3.89m) Fitted with contemporary base units with wood-block working surfaces over, Bosch appliances including high level double oven, gas hob with canopy extractor over, space for an American style fridge freezer, Belfast sink with mixer tap, radiator and opening to; 

Sitting Area 14' 2" x 12' 9" (4.32m x 3.89m) Separated from the kitchen by a peninsular unit housing a bespoke media unit with TV aerial point and double socket for a wall mounted television including space for satellite box, tiled flooring, radiator, uPVC double glazed bifold door to balcony seating area. 

Utility Room 7' 6" x 7' 4" (2.29m x 2.24m) Fitted with a range of base units to match the kitchen with wood block working surfaces over, space and plumbing for a washing machine, matching wall units, recessed LED spotlights, side and rear aspect uPVC double glazed windows, radiator, door to shower room. 

Shower Room 9' 6" x 46' 9" (2.9m x 14.25m) Fitted with a contemporary suite comprising a large walk-in shower cubicle with mixer shower, low level WC, wash basin, shaver point, radiator, extractor, uPVC double glazed window to side aspect, tiled flooring, part-tiled walls. 

Bedroom 2/Reception Room 14' 46" x 11' 9" (5.44m x 3.58m) uPVC double glazed sash window to East aspect, exposed wooden floor, blocked fireplace and radiator. 

Bedroom 3/Reception Room 14' 3" x 11' 9" (4.34m x 3.58m) Blocked fireplace, East aspect uPVC double glazed sash window, exposed wooden floor, radiator. 

Inner Hall With glazed door to kitchen/dining area, stairs to first floor and legged and braced doors bedrooms 4 and 5. 

Bedroom 4 14' 0" x 11' 8" (4.27m x 3.56m) uPVC double glazed sash window to East aspect, exposed wooden floor, radiator, under-stairs storage area, blocked fireplace with hearth. 

Bedroom 5 14' 0" x 9' 9" (4.27m x 2.97m) With two West aspect uPVC double glazed windows and two radiators. 

First Floor  

Galleried Landing 17' 3" x 15' 11" reducing to 12'6" (5.26m x 4.85m) Currently used as a snug and study area, with uPVC double glazed Velux roof lights to East and West aspects, two radiators and ledged and braced door to: 

Principal Bedroom 17' 3" x 16' 10" (5.26m x 5.13m) Plus lobby area with open recessed wardrobes with hanging rails, built-in storage cupboard and opening to a generous bedroom with four Velux roof lights inset in a vaulted, insulated ceiling offering views towards the church, Beeston Hill and glimpses of the sea, four radiators, legged and braced door to; 

En-Suite Shower Room 9' 1" reducing to 6'5" x 8' 2" (2.77m x 2.49m) Fitted with low level WC, pedestal basin with taps, tiled shower cubicle with mixer shower and pivot door, extractor fan, recessed LED spotlights, radiator, uPVC double glazed Velux window, radiator, tiled floor. 

Outside The property is approached via a tall gate into a large low maintenance, West facing garden enclosed by contemporary horizontal fencing. A shingle path leads to the outside staircase at the far end of garden rising to a generous balcony seating area, a lovely spot from which to enjoy the sunshine and view of the beautiful Tree of Heaven which provides a natural focal point at the opposite end of the garden, planted in a raised bed edged by railway sleepers and topped with flints. To the side of the path is a covered pergola with pamment tiled floor, outdoor electric sockets and electric wiring for a hot tub. For ease of maintenance, the garden is laid to artificial grass. There is an outside tap on the balcony. 

Services All mains services. 

Local Authority/Council Tax North Norfolk District Council, Holt Road, Cromer NR27 9EN.
Tel 01263 513811.
Tax Band: B

 

EPC Rating The Energy Rating for this property is to follow. A full Energy Performance Certificate available on request. 

Tenure We understand that the property is held on the balance of a 999 year lease from 1st February 1994.
Annual Ground Rent; £45
Annual Buildings insurance premium; Currently £450
Service Charge: We understand that the owners are responsible for the upkeep of the property from the first floor level upwards.
 

Leasehold Properties Long residential leases often contain clauses which regulate the activities within individual properties for the benefit of all owners. Such regulated activities often (but not always) include keeping pets, subletting and running a business from home. If you have any specific questions about the lease of this property please ask a member of staff.  

Important Agent Note Intending purchasers will be asked to provide original Identity Documentation and Proof of Address before solicitors are instructed.

Please note that the owners of the shops have an emergency fire exit at the rear of the shops into the garden. 

We Are Here To Help If your interest in this property is dependent on anything about the property or its surroundings which are not referred to in these sales particulars, please contact us before viewing and we will do our best to answer any questions you may have.

The price quoted for the property does not include Stamp Duty or Title Registration fees, which purchasers will normally pay as part of the conveyancing process. Please ask us if you would like assistance calculating these charges. 

Property Ref: 101301037782

Share:

Similar Properties

West Runton

3 Bedroom Detached House | Offers in excess of £450,000

A detached family home with superb sea views, situated within a level walk of the local shops and conveniently close to...

Weybourne

2 Bedroom Barn Conversion | Guide Price £450,000

GUIDE PRICE £450,000 to £475,000 A superb barn conversion, sympathetically designed to retain much of its original chara...

Sheringham

3 Bedroom Detached House | Guide Price £450,000

A superbly appointed, detached chalet bungalow which has undergone extensive refurbishments to provide a stylish and ele...

Sheringham

4 Bedroom Detached House | Guide Price £475,000

A beautifully presented, detached family home, conveniently situated within a short stroll of the local schools, shop an...

Sheringham

3 Bedroom Detached Bungalow | Guide Price £475,000

A generous, detached bungalow, built in 2005 by Bennett Homes occupying a corner plot with a private mature garden and g...

West Runton

3 Bedroom Detached Bungalow | Guide Price £475,000

A beautifully presented detached bungalow, with attractive landscaped gardens, situated within a short stroll of the tra...

Watsons (Sheringham)

Sheringham, Norfolk, NR26 8RG

01263 823201

How much is your home worth?

Use our short form to request a valuation of your property.

Request a Valuation

Mortgage Calculator

Amount Borrowed: £
Total Amount Repayable: £
Total Monthly Payment: £
©2026 The Guild of Property Professionals. All rights reserved. Terms and Conditions | Privacy Policy | Cookie Policy | Complaints Policy | Members Login
The Guild of Property Professionals Trading Address: 121 Park Lane, London W1K 7AG. GPEA Limited. Registered in England & Wales.  Company No: 02819824.  Registered Office Address: 2 St. Stephen's Court, St. Stephen's Road, Bournemouth, Dorset, England, BH2 6LA.  VAT Registration No: 576 8795 61
Book a Property Valuation Update Cookies Preferences