10 Crown House St. Marys Place, Shrewsbury, SY1 1DX

Offers in region of
£199,950

2 Bedroom Apartment for sale in Shrewsbury

1 2 1
  • Stylish 3rd floor town centre apartment
  • Two bedrooms and shower room
  • Open-plan living/dining/kitchen area with air conditioning
  • Lift access to all floors
  • Well maintained communal roof garden
  • Walking distance to shops, cafes, restaurants and train station

This stylish two bedroom apartment is set on the 3rd floor of this modern building in Shrewsbury's town centre, within easy reach of shops, cafes, restaurants and the Shrewsbury railway station. Crown House is a well designed residential block, with lift access and communal roof garden. Inside the layout is simple and practical with an open plan living and kitchen space, which feels bright and airy, thanks to the large windows. The kitchen is contemporary and fitted with integrated appliances, while the living area has room enough for both seating and dining. The bedrooms are well proportioned and the shower room is finished in a modern neutral style. A key feature of the building is the communal roof garden providing a shared outdoor space for the residents to sit, work, or relax. The well planned accommodation has large frame windows overlooking the town centre and beyond and benefits from gas fired central heating and double glazing, as well as solid oak flooring, underfloor heating and fitted blinds (included), throughout.

A superior and stylish, two bedroom central apartment, located within minutes of restaurants, cafes, boutiques and the historic Shrewsbury streetscape.

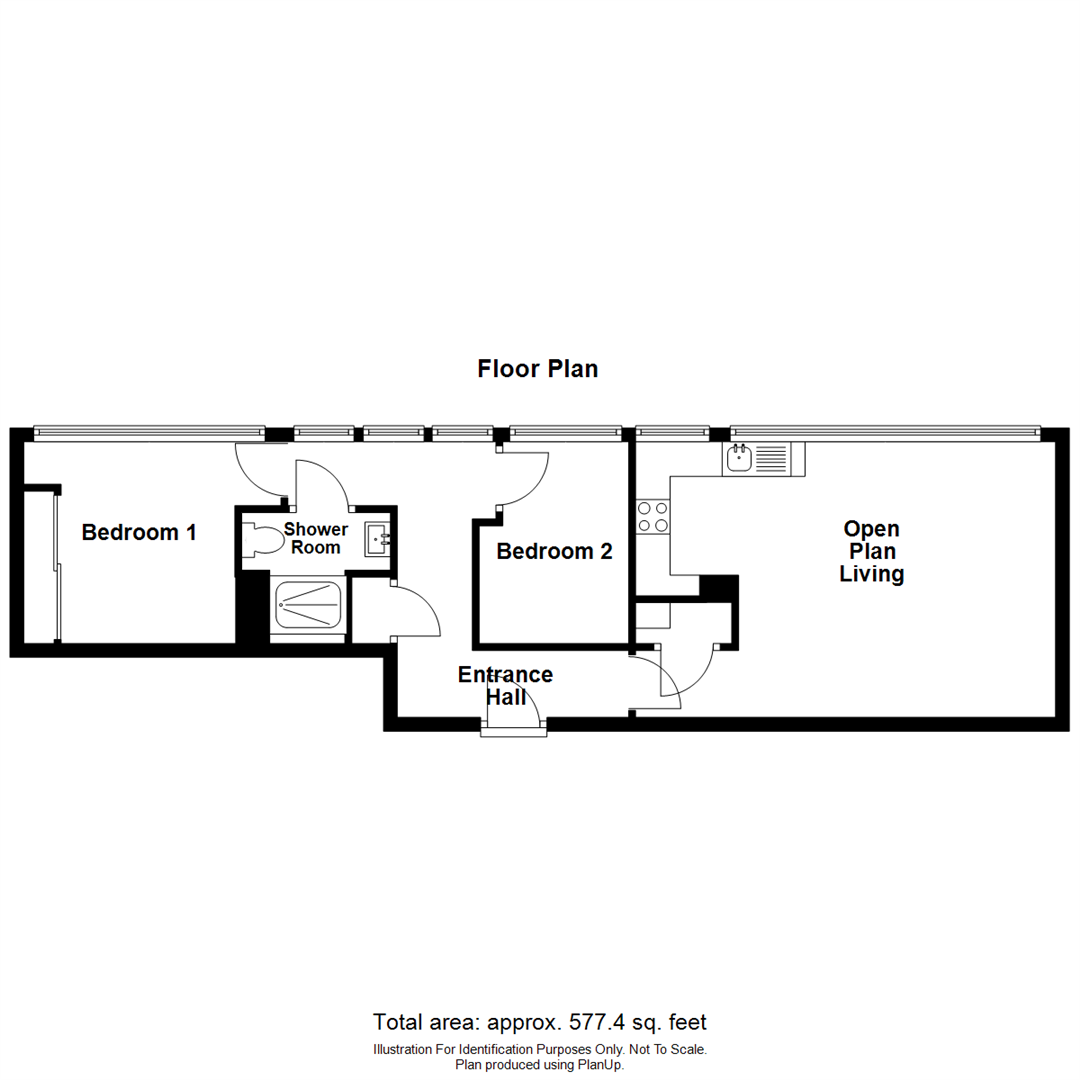
Inside The Property -

Entrance Hall -

Open Plan Living Room / Kitchen - 3.91m x 6.10m (12'10" x 20'0") - Fitted with a range of contemporary matching wall and base units
Integrated appliances
Air conditioning

Utility Closet - With plumbing for washing machine

Bedroom 1 - 2.90m x 2.00m (9'6" x 6'7") - Built in wardrobe with mirror fronted sliding doors
Air conditioning

Bedroom 2 - 2.90m x 2.17m (9'6" x 7'1") -

Shower Room - Shower cubicle
Inset wash hand basin with unit under
Low flush wc
Heated towel rail

Property Ref: 34408256

Share:

Similar Properties

40 Corndon Crescent, Shrewsbury, SY1 4LF

2 Bedroom Semi-Detached House | Offers in region of £199,950

This two bedroom semi-detached home offers well presented accommodation briefly comprising; entrance hall, living room,...

6 Hallcroft Court, St Michael's Street, Shrewsbury, SY1 2AF

2 Bedroom Terraced House | Offers in region of £195,000

The property provides well planned and well proportioned accommodation throughout with rooms of pleasing dimensions and...

11 Callow Crescent, Minsterley, Shrewsbury, SY5 0BY

2 Bedroom Semi-Detached Bungalow | Offers in region of £195,000

This two bedroom semi-detached bungalow occupies a pleasant position and offers scope for extension (subject to any nece...

64 The Old Meadow, Shrewsbury, SY2 6GA

2 Bedroom Apartment | Offers in region of £199,995

This well presented and well maintained two bedroom second floor leasehold apartment, provides well planned accommodatio...

6 Thorns Grove, Bicton Heath, Shrewsbury, SY3 5BY

2 Bedroom Semi-Detached Bungalow | Offers in region of £199,999

This two bedroom semi-detached bungalow provides well planned and well proportioned accommodation with rooms of pleasing...

4 Walsham Close, Radbrook Green, Shrewsbury, SY3 6DN

2 Bedroom Semi-Detached House | Offers in region of £200,000

This two bedroom semi-detached house is neatly kept and provides well planned accommodation briefly comprising; entrance...

Miller Evans (Shrewsbury)

Shrewsbury, Shropshire, SY1 1QJ

01743 236800

How much is your home worth?

Use our short form to request a valuation of your property.

Request a Valuation

Mortgage Calculator

Amount Borrowed: £
Total Amount Repayable: £
Total Monthly Payment: £
©2026 The Guild of Property Professionals. All rights reserved. Terms and Conditions | Privacy Policy | Cookie Policy | Complaints Policy | Members Login
The Guild of Property Professionals Trading Address: 121 Park Lane, London W1K 7AG. GPEA Limited. Registered in England & Wales.  Company No: 02819824.  Registered Office Address: 2 St. Stephen's Court, St. Stephen's Road, Bournemouth, Dorset, England, BH2 6LA.  VAT Registration No: 576 8795 61
Book a Property Valuation Update Cookies Preferences