13 Albert Street, Shrewsbury, SY1 2HT

Offers in region of
£235,000
SSTC
This property listing is now SSTC

2 Bedroom Terraced House for sale in Shrewsbury

2 2 1
  • Character filled spacious terraced townhouse
  • Two double bedrooms and bathroom
  • Living room and dining room
  • Kitchen and utility
  • Useful basement/cellar
  • Enclosed rear garden
  • Convenient location close to town centre

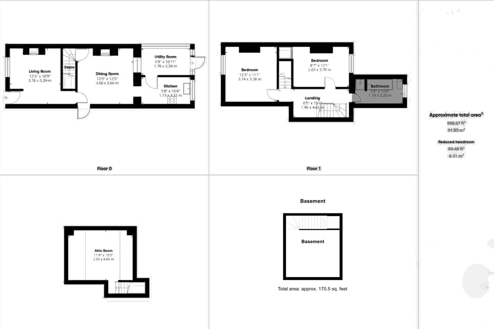
This spacious two bedroom mature terraced house provides comfortable accommodation briefly comprising; entrance hall, living room, dining room, kitchen, utility, cellar. Two bedrooms and bathroom. Useful attic room. Pleasant enclosed rear garden. The property benefits from gas fired central heating.

The property occupies a pleasant position, within walking distance of Shrewsbury town centre and within easy reach of local amenities, schools, the Railway Station and the Shrewsbury by-pass with M54 link to the West Midlands.

A much loved two bedroom mature terraced house with charm and character.

Inside The Property -

Living Room - 3.73m x 3.28m (12'3" x 10'9") - Hardwood flooring
Open fireplace with exposed brick surround

Dining Room - 3.66m x 3.66m (12'0" x 12'0" ) - Feature fireplace with log burning stove and brick surround

Kitchen - 1.73m x 3.20m (5'8" x 10'6") - Fitted with a range of matching wall and base units
Double oven and hob
Door to:

Utility - 1.75m x 3.33m (5'9" x 10'11") - Worktop and plumbing for white goods

Basement / Cellar -

STAIRCASE rising from dining area to FIRST FLOOR LANDING

Bedroom 1 - 3.73m x 3.38m (12'3" x 11'1") -

Bedroom 2 - 2.62m x 3.68m (8'7" x 12'1") -

Bathroom - 1.73m x 3.20m (5'8" x 10'6") - Panelled bath with shower attachment
Wash hand basin, wc

Stairs rising to:

Attic Room - 3.58m x 4.65m (11'9" x 15'3") - Velux roof light.
This could provide additional accommodation, but would be subject to retrospective building/fire regulations approval.

Outside The Property -

The property is approached over a shallow forecourt enclosed by dwarf wall and wrought iron railings.

Enclosed terraced rear garden laid for ease of maintenance and providing a number of mature specimen trees creating an abundance of privacy. Outside WC.

Property Ref: 34014146

Share:

Similar Properties

53 Ashfields Road, Shrewsbury, SY1 3SD

2 Bedroom Detached Bungalow | Offers in region of £235,000

This well presented two bedroom detached bungalow, provides well proportioned accommodation briefly comprising; entrance...

15 Park Meadow, Minsterley, Shrewsbury, SY5 0HL

3 Bedroom Detached House | Offers in region of £235,000

This neatly kept and well maintained three bedroom detached family home provides well planned and well proportioned acco...

1 Sawston Close, Shrewsbury, SY3 6AY

3 Bedroom Semi-Detached House | Offers in region of £235,000

This well presented three bedroom semi-detached family home provides well planned accommodation throughout briefly compr...

1 Bramley Close, Shrewsbury SY1 2TP

3 Bedroom Semi-Detached House | Offers in region of £237,500

This modern and recently renovated, 3 bedroomed family house provides rooms of pleasing dimensions and briefly comprises...

1 Ashlett Cottages, High Street, Church Stretton, SY6 6DB

3 Bedroom Cottage | Offers in region of £239,000

This three bedroom semi-detached cottage, in need of modernisation, but provides spacious accommodation with unique char...

47 Rondel Street, Shrewsbury, SY1 4FA

3 Bedroom Semi-Detached House | Offers in region of £239,000

This beautifully presented semi-detached house includes a welcoming entrance hall with cloakroom, spacious lounge, a sty...

Miller Evans (Shrewsbury)

Shrewsbury, Shropshire, SY1 1QJ

01743 236800

How much is your home worth?

Use our short form to request a valuation of your property.

Request a Valuation

Mortgage Calculator

Amount Borrowed: £
Total Amount Repayable: £
Total Monthly Payment: £
©2026 The Guild of Property Professionals. All rights reserved. Terms and Conditions | Privacy Policy | Cookie Policy | Complaints Policy | Members Login
The Guild of Property Professionals Trading Address: 121 Park Lane, London W1K 7AG. GPEA Limited. Registered in England & Wales.  Company No: 02819824.  Registered Office Address: 2 St. Stephen's Court, St. Stephen's Road, Bournemouth, Dorset, England, BH2 6LA.  VAT Registration No: 576 8795 61
Book a Property Valuation Update Cookies Preferences