63 Springfield Way, Shrewsbury, SY2 6LW

Offers in region of
£295,500
SSTC
This property listing is now SSTC

3 Bedroom Semi-Detached House for sale in Shrewsbury

3 3 1
  • An immaculately presented, much improved semi-detached family home
  • Three bedrooms and shower room
  • Living room, dining room, kitchen
  • Superb L Shaped conservatory
  • Beautifully presented landscaped rear garden
  • Useful Garden Room / Summerhouse / Bar
  • Driveway providing parking
  • Convenient location close to amenities

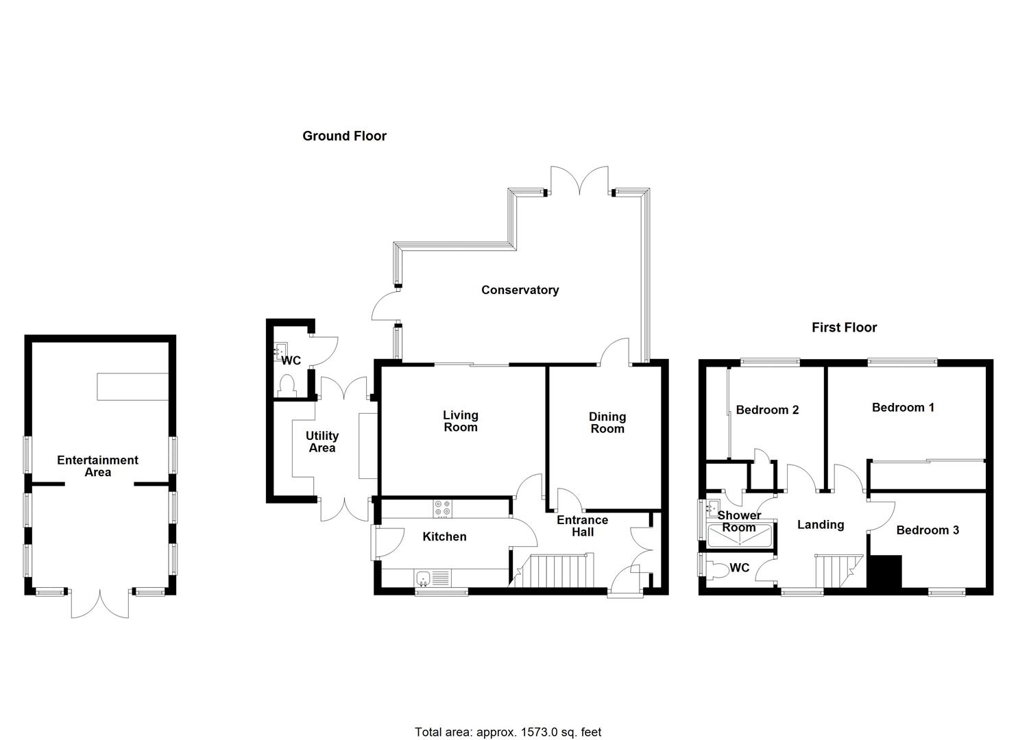
This three bedroom semi-detached house is immaculately presented throughout has been much improved to provide spacious accommodation briefly comprising; entrance hall, kitchen, dining room, living room, L shaped conservatory, rear lobby/utility, three bedrooms and shower room with separate wc. Landscaped rear garden with large summerhouse/entertaining bar area. Driveway providing parking. The property benefits from gas fired central heating and double glazing.

The property is situated on this popular and established residential development, well placed within easy reach of excellent local amenities including shops, schools and on a frequent bus service to the nearby town centre.

An immaculately presented, much improved, three bedroom semi-detached family house.

Inside The Property -

Entrance Hall - Patterned tiled floor

Dining Room - 3.81m x 2.99m (12'6" x 9'10") - Built in store cupboards
LVT flooring
Door to Conservatory

Living Room - 3.45m x 4.39m (11'4" x 14'5") - LVT flooring
Inset log burner
Sliding doors to:

Spacious Conservatory - Spacious L shaped room
LVT flooring
Two doors to rear garden

Kitchen - 2.36m x 3.41m (7'9" x 11'2") - Fitted with a range of matching wall and base units with Quartz worktop with undermount sink
Integrated dishwasher
Built in wall microwave
Inset oven and hob with extractor hood over
Warming drawer
Induction hob
Flooring Quartz
Door to outside

Side Lobby / Utility - 2.52m x 2.78m (8'3" x 9'1") - Fitted with base units
Doors to front and rear

STAIRCASE rising from entrance hall to FIRST FLOOR LANDING

Bedroom 1 - 3.28m x 4.23m (10'9" x 13'11") - Built in wardrobe with sliding mirror fronted doors

Bedroom 2 - 3.28m x 3.15m (10'9" x 10'4") - Built in wardrobe with sliding mirror fronted doors

Bedroom 3 - 2.54m x 3.09m (8'4" x 10'2") -

Shower Room - Newly renovated with walk in shower
Wash hand basin

Separate Wc -

Outside The Property -

The property is divided from the road by dwarf brick wall with wrought iron gate over driveway providing parking, flanked by front garden laid to lawn. Electric car charging point.

Beautifully presented REAR GARDEN laid mainly to lawn with newly planted trees, large paved patio area providing idea seating/entertaining space with Pergola with retractable cover. Pathway to superb SUMMERHOUSE / GARDEN ROOM fitted with a bar area and inset cupboards and fridge units, providing ideal covered entertaining area. Two large store sheds.
Newly renovated outside WC with wash hand basin.

Property Ref: 70030_34224111

Share:

Similar Properties

37 De Quincey Fields, Upton Magna, Shrewsbury, SY4 4US

3 Bedroom Terraced House | Offers in region of £295,000

This modern three bedroom terraced house provides well planned and well proportioned accommodation briefly comprising; e...

14 Glebe Road, Bayston Hill, Shrewsbury, SY3 0PJ

3 Bedroom Semi-Detached House | Offers in region of £294,000

This well presented and much loved 3 bedroom semi detached family house, provides well planned and well proportioned acc...

59 The Oval, Bicton, Shrewsbury, SY3 8ES

3 Bedroom Detached House | Offers in region of £290,000

NO UPWARD CHAIN. This spacious, detached three bedroom family house provides well proportioned accommodation throughout...

18 Essex Road, Church Stretton, SY6 6AX

3 Bedroom Terraced House | Offers in region of £296,000

This charming, three bedroom, end of terrace property requires some modernisation and improvement. The well planned acco...

1 Japonica Cottage, Condover, Shrewsbury, SY5 7AG

2 Bedroom Cottage | Offers in region of £299,000

This charming, neatly kept two bedroom semi-detached country cottage residence provides well planned accommodation brief...

Hillberry, Whitwell Lane, Pontesbury, Shrewsbury, SY5 0YW

4 Bedroom Chalet | Offers in region of £299,950

This detached, four bedroom dormer bungalow, in need of modernisation, provides spacious accommodation throughout, brief...

Miller Evans (Shrewsbury)

Shrewsbury, Shropshire, SY1 1QJ

01743 236800

How much is your home worth?

Use our short form to request a valuation of your property.

Request a Valuation

Mortgage Calculator

Amount Borrowed: £
Total Amount Repayable: £
Total Monthly Payment: £
©2025 The Guild of Property Professionals. All rights reserved. Terms and Conditions | Privacy Policy | Cookie Policy | Complaints Policy | Members Login
The Guild of Property Professionals Trading Address: 121 Park Lane, London W1K 7AG. GPEA Limited. Registered in England & Wales.  Company No: 02819824.  Registered Office Address: 2 St. Stephen's Court, St. Stephen's Road, Bournemouth, Dorset, England, BH2 6LA.  VAT Registration No: 576 8795 61
Book a Property Valuation Update Cookies Preferences