Land to Rear of 195 Holyhead Road, Wellington, Telford, Shropshire, TF1 2DP

Offers in region of
£850,000

Land for sale in Shropshire

  • Prime Development Opportunity in Highly Sought After Location
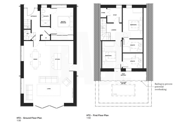
  • Full Planning Approval For Six Detached Dormer Bungalows (Ref TWC/2025/0156)
  • Fantastic Local Amenities & Road Links & Close To Wellington Town Centre
  • Approval for 4 x Three Bedroom Detached Dormer Bungalows with Garages
  • 2 x Three Bedroom Detached Dormer Bungalows with Driveway Parking
  • Site Approximately 0.88 Acres
  • Superb Modern Contemporary Designs with Modern Living
  • For More Details Contact Mannleys

Discover an outstanding development opportunity in Wellington, Telford, Shropshire. This prime parcel of land, approximately 0.88 acres, comes with the significant advantage of full planning approval (Ref TWC/2025/0156) for six beautifully designed detached dormer bungalows. This represents a superb chance for developers to create a modern, desirable residential scheme in a thriving local community.
The approved plans showcase a thoughtful mix of contemporary homes. Four of the proposed properties are three-bedroom detached dormer bungalows, each benefiting from its own garage. The remaining two are also three-bedroom detached dormer bungalows, offering convenient driveway parking. These designs emphasise modern living, promising attractive and functional homes that will appeal to a wide range of buyers seeking quality and style.
The site's external potential is immense, offering the canvas for well-landscaped gardens and attractive communal areas, enhancing the overall appeal of the development. The contemporary designs ensure that each property will stand out, providing a fresh and appealing aesthetic that complements the local environment while offering all the benefits of new build construction.
Located in Wellington, this development land boasts excellent connectivity and access to a wealth of local amenities. Wellington town centre is just a short distance away, providing residents with a variety of shops, eateries, and essential services. The area is well-served by fantastic road links, making commuting and travel straightforward. This ensures future residents will enjoy both the tranquillity of a residential setting and the convenience of urban living. For more details on this unique opportunity, please contact Mannleys.

Important Information

  • This is a Freehold property.

Property Ref: 463261

Share:

Similar Properties

Carpenters Row, Wellington Road, Coalbrookdale, Telford, Shropshire, TF8 7DX

7 Bedroom Terraced House | Offers in region of £850,000

Discover a unique opportunity to acquire four fully furnished, Grade II listed holiday cottages, generating excellent in...

Admaston Spa, Admaston, Telford, Shropshire, TF5 0DJ

3 Bedroom Detached House | Offers in region of £815,000

Discover this outstanding three-bedroom detached executive home in Admaston Spa, Telford. Boasting a stunning plot, a la...

Spa Crescent, Admaston, Telford, Shropshire, TF5 0DH

5 Bedroom Detached House | Offers in region of £795,000

This outstanding property offers a spacious layout, beautiful landscaping, and a sought-after location in Telford, with...

Spa Crescent, Admaston, Telford, Shropshire, TF5 0DH

4 Bedroom Detached House | Offers in region of £857,500

Discover this exceptional four-bedroom detached home in Admaston, Shropshire, offering an enviable location with superb...

Goldcrest Grove, Apley, Telford, Shropshire, TF1 6TA

5 Bedroom Detached House | Offers in region of £875,000

Discover this superbly extended five double bedroom detached executive home in Apley, Shropshire. Boasting five receptio...

Gurdev Chapel Apartments, Chapel Terrace, Wrockwardine

14 Bedroom Apartment | Offers in region of £877,000

An outstanding freehold investment opportunity awaits in Wrockwardine Wood, offering six executive apartments with a str...

Mannleys Property (Telford)

Telford, Shropshire, TF1 1DT

01952 245 064

How much is your home worth?

Use our short form to request a valuation of your property.

Request a Valuation

Mortgage Calculator

Amount Borrowed: £
Total Amount Repayable: £
Total Monthly Payment: £
©2026 The Guild of Property Professionals. All rights reserved. Terms and Conditions | Privacy Policy | Cookie Policy | Complaints Policy | Members Login
The Guild of Property Professionals Trading Address: 121 Park Lane, London W1K 7AG. GPEA Limited. Registered in England & Wales.  Company No: 02819824.  Registered Office Address: 2 St. Stephen's Court, St. Stephen's Road, Bournemouth, Dorset, England, BH2 6LA.  VAT Registration No: 576 8795 61
Book a Property Valuation Update Cookies Preferences