Ketley Bank, Telford, Shropshire, TF2

Offers in excess of
£200,000

Land for sale in Shropshire

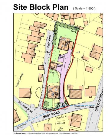
  • Development Opportunity Full Planning Approval For Two Large Detached Homes
  • Planning Reference TWC/2021/1139
  • Established Location with Good Local Amenities & Road Links
  • 1 x 5 Bedroom Detached approx 250sqm & 1 x 3 Bedroom Detached approx 227sqm
  • Both Properties to Have Good SIzed Plots & Garaging
  • Plot Approximately 0.33 Acres
  • Planning Approval For Siting of Static Caravan During Build Phase
  • For More Details Contact Mannleys

A superb development opportunity awaits with this site, boasting approved planning for the construction of two detached houses after the removal of an existing bungalow (planning reference TWC/2021/1139). Spanning approximately 0.33 acres, the site is strategically located in a well-established area with excellent local amenities and road links, making it an ideal prospect. Planning has also been approved for the siting of a static caravan during the construction phases.The approved planning encompasses Plot 1, a five-bedroom detached two-storey home featuring an open-plan kitchen/dining/family room, lounge, study, utility, ground floor WC, three en-suite bedrooms, two additional bedrooms, and a family bathroom this being approximately 250sqm. Plot 2 is thoughtfully designed with an open-plan kitchen/dining/family room, sitting room, study, utility, ground floor WC, two en-suite bedrooms, an additional bedroom, and a bathroom this being approximately 227sqm . Both properties once built would come complete with spacious gardens, driveway parking, and garaging and plot 1 garage would have useful office/gym above.For additional details and inquiries, please don't hesitate to contact Mannleys

Property Ref: 309536

Share:

Similar Properties

North Road, Wellington, Telford, Shropshire, TF1 3EB

3 Bedroom Semi-Detached House | Offers in region of £200,000

Discover this spacious three-bedroom semi-detached home in a popular Wellington location. Offering two reception rooms,...

Greenacres Way, Newport, Shropshire, TF10 7PQ

2 Bedroom Semi-Detached Bungalow | Offers in region of £200,000

Discover this delightful two-bedroom bungalow in Newport, offering comfortable living, excellent local amenities, and es...

Mercia Drive, Leegomery, Telford, Shropshire, TF1 6YH

2 Bedroom Semi-Detached House | Offers in region of £200,000

An extensively refurbished two-bedroom semi-detached house, offered with no onward chain. This modern home boasts open-p...

Deemers Stile, Redhill, Telford, Shropshire, TF2 9WR

2 Bedroom Semi-Detached House | Offers in excess of £210,000

Don't miss out on this charming two-bedroom semi-detached house in Deemers Stile, Telford. Perfect for first-time buyers...

Fenns Crescent, St. Georges, Telford, Shropshire, TF2 9BN

2 Bedroom Bungalow | Offers in region of £210,000

Discover this beautifully presented 2-bedroom bungalow in St. Georges, Telford, featuring a modern kitchen, sleek bathro...

Ashtree Leasow, Leegomery, Telford, Shropshire, TF1 6NT

3 Bedroom Terraced House | Fixed Price £210,000

Discover this superb three-bedroom terraced property in Ashtree Leasow, Telford. Boasting a contemporary kitchen, a spac...

Mannleys Property (Telford)

Telford, Shropshire, TF1 1DT

01952 245 064

How much is your home worth?

Use our short form to request a valuation of your property.

Request a Valuation

Mortgage Calculator

Amount Borrowed: £
Total Amount Repayable: £
Total Monthly Payment: £
©2026 The Guild of Property Professionals. All rights reserved. Terms and Conditions | Privacy Policy | Cookie Policy | Complaints Policy | Members Login
The Guild of Property Professionals Trading Address: 121 Park Lane, London W1K 7AG. GPEA Limited. Registered in England & Wales.  Company No: 02819824.  Registered Office Address: 2 St. Stephen's Court, St. Stephen's Road, Bournemouth, Dorset, England, BH2 6LA.  VAT Registration No: 576 8795 61
Book a Property Valuation Update Cookies Preferences