Western Court, Sidmouth

Asking Price
£250,000

2 Bedroom Not Specified for sale in Sidmouth

1 2 1

A conveniently situated first floor balcony flat with secure undercover parking and situated within a short stroll of the town centre and esplanade.

SUMMARY

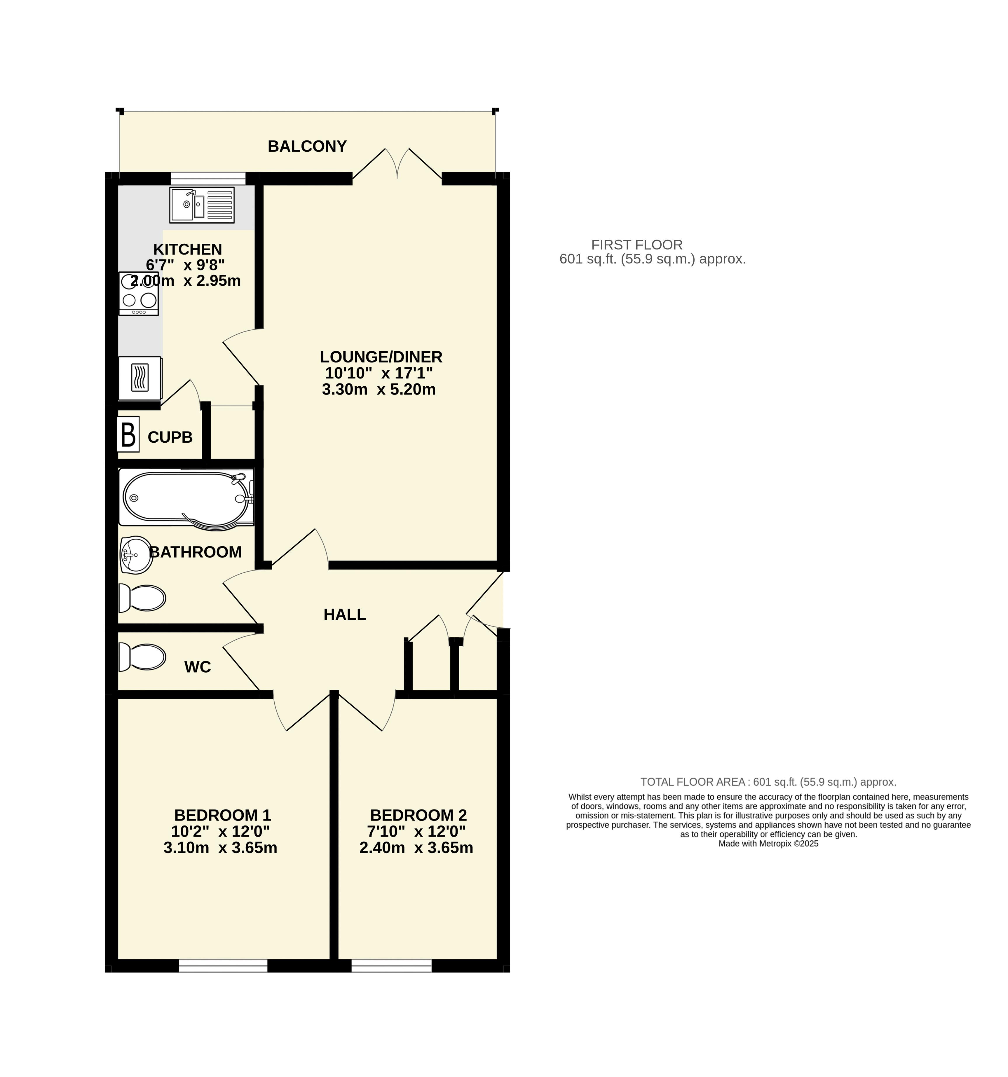
The flat is accessed via a communal hallway which has an entrance security system along with stairs and a lift rising to the upper floors.

On entering the flat an entrance hall has two storage cupboards. The lounge/dining room enjoys a lovely open outlook over The Triangle and towards the cricket field and has French doors leading onto a balcony. An adjoining kitchen offers a range of storage units with worksurfaces, a built-in split level oven, ceramic hob and cooker hood along with a freestanding washing machine and fridge/freezer. A further storage cupboard houses the wall mounted gas fired boiler.

SUMMARY (CONT..)

The two bedrooms are to the rear of the flat, both enjoying a southerly aspect. The bathroom is fitted with a white suite comprising a shaped panelled bath with shower over along with a pedestal wash basin, WC and chrome heated towel rail. In addition to this is a separate WC.

The flat is neutrally decorated throughout and benefits from having gas fired central heating along with uPVC double glazed windows.

This purpose built two bedroom flat offers well presented accommodation and is currently a successful holiday let.

OUTSIDE

Within the development is an undercover secure parking area where there is an allocated space (number 30) conveyed with this flat.

LOCATION

Western Court occupies an almost level position within minutes walk of the town’s amenities, along with The Esplanade and seafront where there is an excellent range of facilities. The flat overlooks The Triangle where there are regular bus services to the surrounding area.

TENURE

We are advised that the property is Leasehold, held on a term of 999 years from 2001. The property owns an equal share in the freehold interest and the development is professionally managed.

SERVICE CHARGE

£190 per calendar month (correct as at February 2026). Service charges are liable to change, you should therefore check the position before making a commitment to purchase.

AGENTS NOTES

1. Holiday and long letting is permitted. Permission must be sought for pets.
2. Contents/furniture are also available by separate negotiation.

SERVICES

Mains gas, water, sewerage and electricity are connected.

BROADBAND AND MOBILE

Standard, Superfast and Ultrafast broadband are available with predicted download speeds of up to 1000 mbps. Good outdoor and variable in-home mobile coverage is available from EE, Three, O2 and Vodafone. Information provided by Ofcom (as at February 2026).

OUTGOINGS

We are advised by East Devon District Council that the council tax band is currently Business Rates.

EPC: C

POSSESSION

Vacant possession on completion.

REF: DHS02477

VIEWING

Strictly by appointment with the agents.

IMPORTANT NOTICE

If you request a viewing of a property, we the Agent will require certain pieces of personal information from you in order to provide a professional service to both you and our clients. The personal information you provide may be shared with our client, but will not be passed to third parties without your consent. The Agent has not tested any apparatus, equipment, appliance, fixtures, fittings or services and so cannot verify that they are in working order, or fit for the purpose. A Buyer is advised to obtain verification from their solicitor and/or surveyor. References to the tenure/outgoings/charges of a property are based on information supplied by the seller - the Agent has not had sight of the title documents. A Buyer is advised to obtain verification from their solicitor. Items shown in photographs/floor plans are not included unless specifically mentioned within the sale particulars. They may be available by separate negotiation. Buyers must check the availability of any property and make an appointment to view before embarking on a journey to view a property.

Important Information

  • This is a Leasehold property.

Property Ref: DHS02477

Share:

Similar Properties

Southway, Sidmouth

3 Bedroom Not Specified | Asking Price £250,000

*** SOLD BY HARRISON LAVERS & POTBURYS *** A three bedroom ground floor flat with private garden, garage and situated in...

Lawn Vista, Sidmouth

2 Bedroom End of Terrace House | Asking Price £250,000

An end of terrace, bay fronted house built at the turn of the last century and situated in a pleasant location, overlook...

Temple Street, Sidmouth

3 Bedroom Terraced House | Guide Price £250,000

Freehold premises comprising a shop and large maisonette – PLANNING PERMISSION TO CONVERT SHOP TO RESIDENTIAL FLAT.

Branscombe, East Devon

2 Bedroom End of Terrace House | Asking Price £265,000

A charming, end of terrace cottage situated in the heart of Branscombe, just half a mile from the beach.

Mill Street, Sidmouth

1 Bedroom Not Specified | Asking Price £265,000

A spacious, first floor flat forming part of a historic, Grade II Listed building, situated in the heart of Sidmouth, a...

All Saints Road, Sidmouth

2 Bedroom Flat | Asking Price £265,000

A well presented, first floor flat with superb west facing views, lift access and a single garage within a popular devel...

Harrison-Lavers & Potburys Ltd (Sidmouth)

High Street, Sidmouth, Devon, EX10 8LD

01395 516633

How much is your home worth?

Use our short form to request a valuation of your property.

Request a Valuation

Mortgage Calculator

Amount Borrowed: £
Total Amount Repayable: £
Total Monthly Payment: £
©2026 The Guild of Property Professionals. All rights reserved. Terms and Conditions | Privacy Policy | Cookie Policy | Complaints Policy | Members Login
The Guild of Property Professionals Trading Address: 121 Park Lane, London W1K 7AG. GPEA Limited. Registered in England & Wales.  Company No: 02819824.  Registered Office Address: 2 St. Stephen's Court, St. Stephen's Road, Bournemouth, Dorset, England, BH2 6LA.  VAT Registration No: 576 8795 61
Book a Property Valuation Update Cookies Preferences