Newlands Road, Sidmouth

Asking Price
£475,000
Under Offer
This property listing is now Under Offer

2 Bedroom House for sale in Sidmouth

1 2 1

A beautifully presented detached house occupying a pleasant cul de sac location with fine views along Salcombe Hill.

SUMMARY

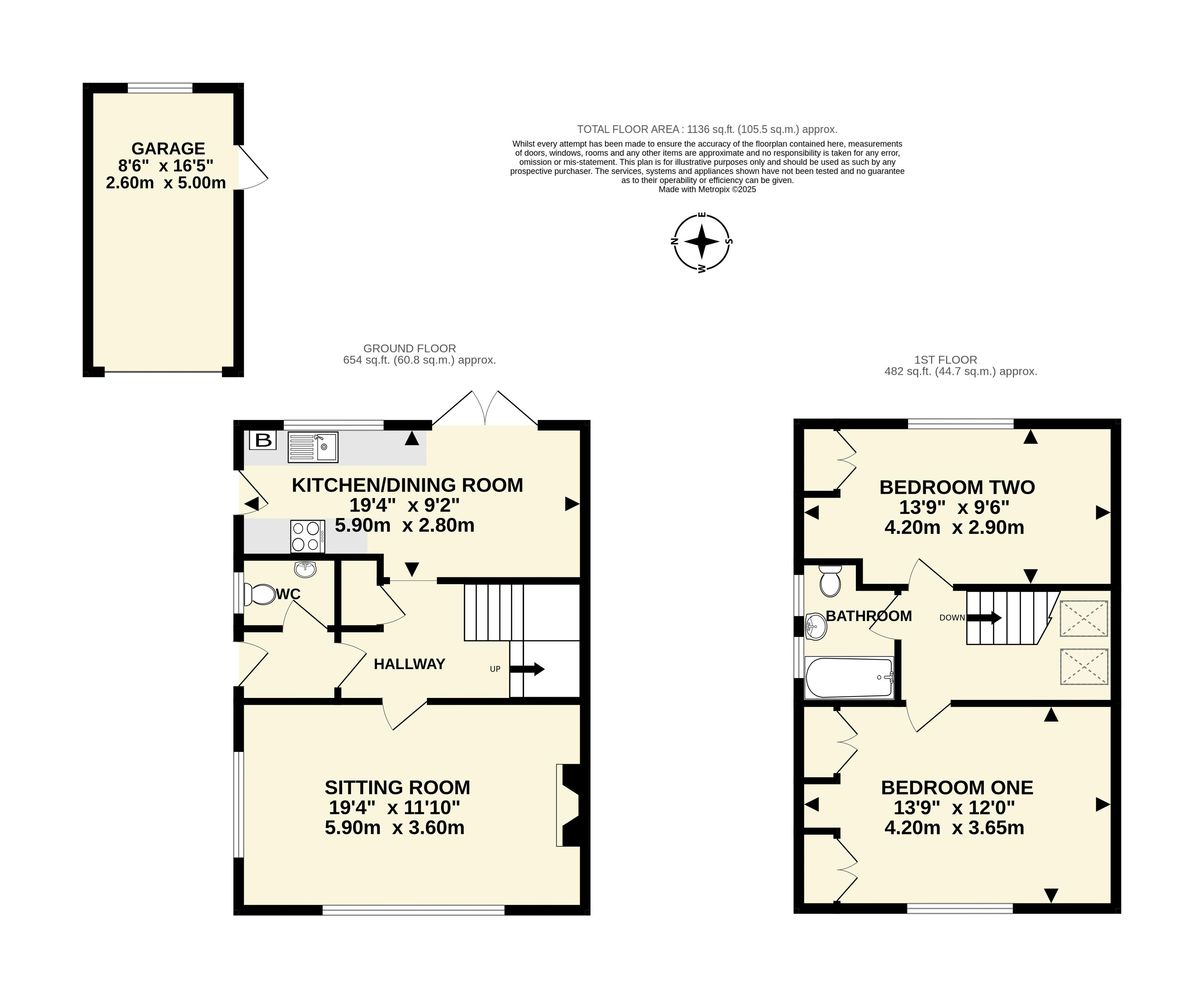
Presented in superb order throughout and with gas central heating and double glazing is this detached house providing comfortable accommodation of around one thousand square feet. The entrance hall has a cloakroom/WC off and leads through to a light hallway with two storage cupboards. The kitchen/dining room is fitted with a good range of units, having a built-in oven and electric hob. There is space and plumbing for a washing machine and room for an American style fridge/freezer. A wall mounted gas boiler provides hot water and central heating. Patio doors open onto a decked terrace, taking in a fine easterly view to Salcombe Hill. The spacious sitting room is dual aspect and overlooks the front garden in a westerly direction.

SUMMARY (CONT..)

The first floor landing has two, south facing Velux windows bringing good light to both the hallway and landing. The main bedroom is of a good size with two built in wardrobes and a west facing window to the front aspect. Bedroom two is also a good size double room with built in wardrobe and window to the rear, taking in a stunning view over the Sid Valley and along Salcombe Hill. Finally, the bathroom is fitted with a white suite, having a mains shower over the bath.

OUTSIDE

To the front of the property is a low maintenance gravel garden, driveway providing off road parking for three cars and leading to a single, detached garage with power, light, cold water tap and plumbing for a washing machine. To the rear of the house, the garden is again arranged with low maintenance in mind, featuring a decked patio, gravel and paved garden, enjoying a south easterly aspect. The garden is enclosed with a secure gate to the driveway.

LOCATION

The property stands in a cul de sac of similar houses, in a popular residential area, a short distance from The Byes and River Sid and regular bus services to the surrounding area. Waitrose is three quarters of a mile away on foot, the amenities at Sidford are less than half a mile away and the town centre and seafront with its busy High Street are less than two miles away. Sidmouth is an unspoilt town on the Jurassic Coast, benefitting from a wide range of amenities including numerous independent shops, High Street chains and popular restaurants.

SERVICES

Mains gas, electricity, water and drainage are connected.

BROADBAND AND MOBILE

Standard and Superfast broadband are available in the area with predicted download speeds of 43 mbps. Mobile coverage is available from EE, Three, O2 and Vodafone. Information provided by Ofcom, correct at August 2025.

OUTGOINGS

We are advised by East Devon District Council that the council tax band is E.

EPC: D

POSSESSION

Vacant possession on completion.

REF: DHS02560

VIEWING

Strictly by appointment with the agents.

IMPORTANT NOTICE

If you request a viewing of a property, we the Agent will require certain pieces of personal information from you in order to provide a professional service to both you and our clients. The personal information you provide may be shared with our client, but will not be passed to third parties without your consent. The Agent has not tested any apparatus, equipment, appliance, fixtures, fittings or services and so cannot verify that they are in working order, or fit for the purpose. A Buyer is advised to obtain verification from their solicitor and/or surveyor. References to the tenure/outgoings/charges of a property are based on information supplied by the seller - the Agent has not had sight of the title documents. A Buyer is advised to obtain verification from their solicitor. Items shown in photographs/floor plans are not included unless specifically mentioned within the sale particulars. They may be available by separate negotiation. Buyers must check the availability of any property and make an appointment to view before embarking on a journey to view a property.

Important Information

  • This is a Freehold property.

Property Ref: EAXML10088_12724842

Share:

Similar Properties

Bryer Cottage, Salcombe Regis, Sidmouth

2 Bedroom House | Asking Price £475,000

A most attractive and recently renovated semi-detached cottage, located in the heart of Salcombe Regis and with off road...

Ice House Lane, Sidmouth

2 Bedroom Detached Bungalow | Asking Price £475,000

*** SOLD BY HARRISON, LAVERS & POTBURYS *** A spacious two bedroom detached bungalow, occupying a convenient location wi...

Salcombe Road, Sidmouth

2 Bedroom End of Terrace House | Guide Price £475,000

An attractive, pre-war house offering comfortable, two bedroom accommodation with much potential, no chain and in a conv...

Newtown, Sidmouth

2 Bedroom Detached Bungalow | Asking Price £495,000

Situated on the edge of the town centre, a two bedroom detached bungalow with patio garden and garage.

Higher Woolbrook Park, Sidmouth

2 Bedroom Bungalow | Asking Price £495,000

A well-presented detached bungalow occupying a pleasant location and with fantastic hillside views.

Coburg Terrace, Sidmouth

2 Bedroom Not Specified | Asking Price £499,950

A Grade II* Listed, ground floor garden apartment situated in the heart of the town centre with two en suite bedrooms an...

Harrison-Lavers & Potburys Ltd (Sidmouth)

High Street, Sidmouth, Devon, EX10 8LD

01395 516633

How much is your home worth?

Use our short form to request a valuation of your property.

Request a Valuation

Mortgage Calculator

Amount Borrowed: £
Total Amount Repayable: £
Total Monthly Payment: £
©2026 The Guild of Property Professionals. All rights reserved. Terms and Conditions | Privacy Policy | Cookie Policy | Complaints Policy | Members Login
The Guild of Property Professionals Trading Address: 121 Park Lane, London W1K 7AG. GPEA Limited. Registered in England & Wales.  Company No: 02819824.  Registered Office Address: 2 St. Stephen's Court, St. Stephen's Road, Bournemouth, Dorset, England, BH2 6LA.  VAT Registration No: 576 8795 61
Book a Property Valuation Update Cookies Preferences