Sithney, Helston

Guide Price
£575,000

4 Bedroom Country House for sale in Sithney

2 4 2
  • VERSATILE HOME WITH INTERCONNECTING ONE-BEDROOM SELF-CONTAINED ANNEXE
  • PREVIOUSLY CONFIGURED AS A FOUR BEDROOM FAMILY HOME
  • PERFECT FOR MULTI-GENERATIONAL LIVING OR INCOME POTENTIAL
  • ENCLOSED GARDENS AND EXTENSIVE PARKING
  • SELF CONTAINED CHALET AND USEFUL WORKSHOP
  • APPROXIMATELY 3.5 ACRES OF LAND WITH RURAL AND TOWNSCAPE VIEWS
  • FREEHOLD
  • COUNCIL TAX D
  • EPC F25

The property is currently arranged as a two double bedroom home with an interconnecting cosy one-bedroom annexe, ideal for multi-generational living, guest accommodation or those seeking an income stream.

Previously a four-bedroom house, it could easily be reconfigured back into one substantial family home if desired. (subject to any necessary consents being obtained)

Inside, the property feels warm and welcoming, with plenty of natural light and character features including multiple log burners adding to the cosy atmosphere.

The gardens wrap around the property, offering private and secure areas perfect for families, pets and entertaining, while a useful workshop and store provide excellent space for hobbies or business use. There is also ample parking at the front of the property and a discreetly positioned chalet to the rear of the property.

The additional asset is the 3.5 acres of land which is accessed from the house with a shared lane. The land enjoys far-reaching countryside and distant Helston town views. This creates a wonderful sense of space and freedom to enjoy catching a morning sunrise.
Whether you're considering a smallholding, keeping animals, or simply want room for children to explore and enjoy the outdoors, the possibilities are endless.

This is far more than just a home - it's a chance to create a lifestyle, with space to grow, adapt and make your own.

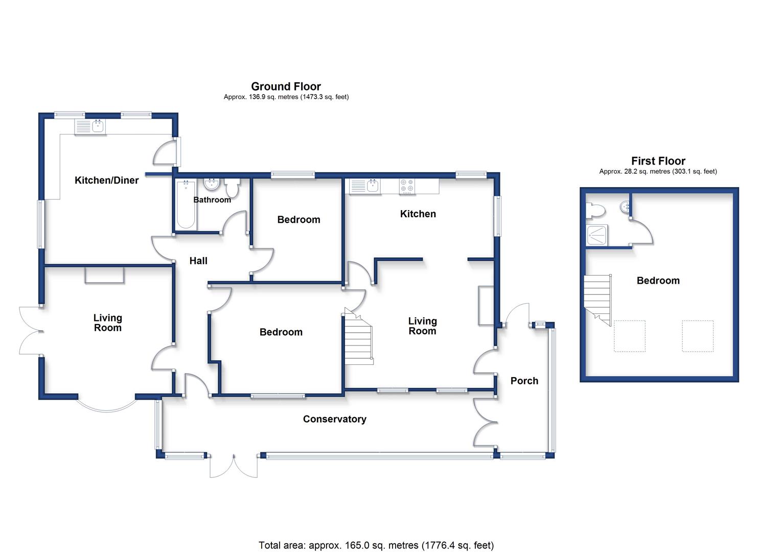
The Accommodation Comprises (Dimensions Approx) -

Door To -

Sun Room - 10.44m x 1.42m (34'3" x 4'8") - offering access to the utility/side porch and to the:

Hallway - With radiator and doors to various rooms.

Sitting Room - 4.06m x 4.06m (13'4" x 13'4") - A lovely cosy but light dual aspect room with Bow style window to front and patio doors to side accessing the garden. Log burner set on granite hearth and radiator.

Kitchen/Breakfast Room - 4.75m x 3.78m (15'7" x 12'5") - A dual aspect room with tiled floor, fitted with a range of base units with work surfaces over, space and point for fridge/freezer, space and plumbing for slimline dishwasher, Chef Master Level range oven featuring four ovens, five gas burners including a wok burner and a dual electric plate (available by separate negotiation), window to the side overlooking the garden and two windows to rear and door to the rear garden. Wall mounted Worcester gas boiler, space for table, larder style cupboard and log burner.

Bedroom One - 3.76m x 3.28m (12'4" x 10'9") - With window to rear and radiator.

Bedroom Two/Dining Room - 3.73m x 3.45m (12'3" x 11'4") - With windows to front, radiator and log burner. A versatile room currently being used by the present vendors as a bedroom but also ideal as a dining room/second reception room.

Bathroom - 2.36m x 1.83m (7'9" x 6' ) - With tiled floor and suite comprising of a bath with tiled surround and Mira Go electric shower over, pedestal wash hand basin, low level W.C., obscured window to rear and chrome effect ladder style radiator.

Utility/Side Porch - 4.04m x 1.83m (13'3" x 6') - A useful space with tiled floor, space and plumbing for washing machine, windows to front and side and connects to the front sun porch. Door to

Annexe Sitting Room - 4.72m x 4.11m (15'6" x 13'6") - A lovely cosy room with two windows to front, radiator, log burner set in stone surround, stairs rising to the first floor, connecting door to the bedroom/dining room in the main property and concertina doors and door to

Kitchen/Breakfast Room - 4.72m x 2.57m (15'6" x 8'5") - A bright dual aspect room with windows to side and rear fitted with base and wall units with work surfaces over and ceramic sink with mixer tap, space and point for gas oven, free standing butcher block style unit providing for additional storage and work surface space, space and point for under counter fridge freezer.

First Floor -

Bedroom - 5.18m x 4.75m(max measurements restricted head hei - With radiator, access to eaves storage, two velux style windows to front and door to

En Suite Shower Room - 1.65m x 1.35m (5'5" x 4'5") - With tiled floor, tiled cubicle housing Mira Jump electric shower, low level W.C., wash hand basin in vanity unit and velux style window.

Outside - To the front of the property is a large gravelled parking area offering off road parking for multiple vehicles. There are enclosed garden areas to the both the side and the rear of the property these are mostly laid to lawn with the garden to the side being particularly attractive and providing for a patio seating area and generous area of lawn. There are a variety of useful storage areas including a log store. To the rear of the property is a:

Workshop - 4.95m x 3.15m (16'3" x 10'4") - With work bench, power and light and windows to side and front. To the rear of the workshop is a

Utility/Store - 3.12mx 1.45m (10'3"x 4'9") - A useful storage area with power currently used by the present vendors as a freezer room.

Chalet - Sited in a separate area to the rear is a one bedroom chalet which we have not inspected internally. This enjoys its own separate garden area.

The Land - Extending to approximately 3.5 acres is a field offering good quality land with fantastic far reaching rural and townscape views suitable for a variety of uses. The current owners have created a produce area including a growing area and glass house area. There are also a variety of useful outbuildings, including a Shepherds hut which may be available by separate negotiation.

Services - Private drainage, septic tank, LPG gas fired central heating, mains water and electricity.

What3words - browsers.crawled.employers

Anti-Money Laundering - We are required by law to ask all purchasers for verified ID prior to instructing a sale

Council Tax - Council Tax Band D.

Date Details Prepared. - 17th February, 2026.

Mobile And Broadband - To check the broadband coverage for this property please visit -
https://www.openreach.com/fibre-broadband
To check the mobile phone coverage please visit -
https://checker.ofcom.org.uk/

Proof Of Finance - Purchasers - Prior to agreeing a sale, we will require proof of financial ability to purchase which will include an agreement in principle for a mortgage and/or proof of cash funds.

Property Ref: 34490497

Share:

Similar Properties

Parc Halligey, Coverack

3 Bedroom Detached Bungalow | Guide Price £575,000

An opportunity to purchase a detached, three bedroom dormer bungalow on the outskirts of the highly sought after and pic...

Sithney, Helston

4 Bedroom Country House | Guide Price £575,000

A Four-Bedroom Detached Farmhouse with Outbuildings Set in Approximately Six Acres.FIRST VIEWINGS TO BE CONDUCTED ON THE...

Releath, Camborne

4 Bedroom Country House | Guide Price £550,000

An opportunity to purchase a detached, four/five bedroom character property in a delightful rural setting with meadow, g...

St. Peters Way, Porthleven

3 Bedroom Detached House | Guide Price £595,000

An opportunity to purchase a detached, three-bedroom reverse level house in an elevated position, enjoying views over th...

Pengersick Croft, Praa Sands

3 Bedroom Detached Bungalow | Guide Price £595,000

Nestled within a sought after coastal location, this exceptional three bedroom detached residence, constructed in 2018 b...

Greenbank, Meneage Road, Helston

8 Bedroom Guest House | Guide Price £595,000

A truly substantial and beautifully maintained home offering exceptional space, flexibility and lifestyle appeal, perfec...

Christophers Estate Agents Porthleven (Porthleven)

Fore St, Porthleven, Cornwall, TR13 9HJ

01326 573737

How much is your home worth?

Use our short form to request a valuation of your property.

Request a Valuation

Mortgage Calculator

Amount Borrowed: £
Total Amount Repayable: £
Total Monthly Payment: £
©2026 The Guild of Property Professionals. All rights reserved. Terms and Conditions | Privacy Policy | Cookie Policy | Complaints Policy | Members Login
The Guild of Property Professionals Trading Address: 121 Park Lane, London W1K 7AG. GPEA Limited. Registered in England & Wales.  Company No: 02819824.  Registered Office Address: 2 St. Stephen's Court, St. Stephen's Road, Bournemouth, Dorset, England, BH2 6LA.  VAT Registration No: 576 8795 61
Book a Property Valuation Update Cookies Preferences