Forge Lane, Upchurch, Sittingbourne, ME9

Offers Over
£290,000

3 Bedroom Semi-Detached House for sale in Sittingbourne

2 3 2
  • Three Bedroom Semi-Detached
  • No Chain
  • Upchurch Village
  • Character Features
  • Local Amenities & Schools
  • Ensuite & Downstairs Bathroom
  • Driveway & Garage
  • Cash Buyers Only

*Investment opportunity. Cash Buyers Only!*

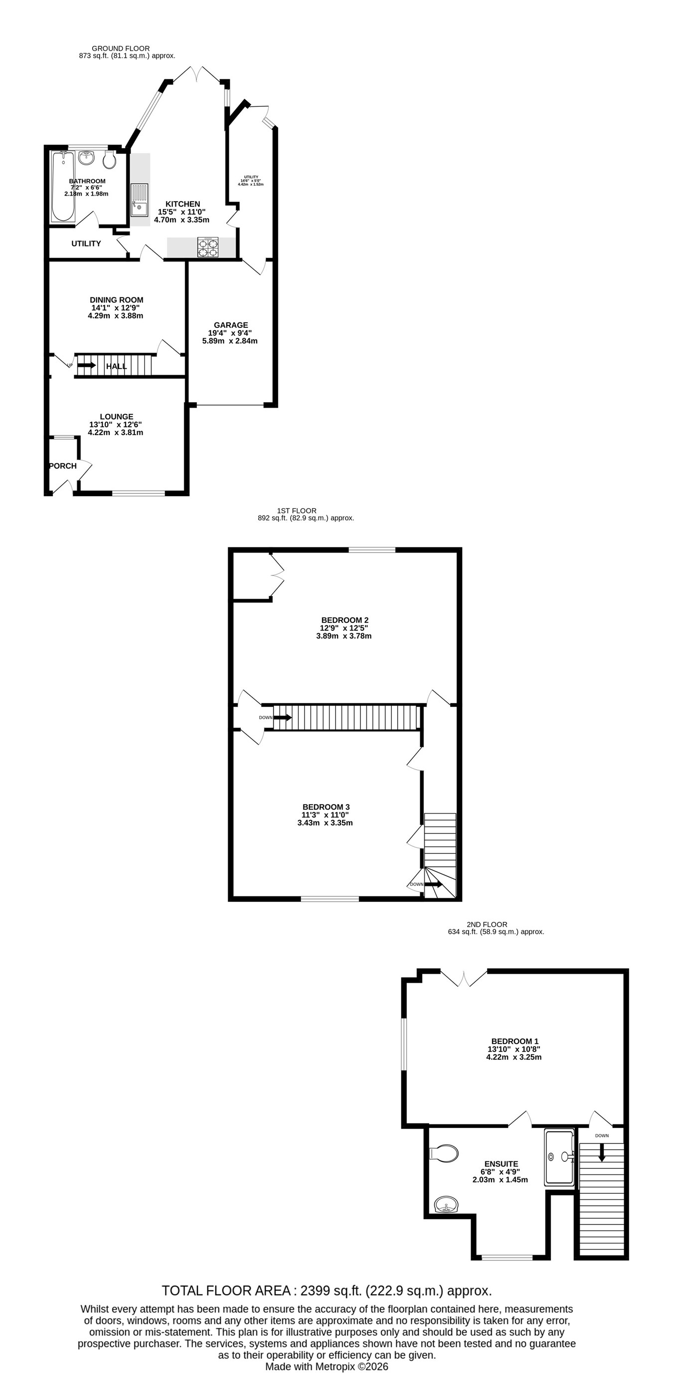
A wealth of character and situated in the popular village of Upchurch. Easy reach for Rainham & A2 road links. Deceptively spacious, this property has so much potential to create a beautiful family home laid out over 3 floors. Accommodation comprises: entrance porch leading into the lounge with sash window to the front and feature fireplace, stairs to first floor. The separate dining room has a brick built fireplace and hearth with door to the pitched roof conservatory which has been utilised as a kitchen/utility space. There is an internal door into the garage which has power, light and a tap. The boiler is also located in the garage. There is a bathroom with bath to the ground floor. Moving up to the first floor, there are two double bedrooms both with character and fireplace. The rear bedroom boasting distant views of orchard and estuary. From this bedroom is a concealed staircase to the top floor where the premier bedroom is found, a spacious room with door to an ensuite with shower cubicle and views from the velux style window. The rear garden is in natural state. To the front is a driveway and garage. Upchurch is a lovely village with community spirt, cricket club and a short stroll to local school and shops.

**Agent note: cash buyers only as kitchen/utility has been moved into the conservatory area and not suitable for mortgage purposes.**

Being Sold via Secure Sale online bidding. Terms & Conditions apply. Starting Bid £290,000

Pattinson Auction are working in Partnership with the marketing agent on this online auction sale and are referred to below as 'The Auctioneer'

The property is available to be viewed strictly by appointment only via the Marketing Agent or The Auctioneer. Bids can be made via the Marketing Agents or via The Auctioneers website.

Please be aware that any enquiry, bid or viewing of the subject property will require your details being shared between both any marketing agent and The Auctioneer in order that all matters can be dealt with effectively.

The property is being sold via a transparent online auction.

In order to submit a bid upon any property being marketed by The Auctioneer, all bidders/buyers will be required to adhere to a verification of identity process in accordance with Anti Money Laundering procedures. Bids can be submitted at any time and from anywhere.

Our verification process is in place to ensure that AML procedure are carried out in accordance with the law.

The advertised price is commonly referred to as a ‘Starting Bid’ or ‘Guide Price’, and is accompanied by a ‘Reserve Price’. The ‘Reserve Price’ is confidential to the seller and the auctioneer and will typically be within a range above or below 10% of the ‘Guide Price’ / ‘Starting Bid’Ground Floor

Kitchen
15' 5" x 11' 0" (4.70m x 3.35m)

Utility Room
14' 6" x 5' 0" (4.42m x 1.52m)

Dining Room
14' 1" x 11' 1" (4.29m x 3.38m)

Lounge
13' 10" x 12' 6" (4.22m x 3.81m)

Bathroom
7' 2" x 6' 6" (2.18m x 1.98m)

First Floor

Bedroom 2
12' 9" x 12' 5" (3.89m x 3.78m)

Bedroom 3
11' 3" x 11' 0" (3.43m x 3.35m)

Second Floor

Bedroom 1
13' 10" x 10' 8" (4.22m x 3.25m)

Ensuite
6' 8" x 4' 9" (2.03m x 1.45m)

External

Garage
19' 4" x 9' 4" (5.89m x 2.84m)

Important Information

  • This is a Freehold property.

Property Ref: 30103487

Share:

Similar Properties

Windsor Road, Gillingham, ME7

3 Bedroom Terraced House | Offers in region of £290,000

A well-presented and recently renovated three-bedroom mid-terrace home, ideally situated in the heart of Gillingham, jus...

Hanway, Rainham, Gillingham, ME8

3 Bedroom End of Terrace House | Guide Price £290,000

**Guide Price £290,000-£310,000** Three-bedroom end of terrace home situated on a generous corner plot, offering excelle...

High Dewar Road, Rainham, Gillingham, ME8

3 Bedroom Terraced House | Offers in excess of £290,000

Charming 3-Bedroom Victorian Mid-Terrace Popular Residential Road in RainhamNestled on a sought-after residential street...

Sutherland Gardens, Rainham, Gillingham, ME8

3 Bedroom End of Terrace House | Guide Price £300,000

**Guide Price £300,000-£325,000** Well-presented three-bedroom end-of-terrace family home with garage, situated in a pop...

Sturry Way, Twydall, Gillingham, ME8

3 Bedroom Semi-Detached House | Offers in region of £300,000

Situated in the ever-popular Twydall area, this three-bedroom semi-detached home offers an excellent opportunity for buy...

Second Avenue, Gillingham, ME7

3 Bedroom End of Terrace House | Guide Price £300,000

**Guide Price £300,000-£325,000** Offered with no onward chain and situated on a popular road in Upper Gillingham, this...

Greyfox Sales & Lettings (Rainham)

High Street, Rainham, Kent, ME8 7HS

01634 377737

How much is your home worth?

Use our short form to request a valuation of your property.

Request a Valuation

Mortgage Calculator

Amount Borrowed: £
Total Amount Repayable: £
Total Monthly Payment: £
©2026 The Guild of Property Professionals. All rights reserved. Terms and Conditions | Privacy Policy | Cookie Policy | Complaints Policy | Members Login
The Guild of Property Professionals Trading Address: 121 Park Lane, London W1K 7AG. GPEA Limited. Registered in England & Wales.  Company No: 02819824.  Registered Office Address: 2 St. Stephen's Court, St. Stephen's Road, Bournemouth, Dorset, England, BH2 6LA.  VAT Registration No: 576 8795 61
Book a Property Valuation Update Cookies Preferences