Hanning Road, Horton, Somerset, TA19

£375,000
SSTC
This property listing is now SSTC

3 Bedroom Detached House for sale in Somerset

3 3 1

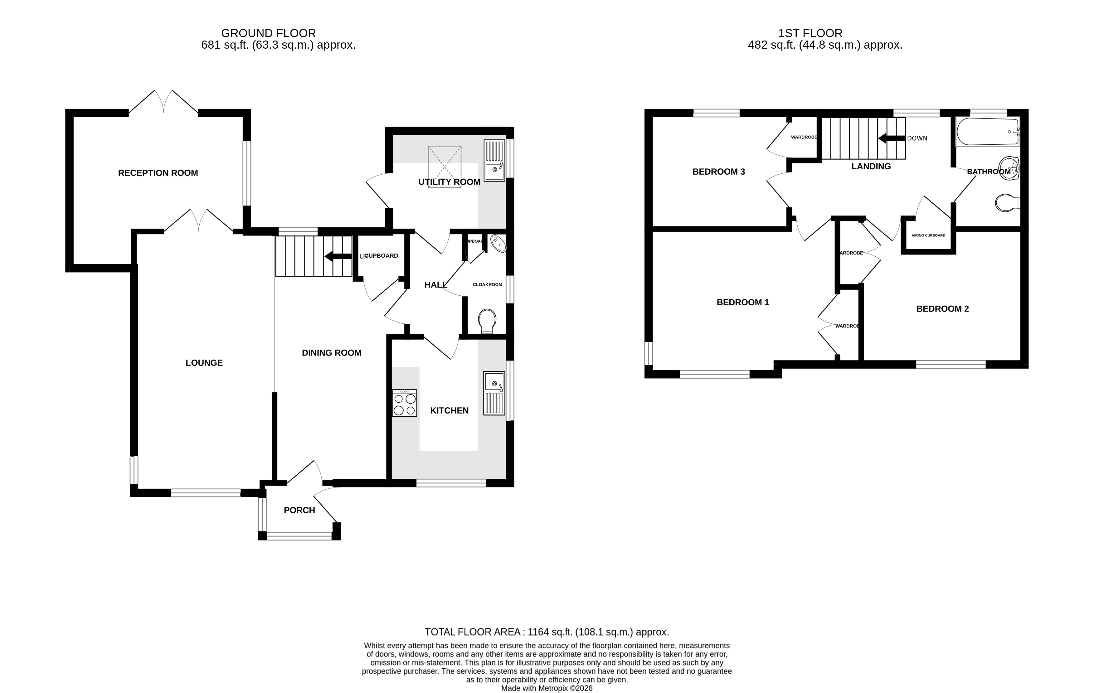
Coming to the market for the very first time, this much-loved three bedroom village home has been carefully maintained by the same family for many years and is presented in excellent order throughout. Offering well balanced and flexible accommodation, the property enjoys a pleasant central village location within easy walking distance of local amenities.The ground floor provides a welcoming and versatile living space. A former garage was converted many years ago and now offers a second reception room, creating an ideal family room, playroom or home office, with double doors opening directly onto the rear garden. The main lounge is particularly attractive, enjoying a triple aspect which fills the room with natural light. It features a stylish electric flame-effect fire and a wide opening through to a dining area, which in turn provides access to the entrance porch.The kitchen is a bright dual aspect room fitted with a range of units providing ample storage and generous worktop space. Integrated appliances include a dishwasher along with an oven and grill, with additional space for a fridge freezer. To the rear of the property, a utility room extension offers further practicality and character with its attractive vaulted ceiling. This space includes a selection of wall and base units, additional appliance space and a uPVC door leading out to the rear garden.On the first floor there are two generous double bedrooms, both benefitting from fitted wardrobes, along with a third single bedroom. These rooms are served by a family bathroom.Outside, the property is approached via a gated driveway providing ample off-street parking and access to a detached garage. Behind the garage there is a private paved seating area, ideal for entertaining or relaxing outdoors, which leads through to a further paved terrace overlooking the rear garden. The garden itself is mainly laid to lawn and also includes a productive vegetable garden.The property is conveniently situated in the heart of the village, within walking distance of the popular Five Dials pub and restaurant as well as the village shop and post office. It is also ideally placed for commuters, with easy access to the A30, A303 and A358 connecting to nearby larger towns.Further benefits include electric night storage heating and double glazing throughout.

Tenure: Freehold
Council Tax Band: D
EPC Rating: TBC

Accommodation comprises: Entrance porch, dining room opening through to lounge, second reception room, kitchen, utility room, cloakroom, three bedrooms and bathroom.

Entrance Porch    uPVC main entrance door into entrance porch. Two double glazed windows to the front and side aspects. Coat hanging space and wooden glazed door into dining room.

Dining Room 13'9" x 8'1" (4.2m x 2.46m). Telephone point, electric night storage heater, understairs storage cupboard. Door to kitchen and opening through to lounge.

Lounge 17'11" x 9'11" (5.46m x 3.02m). Triple aspect room with double glazed windows to the front, side and rear. Feature fireplace with inset electric flame effect fireplace. Two electric night storage heaters, television point. Stairs rising to first floor. Wooden glazed double doors out to second reception room.

Second Reception Room 12'8" (3.85m) x 8'4" (2.55m) widening to 10'11" (3.34m). Formerly a garage that was converted to additional living space many years ago creating a lovely flexible room currently used as a dining area and office. Double glazed window to the side aspect and uPVC double doors opening out on to the garden.

Inner Hall    Doors to kitchen, cloakroom and utility room.

Kitchen 10'4" x 8'7" (3.15m x 2.62m). Fitted with a selection of wall and base units set eneath worktops with inset sink and drainer. Integrated dishwasher, integrated oven and grill with electric hob and hood over. Space for fridge freezer. Dual aspect room with windows to the front and side.

Cloakroom    Fitted with a two-piece suite comprising corner wall mounted wash hand basin and low-level W.C. Fitted cupboard with shelving. Opaque double glazed window to the side aspect.

Utility Room 8'1" x 7'2" (2.46m x 2.18m). Fitted with wall and base units set beneath worktops with inset sink and drainer. Space and plumbing for washing machine. Skylight, double glazed window to the side aspect and uPVC door out to rear garden. Extractor.

First Floor Landing    Built-in airing cupboard housing tank and shelving. Double glazed window to the side aspect and doors to all principal rooms.

Bedroom One 13'11" (4.25m) x 9'11" (3.03m) excluding wardrobe. A lovely spacious dual aspect room with double glazed windows to the front and side aspects. Built-in double wardrobe.

Bedroom Two 11'6" (3.50m) x 8' (2.44m) widening to 10' (3.06m) excluding wardrobes. Built-in double wardrobe, electric heater and double glazed window to the front aspect.

Bedroom Three 10'2" (3.10m) x 7'5" (2.26m) excluding wardrobe. Fitted wardrobe overstairs and double glazed window to the rear aspect.

Bathroom    Fitted with a three-piece suite comprising panelled bath with electric shower and screen over, inset wash hand basin with vanity unit under, low-level W.C. Extractor, tiled splashbacks, electric heated towel rail and opaque double glazed window to the rear aspect.

Outside    The front of the property is approached via a double gate driveway providing ample off street parking whilst giving access to the detached garage. A lawned garden is enclosed with a selection of mature hedging, planting and trees providing a great degree of privacy. A paved pathway leads to a wooden side gate through to an additional side garden that is laid to low maintenace fully paved creating a wonderful secluded seating area. A pathway continues around the rear of the property to a further paved seating area leading through to the rear garden. The rear garden enkoying a Southerly aspect is made up of a lawn area leading to vegetable patch. At the rear of the garden is a storage shed and a paved storage area. The whole is enclosed by a mixture of mature hedging and fencing.

Detached Garage 15'7" x 11' (4.75m x 3.35m). Up and over door, light, power and personal door out to side aspect.

Property Information    Services
Mains electric, water and drainage.

Broadband and Mobile Coverage
Ultrafast Broadband is available in this area and mobile signal should be available indoors from two major providers and outdoors from all four major providers. Information supplied by ofcom.org.uk

Important Information

  • This is a Freehold property.

Property Ref: PFE250295

Share:

Similar Properties

Cook Avenue, Chard, Somerset, TA20

4 Bedroom Detached House | £375,000

A beautifully presented four bedroom detached property with good size garden situated on the popular Lordleaze developme...

Wambrook Place, Chard, Somerset, TA20

3 Bedroom Detached House | £365,000

A extremely well presented three bedroom detached modern home with garage, gardens and parking situated within the popul...

Dening Close, Chard, Somerset, TA20

3 Bedroom Detached House | £365,000

Tucked away within the popular residential cul-de-sac of Dening Close, this beautifully presented three-bedroom detached...

Church Street, Winsham, Somerset, TA20

3 Bedroom Terraced House | £380,000

Set in a peaceful village location, this delightful Grade II listed property offers a rare opportunity to own a home in...

Furnham Crescent,, Chard, Somerset, TA20

3 Bedroom Detached Bungalow | Offers Over £385,000

We are delighted to present this beautifully updated three bedroom detached bungalow situated in the popular residential...

Touchstone Lane, Chard, Somerset, TA20

4 Bedroom Semi-Detached House | Offers Over £400,000

Situated in the highly favourable residential location of Touchstone Lane, Chard, this attractive four-bedroom semi-deta...

Paul Fenton Estate Agents (Chard)

34 Fore Street, Chard, Somerset, TA20 1PT

01460 68222

How much is your home worth?

Use our short form to request a valuation of your property.

Request a Valuation

Mortgage Calculator

Amount Borrowed: £
Total Amount Repayable: £
Total Monthly Payment: £
©2026 The Guild of Property Professionals. All rights reserved. Terms and Conditions | Privacy Policy | Cookie Policy | Complaints Policy | Members Login
The Guild of Property Professionals Trading Address: 121 Park Lane, London W1K 7AG. GPEA Limited. Registered in England & Wales.  Company No: 02819824.  Registered Office Address: 2 St. Stephen's Court, St. Stephen's Road, Bournemouth, Dorset, England, BH2 6LA.  VAT Registration No: 576 8795 61
Book a Property Valuation Update Cookies Preferences