Phelps Close, Chard, Somerset, TA20

£180,000

2 Bedroom Terraced House for sale in Somerset

1 2 1

Paul fenton estate agents offers to the market this two-bedroom mid-terrace house ideal for first-time buyers, small families, or those looking to downsize in the popular location of Glynswood. NO ONWARD CHAIN.

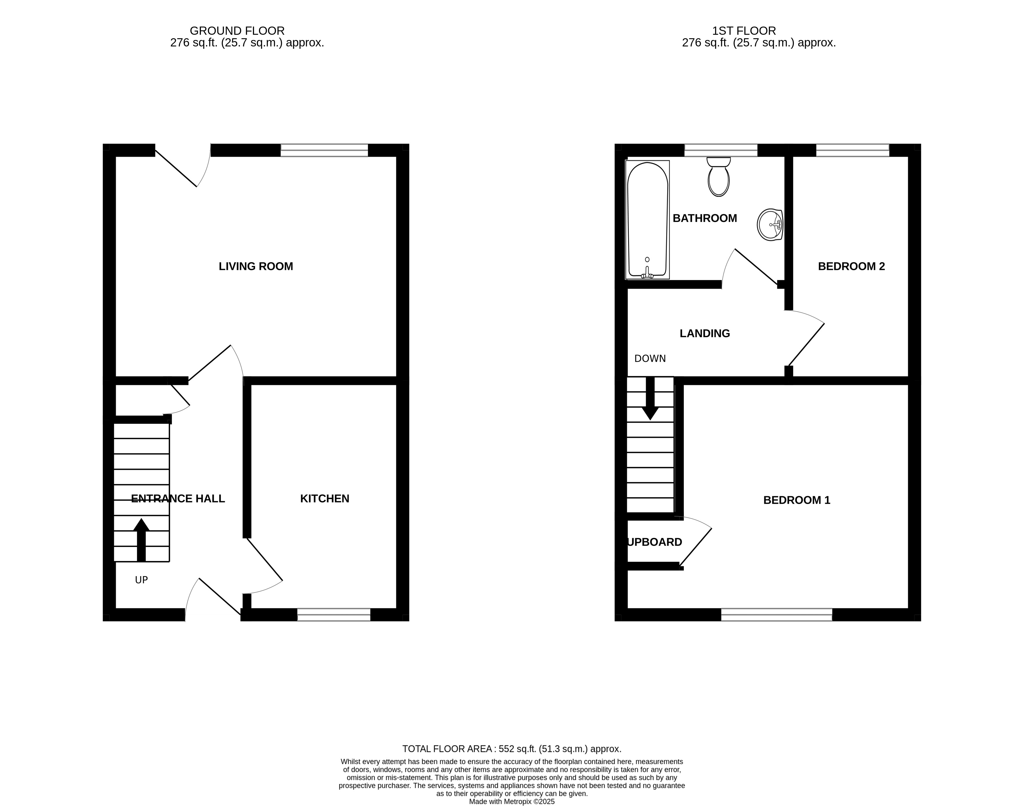
Accommodation comprises of Entrance hallway, fitted kitchen and lounge with door giving access to the rear garden. Upstairs the property boasts two bedrooms and family bathroom.

To the rear, an enclosed garden provides a lovely outdoor retreat, with a patio area for seating and a lawn for play or planting. The property also benefits from off-road parking for two vehicles ensuring convenience for residents and visitors alike.

uPVC double glazing and gas central heating

Tenure: Freehold
Council Tax Band: B
EPC Rating: C

Entrance Hallway    Front entrance door, radiator, under stairs storage cupboard and stairs rising to first floor.

Lounge 13'3" x 10'4" (4.04m x 3.15m). uPVC double glazed window to the rear aspect, radiator and uPVC double glazed door giving access to the rear garden.

Kitchen 9'5" x 7'1" (2.87m x 2.16m). Fitted with a range of matching wall and base units with adjoining work top preparation surface with inset stainless steel sink and drainer with mixer tap over complemented by tiled splash backs. Appliance spaces for cooker with cooker hood over, washing machine and fridge/freezer. uPVC double glazed window to the front aspect.

First Floor Landing    Loft access.

Bedroom One 12' x 10'10" (3.66m x 3.3m). uPVC double glazed window, radiator and built in storage cupboard.

Bedroom Two 9'1" x 7' (2.77m x 2.13m). uPVC double glazed window and radiator.

Bathroom    Benefiting a three piece suite consisting of panelled bath with mains shower over, low level W.C, was hand basin with storage below, heated towel rail and uPVC double glazed window.

Outside    Outside storage area to the front of the property with storm canopy over. Driveway to the front of the property laid to tarmac with a small area of low level hedging. The rear garden is enclosed with a patio area and mainly laid to lawn with shed and gate giving access to the rear. There is an additional parking space to the front that also belongs to the property.

Property Information    Services
Mains gas, water, electric and drainage.

Broadband and mobile coverage
Ultrafast Broadband is available in this area and mobile signal should be available from all four major providers outdoors and one major provider indoors. Information supplied by ofcom.org.uk



Important Information

  • This is a Freehold property.

Property Ref: 131978_PFE250207

Share:

Similar Properties

Ashfield Terrace, Forton Road, Chard, Somerset, TA20

3 Bedroom Terraced House | £180,000

A charming three-bedroom Period property offering fantastic potential and sold with no onward chain.This characterful ho...

Henson Park, Chard, Somerset, TA20

3 Bedroom Terraced House | £180,000

Well-Presented Three-Bedroom Mid-Terraced Home with GardenThis well-maintained three-bedroom mid-terraced property offer...

Crib Close, Chard, Somerset, TA20

2 Bedroom Terraced House | £180,000

A two bedroom mid terrace property with garden and parking situated on the popular Glynswood development. The property w...

Copse Lane, Ilton, Ilminster, Somerset, TA19

2 Bedroom Terraced House | £182,500

Modern Two-Bedroom Terraced Starter Home in Village LocationSituated in a pleasant village setting, this modern two-bedr...

Crimchard, Chard, Somerset, TA20

2 Bedroom End of Terrace House | £185,000

This charming Grade II listed end-terrace character cottage offers an inviting blend of period appeal and modern comfort...

Thorndun Park Drive, Chard, Somerset, TA20

2 Bedroom End of Terrace House | £185,000

Situated on the ever-popular Glynswood development, this two-bedroom end-of-terrace home is offered to the market with n...

Paul Fenton Estate Agents (Chard)

34 Fore Street, Chard, Somerset, TA20 1PT

01460 68222

How much is your home worth?

Use our short form to request a valuation of your property.

Request a Valuation

Mortgage Calculator

Amount Borrowed: £
Total Amount Repayable: £
Total Monthly Payment: £
©2026 The Guild of Property Professionals. All rights reserved. Terms and Conditions | Privacy Policy | Cookie Policy | Complaints Policy | Members Login
The Guild of Property Professionals Trading Address: 121 Park Lane, London W1K 7AG. GPEA Limited. Registered in England & Wales.  Company No: 02819824.  Registered Office Address: 2 St. Stephen's Court, St. Stephen's Road, Bournemouth, Dorset, England, BH2 6LA.  VAT Registration No: 576 8795 61
Book a Property Valuation Update Cookies Preferences