Chesterfield, Chard, Somerset, TA20

£260,000

3 Bedroom Semi-Detached House for sale in Somerset

1 3 1

Spacious Three-Bedroom Semi-Detached Home with Generous Gardens and Development Potential, Sold with NO ONWARD CHAIN.

Situated in a convenient and well-established location within easy reach of supermarkets, a convenience store, and the local cottage hospital, this well-presented three-bedroom semi-detached property offers a fantastic opportunity for families or professionals seeking space, comfort, and further potential.

The property is in good condition throughout and boasts a thoughtfully designed layout, featuring a spacious fitted kitchen/diner complete with ample storage and workspace. Double doors open out onto a generous patio area, ideal for entertaining, and overlooking the well-maintained rear garden. Adjoining the kitchen is a useful utility room, walk-in pantry, and a convenient downstairs W.C.

The welcoming main lounge enjoys plenty of natural light and is centred around an attractive fireplace with open fire, creating a cosy focal point.

Upstairs, the accommodation comprises:

A spacious main bedroom, a second double bedroom with a built-in cupboard, a third single bedroom, also with integrated storage.

A modern family bathroom with a fitted three-piece suite and additional storage cupboard

Outside, the property is set back behind an enclosed front garden with mature planting. The large rear garden is a key feature, offering a patio seating area, a lawn bordered by flowerbeds with a wide variety of mature shrubs and plants, and a block-built outbuilding plus a wooden storage shed, both offering excellent storage or workspace options.

A private driveway provides off-street parking, and the property also offers excellent scope for extension or development to the side, subject to the necessary planning consents.

Tenure: Freehold
Council Tax Band: B
EPC Rating: D

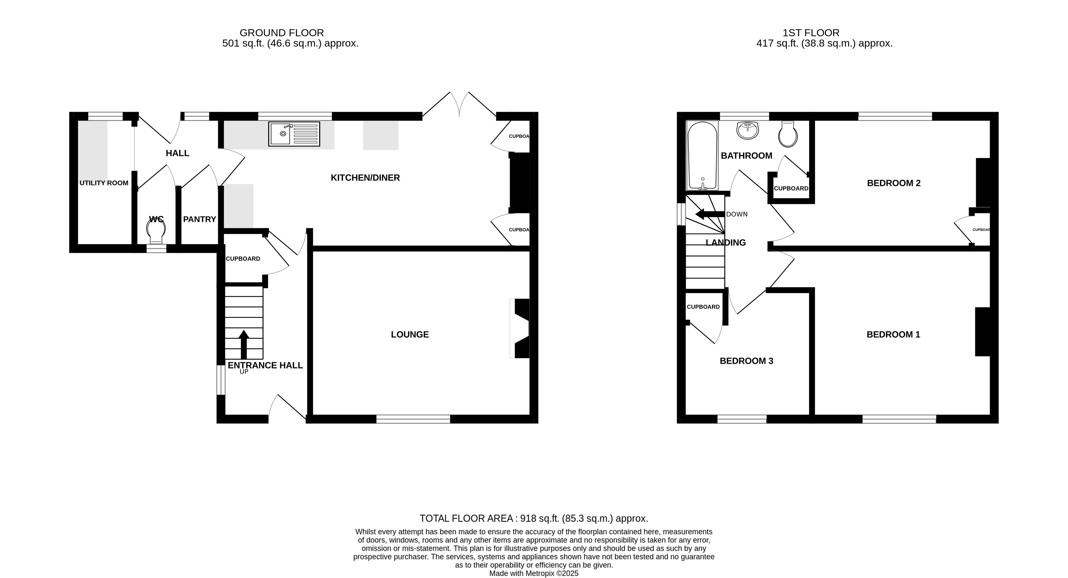
Accommodation comprises: Entrance hall, lounge, kitchen/diner, rear hall, utility, W.C, pantry, three bedrooms and bathroom.

Entrance Hall    uPVC main entrance door into entrance hall. Stairs rising to first floor, understairs storage cupboard, radiator and double glazed window to the rear aspect. Doors to all principal rooms.

Lounge 15' x 11'5" (4.57m x 3.48m). Attractive fireplace with open fire, radiator, television point and double glazed window to the front aspect.

Kitchen 20'1" (6.13m) x 7'7" (2.31m) widening to 8'11" (2.71m). Fitted with a selection of base units set beneath worktops with inset sink and drainer with wooden panelled splashbacks. Space for cooker and space for fridge freezer.
Fitted storage cupboard with wall mounted central heating boiler, further fitted storage cupboard. Radiator, double glazed window to the rear aspect and double glazed double doors opening onto rear patio. Door to rear hall.

Rear Hall    Coat hanging space. uPVC door and window out to rear garden. Opening to utility area and doors to W.C and pantry.

Utility Area 9' x 4'2" (2.74m x 1.27m). Fitted with base units set beneath worktops. Space and plumbing for washing machine, further storage space and double glazed window to the rear aspect.

W.C.    Low-level W.C and double glazed window to the front aspect.

Larder    Fitted with a selection of shelving.

First Floor Landing    Access to roof void with fitted loft ladder. Double glazed window to the side aspect. Doors to all principle rooms.

Bedroom One 12'1" x 11'5" (3.68m x 3.48m). Radiator and double glazed window to front aspect.

Bedroom Two 10'9" (3.28m) x 8'11" (2.71m) excluding cupboard. Fitted storage cupboard, radiator and double glazed window to the rear aspect.

Bedroom Three 8'6" (2.59m) narrowing to 6'8" (2.02m) x 8'11" (2.72m). Radiator, double glazed window to the front aspect and fitted storage cupboard over stairs.

Bathroom    Fitted with a three-piece white suite comprising panelled bath with shower attachment and screen over, low-level W.C and pedestal wash hand basin. Tiled splash backs, heated towel rail, fitted storage cupboard and opaque double glazed window to the rear aspect.

Front    The front garden is enclosed by low-level walling with opening giving access to the driveway providing off street parking. The front garden is mainly laid to lawn enclosed by mature planting.

Rear    The rear garden is made up of a generous patio area providing ample space for dining and entertaining with step down to an area laid to lawn enclosed by a selection of flower beds housing mature planting and trees. A further area laid to stone chippings provide access to a block built out building, situated behind the outbuilding is an additional wooden storage shed.

Property Information    Services
Mains gas, electric, water & drainage.

Broadband and Mobile Coverage
Ultrafast Broadband is available in this area and mobile signal should be available outdoors from all four major providers and limited access indoors from all four major providers. Information supplied by ofcom.org.uk



Important Information

  • This is a Freehold property.

Property Ref: 131978_PFE250256

Share:

Similar Properties

Park Terrace, Chard, Somerset, TA20

3 Bedroom Terraced House | £260,000

Charming Three-Bedroom Period Terraced Home with Elevated Position, Long Garden & Detached GarageOccupying a delightful...

Bampton Avenue, Chard, Somerset, TA20

3 Bedroom Link Detached House | £260,000

A smart three bedroom link detached property tucked away in a cul-de-sac location set within the Redstart School catchme...

Bampton Avenue, Chard, Somerset, TA20

3 Bedroom Link Detached House | £260,000

A three bedroom link detached three bedroom property with large conservatory, garage and off street parking.The property...

Park Terrace, Chard, Somerset, TA20

3 Bedroom Terraced House | £265,000

An attractive three bedroom period property with attic room and a beautiful enclosed rear garden with double garage. The...

Adams Meadow, Ilminster,, Somerset,, TA19

3 Bedroom Semi-Detached House | £265,000

A Very Well Presented Modern Three-Bedroom Semi-Detached Home with Garage & Driveway ParkingNestled in a desirable resid...

Thatch Cottages, Western Way, Winsham, Somerset, TA20

2 Bedroom Terraced House | £265,000

A charming Grade II listed two double bedroom character thatched cottage set within the heart of the popular South Somer...

Paul Fenton Estate Agents (Chard)

34 Fore Street, Chard, Somerset, TA20 1PT

01460 68222

How much is your home worth?

Use our short form to request a valuation of your property.

Request a Valuation

Mortgage Calculator

Amount Borrowed: £
Total Amount Repayable: £
Total Monthly Payment: £
©2025 The Guild of Property Professionals. All rights reserved. Terms and Conditions | Privacy Policy | Cookie Policy | Complaints Policy | Members Login
The Guild of Property Professionals Trading Address: 121 Park Lane, London W1K 7AG. GPEA Limited. Registered in England & Wales.  Company No: 02819824.  Registered Office Address: 2 St. Stephen's Court, St. Stephen's Road, Bournemouth, Dorset, England, BH2 6LA.  VAT Registration No: 576 8795 61
Book a Property Valuation Update Cookies Preferences