Bews Lane, Chard, Somerset, TA20

Guide Price
£400,000

3 Bedroom Detached House for sale in Somerset

3 3 1

An attractive Detached three bedroom Older style property boasting a large garden, garage and off street parking. This family home is well presented throughout, tucked away along a private road servicing only a handful and offers scope to extend subject to the necessary consents.

The rear garden is of particular note, a great size with a high degree of privacy, made up of a large patio seating area leading onto a long lawned garden enclosed by mature planting and trees.

To the ground floor are three reception rooms that provide versatile accommodation currently setup as living room, snug and an office.

A spacious kitchen/diner comes fitted with a vast selection of 'shaker style' units and integrated appliances.

To the first floor are three bedrooms and a family bathroom.

A concrete driveway at the front provides off street parking for several vehicles whilst giving access to the garage.

Modern uPVC double glazed Sash Windows and gas central heating.

Tenure: Freehold
Council Tax Band: E
EPC Rating: D

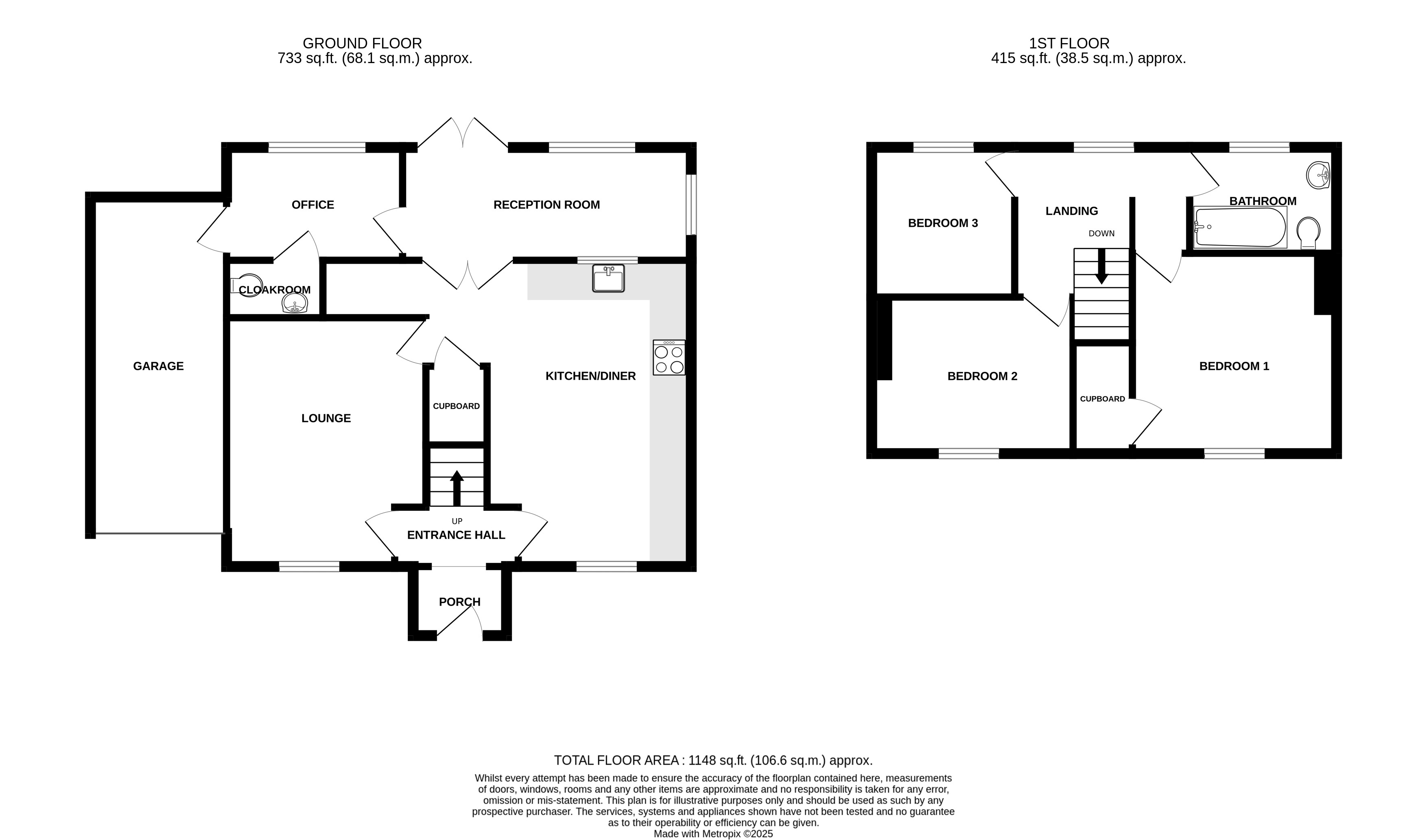
Accommodation comprises: Entrance porch, entrance hall, lounge, kitchen/diner, snug, office, cloakroom, three bedrooms and bathroom.

Entrance Porch    uPVC opaque double glazed main entrance door into entrance porch. Coat hanging space and opening through to entrance hall.

Entrance Hall    Stairs rising to first door. Doors to lounge and kitchen.

Lounge 13'3" (4.04m) x 11'1" (3.39m) narrowing to 9'1" (2.78m). Television aerial, radiator, wooden flooring and double glazed Sash window to the front aspect. Doors to entrance hall and kitchen.

Kitchen/Diner 16'8" (5.08m) x 11'1" (3.38m) widening to 14'5" (4.40m). Fitted with a vast selection of 'shaker style' wall and base units set beneath solid wooden worktops with inset ceramic sink. Integrated fridge, dishwasher and elevated oven. Inset Induction hob with hood over. Radiator, understairs storage cupboard, wooden single glazed window to rear aspect. uPVC double glazed Sash window to front aspect. Alcove recess fitted with shelving. Wooden door out to Snug.

Snug 16' x 6'1" (4.88m x 1.85m). Radiator, double glazed windows to the rear and side aspects. uPVC double doors out to rear garden. Door to Office.

Office 9'7" x 6'2" (2.92m x 1.88m). Radiator, tiled flooring, double glazed window to the rear aspect. Doors to cloakroom and garage.

Cloakroom    Fitted with a two-piece suite comprising low-level W.C and wall mounted wash hand basin. Fully tiled.

Garage 18'4" x 7'4" (5.6m x 2.24m). Up and over door, light, power. Wall mounted central heating boiler. Single glazed window to the rear aspect. Space and plumbing for washing machine and tumble dryer.

First Floor Landing    Access to roof void, uPVC double glazed window to the rear aspect. Doors to all principle rooms.

Bedroom One 11'1" (3.37m) x 10'11" (3.34m) into recess. Antique feature fireplace, radiator, built-in wardrobe with uPVC double glazed Sash window and shelving. uPVC double glazed Sash window to the front aspect.

Bedroom Two 11'2" (3.40m) x 8'4" (2.53m) into recess. Radiator and uPVC double glazed Sash window to the front aspect.

Bedroom Three 7'7" x 7'3" (2.3m x 2.2m). Radiator and uPVC double glazed Sash window to the rear aspect.

Bathroom    Fitted with a three-piece suite comprising panelled bath with screen and shower attachment over, low-level W.C and inset wash hand basin with vanity unit under. Radiator, shaving point and opaque uPVC double glazed window to the rear aspect.

Front    The front of the property is mainly laid to a large driveway providing off street parking whilst giving access to the garage and main entrance door. A further area is laid to lawn with a mature tree. A wooden gate to the side leads through to the rear garden.

Rear    The large rear garden is made up of a spacious patio area with steps up to the lawn. A long and wide lawn features flower borders to both sides housing mature plants, shrubs and mature trees. The whole garden is enclosed by wooden fencing.

Property Information    Services
Mains water, electric and gas. Private septic tank drainage.

Broadband and Mobile Coverage
Superfast Broadband is available in this area and mobile signal should be available outdoors from all four major providers and limited access indoors from three major providers. Information supplied by ofcom.org.uk

Important Information

  • This is a Freehold property.

Property Ref: PFE210259

Share:

Similar Properties

Lyddons Mead, Chard, Somerset, TA20

5 Bedroom Semi-Detached House | £400,000

An Impressive Five-Bedroom Semi-Detached Period Home with Three Reception Rooms, Garage, and Generous Garden in a Sought...

Touchstone Lane, Chard, Somerset, TA20

4 Bedroom Semi-Detached House | Offers Over £400,000

Situated in the highly favourable residential location of Touchstone Lane, Chard, this attractive four-bedroom semi-deta...

Furnham Crescent,, Chard, Somerset, TA20

3 Bedroom Detached Bungalow | Offers Over £385,000

We are delighted to present this beautifully updated three bedroom detached bungalow situated in the popular residential...

Bewley Court, Chard, Somerset, TA20

4 Bedroom Detached House | £420,000

Situated in a sought after location this four bedroom extended detached family home offers versatile accommodation throu...

Langdons Way, Tatworth, Chard, Somerset, TA20

4 Bedroom Detached House | £420,000

Spacious Three-Storey Modern Home with Double Garage in Desirable Village Setting ? Requiring Cosmetic UpdatingSituated...

Rectory Gardens, Combe St Nicholas, Somerset, TA20

4 Bedroom Detached House | £435,000

A spacious and well-maintained four-bedroom detached home situated in a peaceful cul-de-sac in the highly regarded villa...

Paul Fenton Estate Agents (Chard)

34 Fore Street, Chard, Somerset, TA20 1PT

01460 68222

How much is your home worth?

Use our short form to request a valuation of your property.

Request a Valuation

Mortgage Calculator

Amount Borrowed: £
Total Amount Repayable: £
Total Monthly Payment: £
©2026 The Guild of Property Professionals. All rights reserved. Terms and Conditions | Privacy Policy | Cookie Policy | Complaints Policy | Members Login
The Guild of Property Professionals Trading Address: 121 Park Lane, London W1K 7AG. GPEA Limited. Registered in England & Wales.  Company No: 02819824.  Registered Office Address: 2 St. Stephen's Court, St. Stephen's Road, Bournemouth, Dorset, England, BH2 6LA.  VAT Registration No: 576 8795 61
Book a Property Valuation Update Cookies Preferences