Fairway Rise, Chard, Somerset, TA20

£270,000

3 Bedroom Link Detached House for sale in Somerset

1 3 1

A three bedroom link detached property with conservatory, garage, gardens and parking situated on the Eastern side of Chard town within walking distance of the popular reservoir and nature reserve.

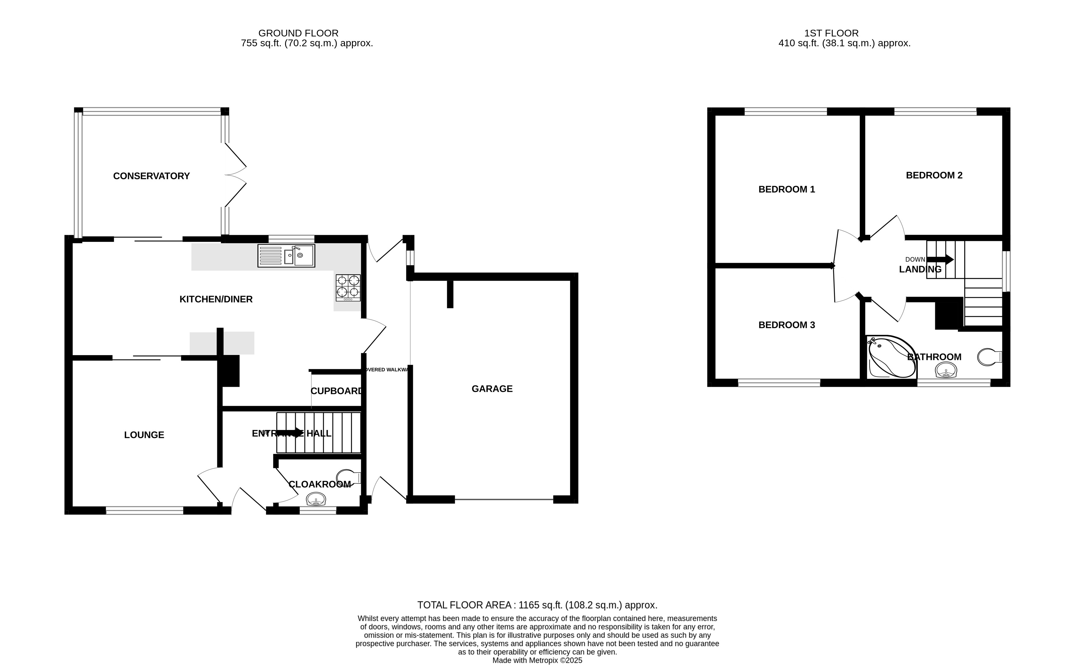
The property is well presented throughout and briefly comprises lounge opening through to a kitchen/diner fitted with modern high gloss wall and base units with sliding door out to a lovely conservatory overlooking the rear garden. To the first floor are two double bedrooms and a single third room accompanied by a family bathroom.

A walkway to the side has been enclosed giving undercover access to the garage fitted with light, power and a utility area.

The rear garden is made up of lawn and decked areas backing onto a communal green at the rear, providing a good degree of privacy.

Double glazed and gas central heating.

Tenure: Freehold
Council Tax Band: C
EPC Rating: D

Accommodation comprises: Entrance hall, cloakroom, lounge, kitchen/diner, conservatory, three bedrooms and bathroom.

Entrance Hall    uPVC main entrance door into entrance hall. Stairs rising to first floor and radiator. Doors to cloakroom and door to lounge.

Lounge 11' x 10'10" (3.35m x 3.3m). Radiator, television point and double glazed window to the front aspect. Sliding door through to kitchen/diner.

Kitchen/Diner 21'2" (6.45m) x 12'4" (3.77m) narrowing to 8'7" (2.61m). Fitted with a range of matching modern white high gloss wall and base units set beneath worktops with inset one and a half bowl sink and drainer. Inset electric oven, gas hob and hood over. Under stairs storage area/cupboard, wall mounted central heating boiler, two radiators and double glazed window to the rear aspect. Door out to side covered walkway and further sliding doors in to lounge and conservatory.

Conservatory 10'5" x 9'2" (3.18m x 2.8m). uPVC construction with double doors opening out on to the garden. Radiator.

First Floor Landing    Double glazed window to the side aspect, radiator, access to roof void and doors to all principle rooms.

Bedroom One 11'5" x 10'11" (3.48m x 3.33m). Radiator and double glazed window to the rear aspect.

Bedroom Two 9'11" x 9'1" (3.02m x 2.77m). Radiator and double glazed window to the rear aspect.

Bedroom Three 10'11" x 8'2" (3.33m x 2.5m). Radiator and double glazed window to the front aspect.

Bathroom    Fitted with a three-piece suite comprising corner bath with mains shower and screen, low level W.C and wall mounted wash hand basin with vanity unit under. Tiled splash backs and opaque double glazed window to the front aspect.

Covered Passageway    uPVC door in to passageway with opening into garage and area with space and plumbing for washing machine and space for tumble dryer. Door to kitchen and uPVC door out to rear garden.

Garage 16' x 11'9" (4.88m x 3.58m). Up and over door, light, power and opening into covered passageway.

Front    The front garden is laid to lawn with mature planting. A driveway provides off street parking giving access to the garage, main entrance door and enclosed walkway.

Rear    The rear garden is a lovely level plot made up of areas of lawn, patio and a covered decked seating area. The whole garden is enclosed by wooden fencing. The garden enjoys a high degree of privacy backing on to a communal green area.

Property Information    Services
Mains electric, water and drainage.

Broadband and mobile coverage:
Ultrafast Broadband is available in this area and mobile signal should be available from all four major providers outdoors and one major provider inside although limited. Information supplied by ofcom.org.uk

Service charge
There is an annual payment payable to Fairway Rise management company for upkeep of the communal green area to the rear of the property of approximately ?70.00.

Important Information

  • This is a Freehold property.

Property Ref: PFE240137

Share:

Similar Properties

Broad Street, Chard, Somerset, TA20

3 Bedroom Semi-Detached House | £270,000

A beautiful and modern three-bedroom semi-detached home, constructed using traditional methods, the property is situated...

King Cuthred Drive, Chard, Somerset, TA20

3 Bedroom Semi-Detached House | £270,000

A very well presented three bedroom semi-detached extended family home boasting parking, workshop (former garage) and ga...

Wellings Close, Tatworth, Somerset, TA20

2 Bedroom Semi-Detached Bungalow | £270,000

Positioned in an elevated setting, this well-presented two-bedroom semi-detached bungalow enjoys far-reaching views acro...

Ravensmead, Chard, Somerset, TA20

3 Bedroom Semi-Detached House | £275,000

A wonderful three bedroom semi-detached home boasting a smart single storey rear extension with additional bespoke 'Oran...

Helliers Road, Chard, Somerset, TA20

4 Bedroom Detached House | Guide Price £280,000

** Guide Price ?280,000 - ?300,000 ***A detached 3/4 bedroom Chalet bungalow with gardens, two garages and parking situa...

Silver Street, Chard, Somerset, TA20

3 Bedroom Detached House | £280,000

Paul Fenton Estate Agents are delighted to bring to the market this charming Grade II listed detached cottage, that awai...

Paul Fenton Estate Agents (Chard)

34 Fore Street, Chard, Somerset, TA20 1PT

01460 68222

How much is your home worth?

Use our short form to request a valuation of your property.

Request a Valuation

Mortgage Calculator

Amount Borrowed: £
Total Amount Repayable: £
Total Monthly Payment: £
©2026 The Guild of Property Professionals. All rights reserved. Terms and Conditions | Privacy Policy | Cookie Policy | Complaints Policy | Members Login
The Guild of Property Professionals Trading Address: 121 Park Lane, London W1K 7AG. GPEA Limited. Registered in England & Wales.  Company No: 02819824.  Registered Office Address: 2 St. Stephen's Court, St. Stephen's Road, Bournemouth, Dorset, England, BH2 6LA.  VAT Registration No: 576 8795 61
Book a Property Valuation Update Cookies Preferences