King Cuthred Close, Chard, Somerset, TA20

£260,000

3 Bedroom Semi-Detached House for sale in Somerset

1 3 1

A three bedroom semi detached family home located in a cul de sac location with good size enclosed rear garden.

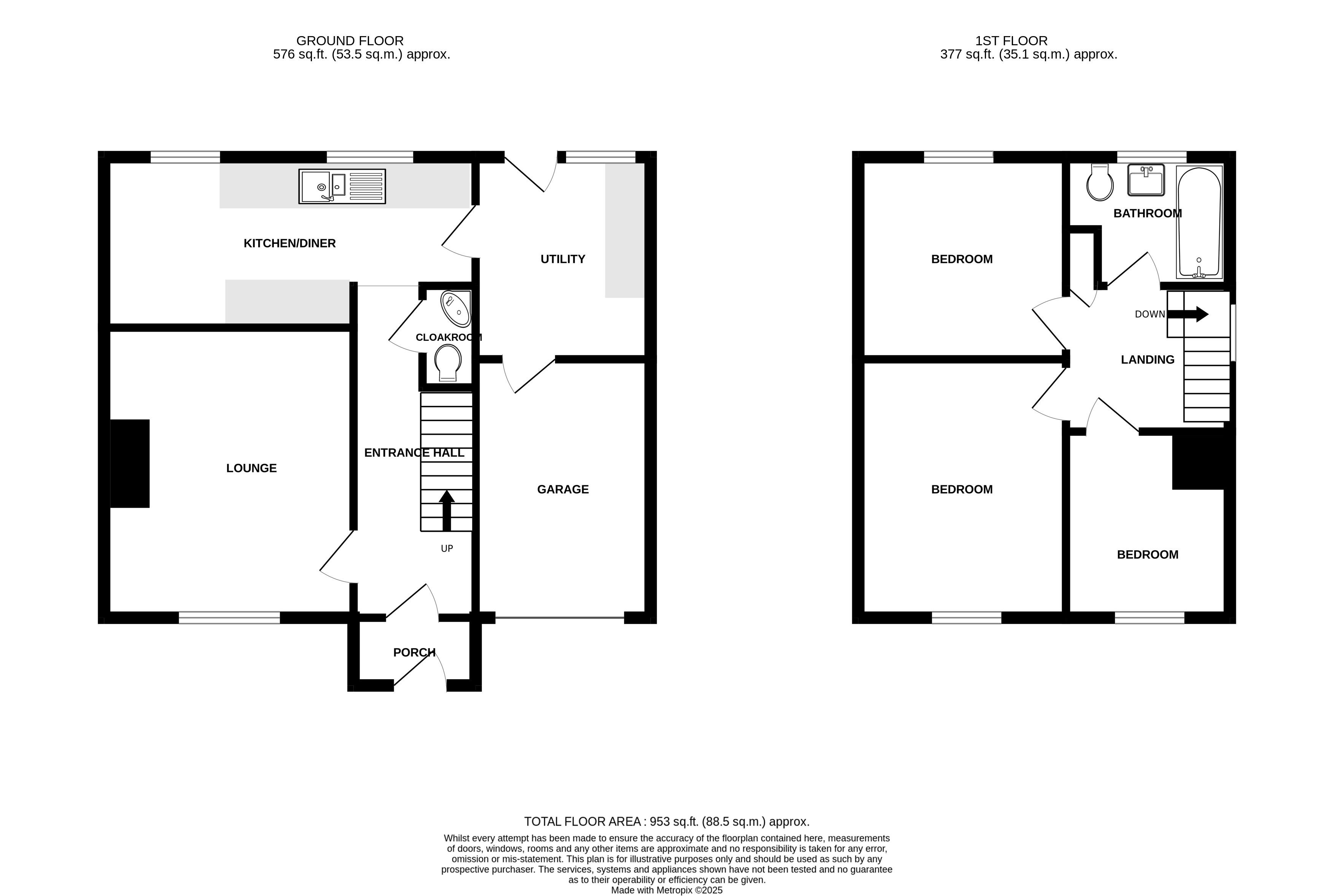
The entrance porch gives access to the entrance hallway with downstairs W.C. A light and airy lounge with a modern high gloss kitchen/diner with a useful utility room. Three bedrooms and a white three piece suite bathroom makes up the first floor.

Garage and driveway for two vehicles.

Accommodation comprises entrance porch, entrance hallway, cloakroom, lounge, kitchen/diner, utility room, three bedrooms and family bathroom.

Tenure: Freehold
Council Tax Band: C
EPC Rating: D

Entrance Porch    uPVC double glazed construction with uPVC double glazed front entrance door and a further uPVC double glazed door to:

Entrance Hallway    Radiator and stairs rising to first floor.

Cloakroom    Benefiting a two piece suite comprising of a W.C and wash hand basin with storage under and window to the side aspect.

Lounge 13'9" x 11'9" (4.2m x 3.58m). uPVC double glazed window and radiator.

Kitchen/Diner 18'1" (5.50m) x 7'10" (2.38m) narrowing to 6'1" (1.86m). Comprehensively fitted with a range of modern wall and base units with adjoining work top preparation surface with inset one and a half bowl sink and drainer with mixer tap over. Fitted oven with gas hob and cooker hood over with space for dishwasher and fridge/freezer. Radiator, inset spotlights and two uPVC double glazed windows overlooking the rear garden. uPVC double glazed door leads to the utility room.

Utility Room 9'7" x 8' (2.92m x 2.44m). Fitted with a range of matching wall and base units with adjoining work top preparation surface with appliance spaces for washing machine and tumble dryer. Ceramic tiled splash backs, uPVC double glazed window and door to the rear aspect. Door giving access to the garage.

First Floor Landing    Built in airing cupboard, loft access and uPVC double glazed window.

Bedroom One 12'2" x 9'10" (3.7m x 3m). uPVC double glazed window and radiator.

Bedroom Two 9'10" x 9'8" (3m x 2.95m). uPVC double glazed window and radiator.

Bedroom Three 8'10" (2.7m) x 7'10" (2.4m) with stair recess. uPVC double glazed window and radiator.

Bathroom    Benefiting a three piece suite consisting of a panelled bath with shower over, low level W.C and wash hand basin. Fully tiled, tiled flooring, heated towel rail and uPVC double glazed window.

Outside    The front of the property is approached via a driveway providing off street parking for several vehicles leading to the garage with an area laid to lawn. The rear garden is enclosed with a large decking area with the remainder of the garden being mainly laid to lawn.

Garage    Up and over door, light and power.

Property Information    Services
Mains gas, water, electric and drainage.

Broadband and mobile coverage
Superfast Broadband is available in this area and mobile signal should be available from all four major providers outdoors and three major providers indoors. Information supplied by ofcom.org.uk

Important Information

  • This is a Freehold property.

Property Ref: PFE250104

Share:

Similar Properties

Park Terrace, Chard, Somerset, TA20

3 Bedroom Terraced House | £260,000

Charming Three-Bedroom Period Terraced Home with Elevated Position, Long Garden & Detached GarageOccupying a delightful...

Bampton Avenue, Chard, Somerset, TA20

3 Bedroom Semi-Detached House | £260,000

This beautifully presented three-bedroom semi-detached home has been cosmetically updated by the current owners to creat...

Brutton Way, Chard, Somerset, TA20

3 Bedroom Semi-Detached House | Offers in excess of £250,000

Situated on the edge of Chard town and within easy walking distance of the ever-popular Snowdon Park, this modern three-...

Honeycomb Vale, Chard, Somerset, TA20

3 Bedroom Semi-Detached House | Offers in excess of £265,000

A recently constructed three bedroom semi-detached family home situated on the very edge of Chard Town with private sout...

King Ine South, Chard, Somerset, TA20

2 Bedroom Semi-Detached Bungalow | £265,000

This beautifully presented two-bedroom semi-detached home has been thoughtfully extended to create a stunning garden roo...

Robins Court, Chard, Somerset, TA20

2 Bedroom Detached Bungalow | £265,000

This modern and beautifully presented two-bedroom detached bungalow is tucked away in a quiet residential cul-de-sac, of...

Paul Fenton Estate Agents (Chard)

34 Fore Street, Chard, Somerset, TA20 1PT

01460 68222

How much is your home worth?

Use our short form to request a valuation of your property.

Request a Valuation

Mortgage Calculator

Amount Borrowed: £
Total Amount Repayable: £
Total Monthly Payment: £
©2026 The Guild of Property Professionals. All rights reserved. Terms and Conditions | Privacy Policy | Cookie Policy | Complaints Policy | Members Login
The Guild of Property Professionals Trading Address: 121 Park Lane, London W1K 7AG. GPEA Limited. Registered in England & Wales.  Company No: 02819824.  Registered Office Address: 2 St. Stephen's Court, St. Stephen's Road, Bournemouth, Dorset, England, BH2 6LA.  VAT Registration No: 576 8795 61
Book a Property Valuation Update Cookies Preferences