Friday Street, Minehead, Somerset

£220,000

Retail Property (High Street) for sale in Somerset

  • Town centre shop
  • Now a games/sweet shop
  • Genuine retirement sale
  • Retail area circa 343 sq ft
  • Stock room loft over & cloakroom
  • Plus self-contained 3 bedroom owners apartment
  • All within this Grade II Listed property

Town centre shop
Now a games/sweet shop
Genuine retirement sale
Retail area circa 343 sq ft
Stock room loft over & cloakroom
Plus self-contained 3 bedroom owners apartment
All within this Grade II Listed property

LOCATION
Within the popular West Somerset tourist resort of Minehead, often referred to as the 'Gateway to Exmoor National Park' this property is set back from one of the main vehicular approach roads into the town centre.

The resort has a population of approximately 8,000 inhabitants, plus the addition of a further 8,000 tourists who flock to the Butlin's tourist venue within the resort, as well as the many day-trippers throughout the year that visit the town.

Friday Street is just off the main avenue, where there are a range of individual independent shopkeepers including bookshops, hairdressers, estate agents etc.

THE PROPERTY
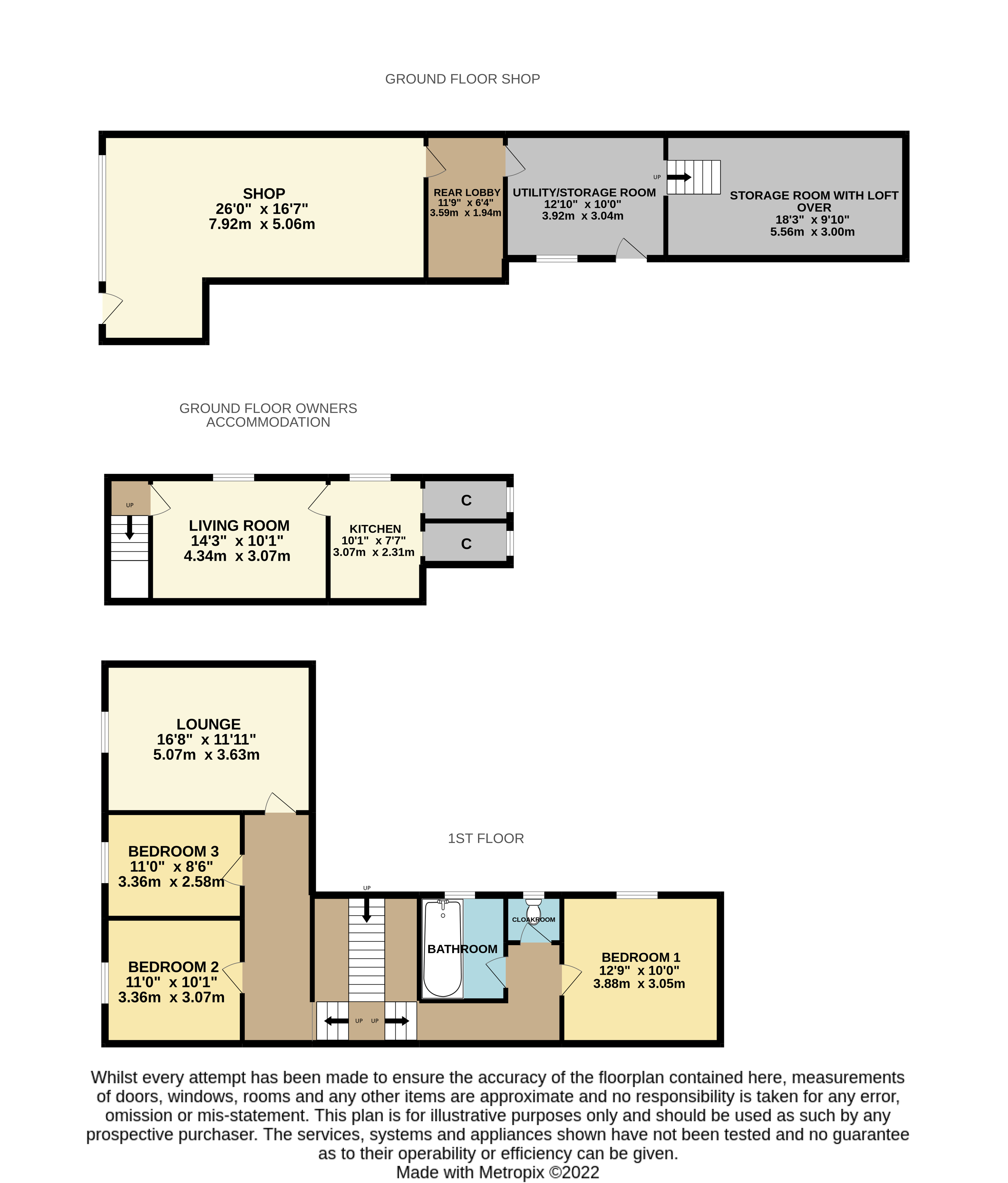
The property comprises of a character Grade II listed building comprising of a mid-terraced commercial shop, with the owner's apartment above the shop and above the adjoining barbers' shop and is approached from the rear.   

The ground floor retail area offers approximately 143 sq ft of space together with a lobby, storage room and a rear stock room with loft above.

The private accommodation is approached from the rear where a separate door gives access to a ground floor lobby, private living room and kitchen beyond.

Stairs lead to the first floor where there is a bathroom, a separate cloakroom and a rear bedroom.

To the rear overhanging the adjoining shop are two further bedrooms and over the newsagents is a private lounge.

Therefore this is a spacious private owners' apartment and to the rear there is a small yard and rear pedestrian access.

AGENTS NOTE
It should be noted that two of the rooms overhang the adjoining barber's shop and therefore a flying freehold exists.

BUSINESS RATES
£9,400 UBR, as of April 2023, 47.9p in the £. Our Rateable Value figure has been obtained from the Business Valuation website at the time of the property detail going to print, however, we would advise all applicants make their own enquiries via the Valuation Office or website regarding this figure. Small Business Rate relief (100%) may apply as the Rateable Value is below £12,000.

VAT
We understand that our client has not opted to charge VAT. All interested parties should make their own enquiries of HMRC.

SERVICES AND UTILITIES
Mains electricity, water and drainage. We encourage you to check before viewing a property the potential broadband speeds and mobile signal coverage. You can do so by visiting https://checker.ofcom.org.uk

LEGAL ADVICE
We strongly recommend that a buyer takes independent legal advice and instructs solicitors to act on their behalf. Each party bears their own legal costs unless otherwise stated.

PLANNING
It is the responsibility of the proposed buyer to satisfy for themselves independently that their intended use complies with existing planning permission by contacting the local council planning department. The cost of any change of planning use is the buyer’s responsibility.

GROUND FLOOR

MAIN SHOP INTERNAL FRONTAGE 16'7" x 26' (5.05m x 7.92m). The shop narrows to the rear to 11'. The shop will be comprehensively equipped with counter, servery and shop fittings including display cabinets and shelving. To the rear a door gives access to:

INNER LOBBY 6'4" x 11'9" (1.93m x 3.58m). Beyond this:

UTILITY/STORAGE ROOM 12'10" x 10' (3.9m x 3.05m). With a door to the outside. Beyond this steps lead to:

FURTHER STORAGE AREA 18'3" x 9'10" (5.56m x 3m). Loft access over for further storage purposes.

OWNERS' ACCOMMODATION    Approached from the rear outside courtyard giving access to:

GROUND FLOOR PRIVATE LOBBY    Door leading to:

LIVING ROOM 14'3" x 10'1" (4.34m x 3.07m). Intercommunicating door to:

KITCHEN 7'7" X 10'1" (2.3m X 3.07m).

UTILITY AREA ONE (OFF KITCHEN) 3'6" x 7' (1.07m x 2.13m).

UTILITY AREA TWO (OFF KITCHEN) 4'9" x 7' (1.45m x 2.13m).

FIRST FLOOR    Stairs give access to rear landing.

CLOAKROOM

BATHROOM    Panelled bath and wash hand basin.

BEDROOM ONE 12'9" x 10' (3.89m x 3.05m).

MAIN LANDING

BEDROOM TWO 10'1" x 11' (3.07m x 3.35m).

BEDROOM THREE 11' x 8'6" (3.35m x 2.6m).

LOUNGE 16'8" x 11'1" (5.08m x 3.38m).

AGENT'S NOTE    It should be noted that two of the rooms overhang the adjoining barber's shop and therefore a flying freehold exists.

SERVICES    Mains electricity, water and drainage.

RATEABLE VALUE    £9,400 UBR, as of April 2023, 47.9p in the £. Our Rateable Value figure has been obtained from the Business Valuation website at the time of the property detail going to print, however, we would advise all applicants make their own enquiries via the Valuation Office or website regarding this figure.
Small Business Rate relief (100%) may apply as the Rateable Value is below £12,000.

VIEWING    Strictly by appointment through the selling agent.

VAT    We understand that our client has not opted to charge VAT. All interested parties should make their own enquiries of HMRC.

WEBBERS DO NOT JUST SELL HOUSES    Established over 40 years ago our dedicated specialist Commercial Department deals in the sale and letting of all types of commercial property including Guest Houses, Hotels, Restaurants, Pubs, Holiday Complexes, General Businesses, Post Offices, Retail Businesses of all kinds, Shops, Offices, Investments and Industrial Premises. If this property does not suit visit our web site www.webberscommercial.co.uk or call our office on 01271 347888. For out of hours call our mobile number 07967 385228.

WANT TO KNOW MORE?    We recognise that buying a property is a big commitment and, therefore, recommend that you visit the local authority website (contact the branch for details) and the following websites for more helpful information about the property and local area before proceeding. www.environment-agency.gov.uk www.landregistry.gov.uk www.gov.uk/green-deal-energy-saving-measures www.homeoffice.gov.uk www.ukradon.org www.fensa.org.uk www.nesltd.co.uk http://list.english-heritage.org.uk

From our Webbers office in Minehead turn left and proceed along the road, less than 100 yards away to the right hand side is 10A Friday Street.

Important Information

  • This is a Freehold property.

Property Ref: 55935_MIN150402

Share:

Similar Properties

Long Street, Williton, Taunton

2 Bedroom Bungalow | £220,000

Tucked away within the heart of the ever-popular West Somerset village of Williton, this superbly presented two-bedroom...

Belle-Vue, Washford, Watchet

2 Bedroom Detached Bungalow | £220,000

A delightful 2 bedroom detached village bungalow enjoying pleasant country views and set in surrounding gardens with pri...

Cher, Minehead, Somerset

2 Bedroom Apartment | £215,000

A generously proportioned gas centrally heated and double glazed 2 bedroom ground floor apartment with private entrance,...

The Parks, Minehead, Somerset

2 Bedroom Apartment | £225,000

An immaculately presented, dual-aspect two-bedroom, two-reception room apartment, set within the prestigious Beechfield...

Woodton Lodge, Union Street and 37 High Street, Dulverton, Somerset

8 Bedroom Retail Property (High Street) | Guide Price £225,000

A rare opportunity to acquire a highly versatile mixed-use property in the heart of the sought-after Exmoor town of Dulv...

Parsons Street, Porlock, Minehead

2 Bedroom Terraced House | £229,950

NO CHAIN - A beautifully presented two-bedroom thatched cottage brimming with charm and character, The cottage enjoys a...

Webbers Minehead (Minehead)

Minehead, Somerset, TA24 5UW

01643 706917

How much is your home worth?

Use our short form to request a valuation of your property.

Request a Valuation

Mortgage Calculator

Amount Borrowed: £
Total Amount Repayable: £
Total Monthly Payment: £
©2025 The Guild of Property Professionals. All rights reserved. Terms and Conditions | Privacy Policy | Cookie Policy | Complaints Policy | Members Login
The Guild of Property Professionals Trading Address: 121 Park Lane, London W1K 7AG. GPEA Limited. Registered in England & Wales.  Company No: 02819824.  Registered Office Address: 2 St. Stephen's Court, St. Stephen's Road, Bournemouth, Dorset, England, BH2 6LA.  VAT Registration No: 576 8795 61
Book a Property Valuation Update Cookies Preferences