Manor Way, South Croydon, CR2 7BT

Offers in excess of
£1,050,000

4 Bedroom Detached House for sale in South Croydon

4
  • Attractive Detached Home
  • Superb Croham Hurst Home
  • Extended Family Accommodation
  • 3 Reception Rooms
  • Ground Floor Bedroom Suite
  • Four First Floor Bedrooms
  • Kitchen/Diner / Utility Room
  • Beautiful Mature Rear Garden
  • Garage And In / Out Driveway

Council tax band: G

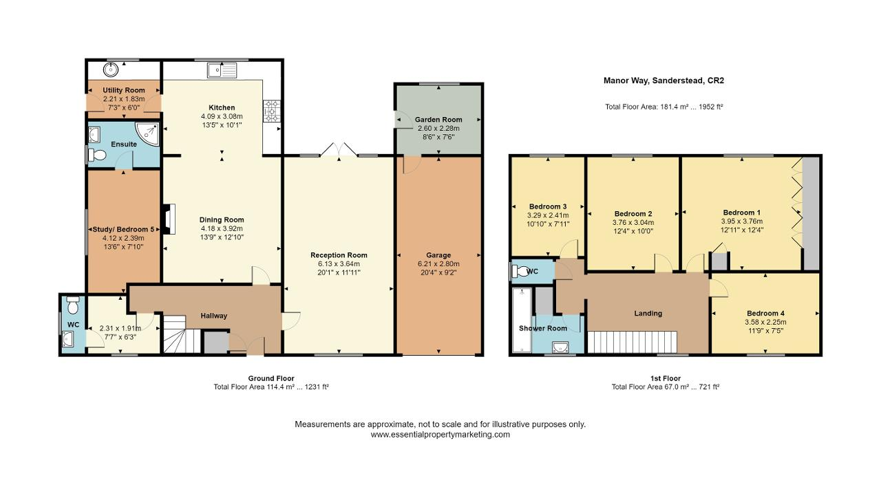
This most attractive double fronted Detached Home is located in one of South Croydon's most premier roads being surrounded by individual detached properties and backs the Mid Whitgiftian playing fields with gated access for owners of Manor Way to enjoy for evening/weekend walks. The property has been extended but does offer further extension potential subject to the usual consents. A good sized hallway provides access to the large double aspect lounge with double doors leading directly to the rear garden. The separate dining room has a fireplace and is open plan to a large Kitchen/Breakfast room being fitted with a range of modern units. There is also a separate Utility room. Additionally to the ground floor is access to a Study with window to the front aspect and access to the ground floor cloakroom. Beyond this is the ground floor bedroom suite comprising a double bedroom and En-Suite Shower room making this ideal for an elderly relative or extended family member. To the first floor are four good size bedrooms, separate wc with window and Shower room. Externally the property enjoys a delightful mature and established rear garden which is mainly laid to lawn with an abundance of plants, shrubs and hedge borders as well as fruit trees and an original concrete shelter useful for storage. To the front is a wide carriage driveway with access to the garage and side access to the rear of the property.
Planning Permission for an extension above the garage
for an en-suite and dressing room along with extend the patio was granted but expired in June 2025.

Council Tax Band G

Manor Way is a quiet road situated within the popular and convenient Croham Hurst area with Croham Hurst Golf Club being just a short walk away in addition to the beautiful wooded area of Croham Hurst. A short walk away is Croham Valley Road/Croham Road where there are buses passing by accessing central Croydon and beyond, with Lloyd Park and Coombe Lane Tram stop also being within half a mile. Additionally South Croydon Station is easily accessible making this a fantastic home in terms of being set in a quiet location yet within easy reach of many forms of transport. Also close by and another great attraction to the area are an abundance of reputable schools to include Old Palace Junior Girls School, Coombe Bank, Royal Russell, Whitgift and Croydon High to name but a few.

Important Information

  • This is a Freehold property.

Property Ref: 713648

Share:

Similar Properties

Church Road, Woldingham, Surrey, CR3 7LQ

4 Bedroom Detached House | Offers in region of £1,000,000

Hubbard Torlot are pleased to bring to the market this true one off home, being the original 'porters house' for Wolding...

Beechwood Road, Sanderstead, South Croydon, CR2 0AA

5 Bedroom Semi-Detached House | Offers in excess of £1,000,000

This exquisite and substantial five bedroom Edwardian semi detached family residence, located just moments from Sanderst...

Park View Road, Woldingham, Surrey, CR3 7DJ

4 Bedroom Detached House | Guide Price £1,000,000

Hubbard Torlot are pleased to bring to the market 'Buckland Cottage' a beautiful detached home occupying a level plot in...

Briton Hill Road, Sanderstead, Surrey, CR2 0JL

4 Bedroom Detached House | £1,100,000

Superbly presented throughout, this beautifully extended and re-modelled detached residence offers exceptional family li...

Tydcombe Road, Warlingham, CR6 9LU

3 Bedroom Detached House | £1,125,000

Hubbard Torlot are pleased to bring to the market this most attractive detached chalet style home offering immense chara...

North Down, Sanderstead, CR2 9PA

4 Bedroom Detached House | £1,150,000

This rarely available 'Truett & Steel' home is offered to the market having been lovingly cared for by the current owner...

Hubbard Torlot (Sanderstead)

335 Limpsfield Road, Sanderstead, Surrey, CR2 9BY

0208 6516 679

How much is your home worth?

Use our short form to request a valuation of your property.

Request a Valuation

Mortgage Calculator

Amount Borrowed: £
Total Amount Repayable: £
Total Monthly Payment: £
©2026 The Guild of Property Professionals. All rights reserved. Terms and Conditions | Privacy Policy | Cookie Policy | Complaints Policy | Members Login
The Guild of Property Professionals Trading Address: 121 Park Lane, London W1K 7AG. GPEA Limited. Registered in England & Wales.  Company No: 02819824.  Registered Office Address: 2 St. Stephen's Court, St. Stephen's Road, Bournemouth, Dorset, England, BH2 6LA.  VAT Registration No: 576 8795 61
Book a Property Valuation Update Cookies Preferences